17

Casa la cheie in Timisoara! comision 0%!

309.000 €

Mehala, Timișoara

Nr. cam.:
5
Sup. utilă:
130 mp
Sup. teren:
240 mp
Tip prop.:
Înșiruită
  • • Comision 0%
  • • Exclusivitate
  • • Locație exactă

Descriere casă

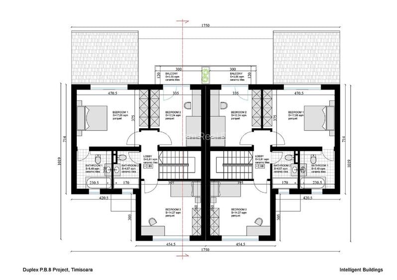
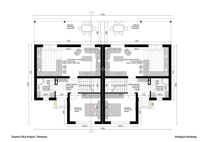
Situata in zona Mehala-Bucovina, Intrarea Coriolean Balta, proprietatea face parte dintr-un ansamblu de case superbe, desfasurate de-a lungul unei strazi inchise, cu alei pavate si spatii verzi amenajate, loc de joaca pentru copii cu gazon sintetic. Conectivitatea excelentă la toate punctele cheie din oraș: 10 min de Iulius Town, City Business Center, 5 min de Vox Technology Park, acces facil la mijloace de transport în comun. Caracteristici case: - suprafata utilă: 130 mp - compartimentare parter: living, bucătărie, dormitor, baie, spațiu depozitare, terasă -etaj: dormitor matrimonial+baie, 2 dormitoare , baie Alege confortul și liniștea într-un ansamblu rezidențial cu adevărat special. Sună acum pentru a afla mai multe detalii și pentru a începe călătoria către casa ta de vis!
Citește mai mult Citește mai puțin
Nemobilat Curte Aer condiționat Centrală proprie Încălzire prin pardoseală 2 Parcări

Detalii casă

ID anunț: X6UV1106P Copiat! 274914012 Copiat!
Actualizat în: 16 Mai 2026
Tip tranzacție: De vânzare prin agent
Suprafață construită: 80 mp
Suprafață desfășurată: 145 mp
Nr. bucătării: 1
Nr. băi: 3
Nr. balcoane / Terase / Logii: 1
Nr. terase: 1
Suprafață terase: 25 mp
Front stradal: 9.0 m
Învelitoare acoperiș: Țiglă
An construcție: 2022 (Finalizată)
Structură rezistență: Beton
Regim înălțime: P+1E
Modalitate de plată: Cash sau Credit

Utilități

Pereți
Faianță Vopsea lavabilă
Podele
Gresie Mochetă Parchet Marmură
Ușă intrare
PVC
Uși interior
Celulare Lemn
Izolații termice
Exterior
Ferestre cu geam termopan
PVC
Contorizare
Apometre Contor gaz
Facilități imobil
Acoperiș Interfon Spații agrement
Utilități
Curent Apă Canalizare CATV Gaze Telefon
Internet
Cablu
Servicii imobil
Supraveghere video
Amenajare străzi
Iluminat stradal Mijloace de transport în comun Asfaltate
Comision
0%

Disponibilitate proprietate:

Imediat

Puncte de interes

Mijloace transport
bus-station
Statie Vuk Karadjic A13
Stații autobuz aprox. 583 m
bus-station
Statie Piata Avram Iancu A13
Stații autobuz aprox. 664 m
tram-station
Statie Amforei Tramvai Linia 4,6
Stații tramvai aprox. 984 m
trolleybus-station
Statie Miresei E6
Stații troleibuz aprox. 1408 m
Școală
kindergarten
Gradinita Samariteanul Nr. 13
Gradinițe aprox. 506 m
kindergarten
Gradinita Cu Program Prelungit Nr. 9 Carla Pelz Mehala
Gradinițe aprox. 582 m
school
SCOALA GIMNAZIALĂ NR.19 "AVRAM IANCU"
Școli aprox. 612 m
university
Universitatea de Vest, Facultatea de teologie ortodoxa
Universități aprox. 1307 m
Recreere
sports-ground
Teren sportiv
Terenuri sport aprox. 467 m
park
Parc Bucovina
Parcuri aprox. 619 m
restaurant
Pizzeria Giovanna
Restaurant aprox. 698 m
supermarket
Profi
Supermarket aprox. 720 m

Istoricul prețurilor

Acces la informații premium după autentificare
Login Gratuit

Detalii despre preț și costuri

Costuri cu achiziția

Fără credit
Credit ipotecar
Noua casă

i

Costuri adiționale mai puțin știute la achiziție: taxe notariale, comisioane etc.

Acces la informații premium după autentificare
Login Gratuit

Proprietăți similare

Duplex cu 5 camere în Ciarda Roșie
339.000 €
Timișoara, Ciarda Roșie
5 camere
142 mp
350 mp teren
Duplex cu 5 camere în Aradului
298.000 €
Timișoara, Aradului
5 camere
142 mp
304 mp teren
Duplex cu 5 camere în Mehala
309.000 €
Timișoara, Mehala
5 camere
130 mp
240 mp teren

Detalii de contact

West Team Real Estate

Alexandru Bandi - Stefan Sales and Marketing Director

West Team Real Estate
PRO

Abonează-te la newsletter să fii primul care primește cele mai noi recomandări de proprietăți și sfaturi de la experți.

Feedback apel

CONTACT

Creează alertă

Salvează căutarea ca să primești pe email ultimele anunțuri publicate

Duplexuri cu 4+ camere de vânzare în zona Mehala, Timișoara