Apartament o camera de vanzare in Floresti

84.491 €

Florești, Județul Cluj

Nr. cam.:
1
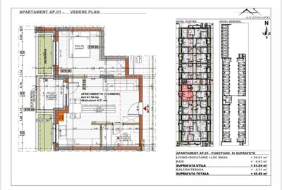
Sup. utilă:
37,15 mp
Etaj:
3 / 3
An constr.:
2026
  • • Locație aproximativă

Descriere apartament

Apartament cu 1 camera, Imobil nou 2026, TVA inclus, zona Terra! Va oferim spre vanzare un apartament situat intr-o zona linistita si aerisita, in plina dezvoltare, a localitatii Floresti, zona Terra! Apartamentul are suprafata utila de 37.15 mp + terasa generoasa si este compartimentat astfel: - hol; - bucatarie separata; - camera; - baie; - terasa generoasa de 38.53 mp; - spatiu de depozitare de 7.52 mp pe terasa; Apartamentul este situat la etajul retras (etajul 3) intr-un imobil cu regim de inaltime demisol + parter + 2 etaje + etaj retras si este orientat Nord-Est. Datorita zonei in care este situat, apartamentul are in imediata apropiere, la distanta de mers pe jos, statie de autobuz, gradinita, magazine, farmacie. Locuinta se preda la stadiul de semifinisat: pereti gletuiti, centrala termica proprie, sapa turnata, instalatii electrice si sanitare pe pozitii, balcoanele amenajate, usa metalica la intrare. La cerere, apartamentul se poate preda finisat dupa preferintele clientului, pentru suma de 250 eur/mp. Imobilul are termen de finalizare a constructiei finalul anului 2025, cu termen estimat pentru CF iunie 2026. Posibilitate de achizitie atat a locurilor de parcare exterioare, pentru suma de 5100 euro, cat si a locurilor de parcare subterane, pentru suna de 7200 euro. Pentru mai multe informatii sau programarea unei vizionari, va stam cu drag la dispozitie! Echipa Napoca Imobiliare ID oferta: 155181
Citește mai mult Citește mai puțin
Confort 1 Semidecomandat Centrală proprie

Detalii apartament

ID anunț: X57Q10A47 Copiat! 268965343 Copiat!
Actualizat în: 12 Februarie 2026
Suprafață construită: 44.58 mp
Nr. bucătării: 1
Nr. băi: 1
Tip imobil: Bloc de apartamente
Regim înălțime: P+3E

Utilități

Utilități
Curent Apă Canalizare Gaze CATV Telefon
Ușă intrare
Metal
Ferestre cu geam termopan
PVC
Comision
2% + TVA

Puncte de interes

Mijloace transport
bus-station
M-Cartier Terra
Stații autobuz aprox. 164 m
bus-station
M-Prof. Dumitru Mocanu
Stații autobuz aprox. 411 m
bus-station
M-Prof. Dumitru Mocanu E
Stații autobuz aprox. 417 m
bus-station
M-Prof. Dumitru Mocanu V
Stații autobuz aprox. 419 m
Recreere
restaurant
Il Milanese
Restaurant aprox. 592 m
park
Parc
Parcuri aprox. 604 m
supermarket
Profi Floresti
Supermarket aprox. 1088 m
sports-ground
Teren Fotbal Sintetic
Terenuri sport aprox. 1327 m

Detalii despre preț și costuri

Prețul pe piață

Preț cerut: 84.491 €

Preț min. zonă 60.000 €
Preț max. zonă 95.000 €

85% dintre proprietățile similare ca zonă și nr. camere au prețul cerut mai mic. mai multe...

Bine de știut: prețul unei proprietăți este influențat și de alte caracteristici, cum ar fi: vechime, localizare, vecinătăți, suprafață, compartimentare, amenajări, dotări, etc. mai puțin...

Costuri cu achiziția

Fără credit
5.382 RON
Credit ipotecar
6.804 RON
Noua casă
571 RON+ taxe notariale

i

Costuri adiționale mai puțin știute la achiziție: taxe notariale, comisioane etc.

Proprietăți recomandate

Detalii de contact

Napoca Imobiliare

Admin

3.44(14 review-uri)

Napoca Imobiliare
PRO

Abonează-te la newsletter să fii primul care primește cele mai noi recomandări de proprietăți și sfaturi de la experți.

CONTACT

Creează alertă

Salvează căutarea ca să primești pe email ultimele anunțuri publicate

Garsoniere noi de vânzare în Florești, Județul Cluj