Garsoniera 31mp - centrala proprie - Drumul Binelui -Metalurgiei

65.940 €

Metalurgiei, București

Nr. cam.:
1
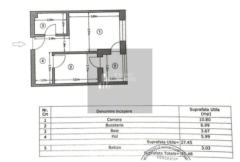
Sup. utilă:
31 mp
Etaj:
Parter / 4
An constr.:
2016 (Finalizată)
  • • Exclusivitate
  • • Locație aproximativă
  • • Vizionare prin apel video

Descriere apartament

Ramiro Imob vă propune spre vânzare o garsonieră decomandată Situată la parterul unui bloc de 4 etaje, construit în anul 2016. Decomandată Centrala Balcon Bucatarie inchisa Mobilată și utilată Suprafață 31 mp Preț: 66.000 Euro Pentru mai multe detalii, vizionări sau oferte similare, contactați-mă!Elena- Comision 0% pentru cumpărător Oferim suport complet în relația cu banca, cu acces la cele mai bune oferte de finanțare, precum și asistență notarială, cele mai bune prețuri notariale.
Citește mai mult Citește mai puțin
Confort 1 Decomandat Mobilat Complet 1 Balcon Aer condiționat Calorifere Centrală proprie

Detalii apartament

ID anunț: XCRN103KV Copiat! 274872293 Copiat!
Actualizat în: 10 Februarie 2026
Suprafață construită: 42 mp
Nr. bucătării: 1
Nr. băi: 1
Structură rezistență: Beton
Tip imobil: Bloc de apartamente
Regim înălțime: P+4E

Utilități

Pereți
Faianță Vopsea lavabilă
Podele
Gresie Parchet
Ușă intrare
Metal
Uși interior
Lemn
Izolații termice
Exterior
Ferestre cu geam termopan
PVC
Contorizare
Apometre Contor gaz
Electrocasnice
Aragaz Frigider Hotă
Dotări imobil
Interfon Lift
Utilități
Curent Apă Canalizare CATV Gaze Telefon
Acces internet
Cablu
Amenajare străzi
Iluminat stradal Mijloace de transport în comun Asfaltate

Vecinătăți:

Constantin Brancoveanu Metalurgiei Alexandru Obregia Turnu Magurele Sector 4 Berceni Grand Arena Sun Plaza Metrou Eroii Revolutiei Metrou Aparatorii Patriei Soseaua Giurgiului Luica Emil Racovita Soseaua Berceni Soseaua Oltenitei

Disponibilitate proprietate:

Imediat

Puncte de interes

Mijloace transport
bus-station
Statia Editura Aramis, linia 125, 141, 220, 232, 312
Stații autobuz aprox. 253 m
bus-station
Statia Sere, linia 125, 141, 220, 232, 312
Stații autobuz aprox. 288 m
metro-station
Aparatorii Patriei (M2)
Stații metrou aprox. 1410 m
metro-station
Metrorex. Stația Apărătorii Patriei (M2)(1986)
Stații metrou aprox. 1418 m
Școală
kindergarten
Gradinita nr. 149
Gradinițe aprox. 785 m
kindergarten
Gradinita nr.264, "101 dalmatieni"
Gradinițe aprox. 900 m
school
ȘCOALA CU CLASELE I-VIII NR. 130
Școli aprox. 995 m
university
Universitatea Spiru Haret
Universități aprox. 1345 m
Recreere
hypermarket
Hornbach
Hipermarket aprox. 211 m
supermarket
Centrul comercial Grand Arena
Supermarket aprox. 252 m
park
Parc
Parcuri aprox. 587 m
sports-ground
Sala de sport
Terenuri sport aprox. 1134 m

Detalii despre preț și costuri

Prețul pe piață

Preț cerut: 65.940 €

Preț min. zonă 32.000 €
Preț max. zonă 81.900 €

81% dintre proprietățile similare ca zonă și nr. camere au prețul cerut mai mic. mai multe...

Bine de știut: prețul unei proprietăți este influențat și de alte caracteristici, cum ar fi: vechime, localizare, vecinătăți, suprafață, compartimentare, amenajări, dotări, etc. mai puțin...

Costuri cu achiziția

Fără credit
4.507 RON
Credit ipotecar
5.782 RON
Noua casă
476 RON+ taxe notariale

i

Costuri adiționale mai puțin știute la achiziție: taxe notariale, comisioane etc.

Proprietăți recomandate

Detalii de contact

Ramiro Imob

Elena Hristu

Ramiro Imob
PRO

Abonează-te la newsletter să fii primul care primește cele mai noi recomandări de proprietăți și sfaturi de la experți.

CONTACT

Creează alertă

Salvează căutarea ca să primești pe email ultimele anunțuri publicate

Garsoniere de vânzare în zona Metalurgiei, Sector 4