PENSIUNE / Valea Rasnoavei, PREDEAL – OPORTUNITATE INVESTIȚIONALĂ

390.000 €

Predeal, Județul Brașov

Loc. parc.:
9
An constr.:
2013 (La gri)
  • • Locație exactă

Descriere spațiu comercial

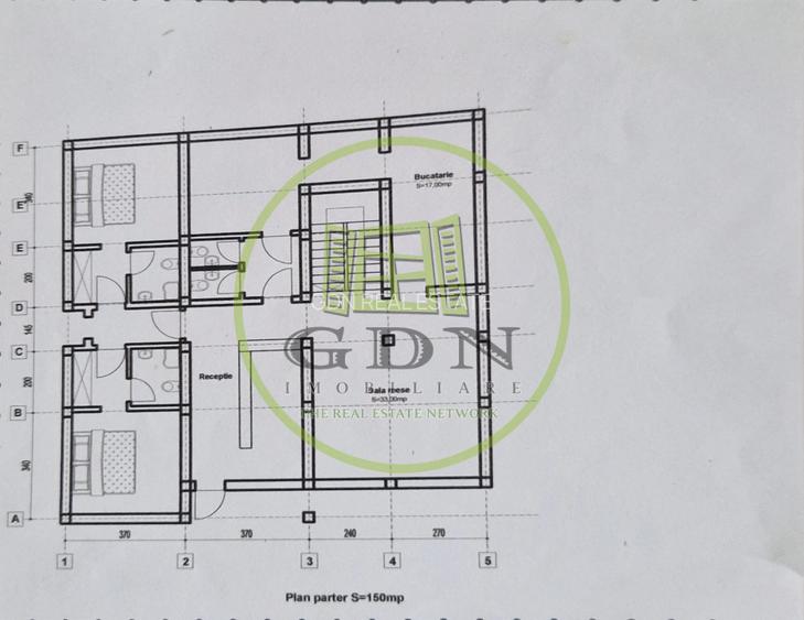
PENSIUNE / CASĂ DE VACANȚĂ ÎN PREDEAL – OPORTUNITATE INVESTIȚIONALĂ GDN Masters Brașov propune spre vânzare o proprietate deosebită situată în Predeal, pe Strada Valea Râșnoavei – ideală pentru dezvoltarea unei pensiuni sau a unei case de vacanță premium. Imobilul este finalizat în proporție mare, cu ultimele 2 etaje în stadiu de finisare, oferind posibilitatea personalizării finale după propriul concept. Detalii proprietate: • Suprafață utilă: 495 mp (fără terase) • Amprentă la sol: 154 mp • Teren: 500 mp • Regim de înălțime: Parter + 2 Etaje + Mansardă • 12 camere spațioase (includ 2 apartamente) • 15 băi (inclusiv grupuri sanitare la parter și bucătărie) • 9 balcoane • Terase generoase: o Etaj 1: 75 mp o Etaj 2: 30 mp Caracteristici: • Construcție din cărămidă (2013) • Compartimentare decomandată • Bucătărie închisă • Scară interioară • Beci (cramă) • Acoperiș din tablă • Parcare proprie Utilități complete: apă, curent, gaz, canalizare, internet statie de epurare Acces facil: din DN 73A, pe drum de servitute de 8 m lățime Stare imobil: foarte bună, pregătit pentru finalizare și exploatare imediată ________________________________________ Ideal pentru: ✔ business turistic (pensiune / boutique hotel) ✔ retreat-uri sau evenimente private ✔ investiție cu randament ridicat în zonă montană
Citește mai mult Citește mai puțin
9 Parcări Electricitate Apă Canalizare

Detalii spațiu comercial

ID anunț: XC0D140EL Copiat! 275401708 Copiat!
Actualizat în: 03 Aprilie 2026
Etaj: P+3E

Puncte de interes

Școală
school
Liceul Mihail Saulescu
Școli aprox. 1320 m
school
Liceul Teoretic Mihail Săulescu
Școli aprox. 1326 m
kindergarten
Gradinita nr. 1
Gradinițe aprox. 1687 m
Recreere
sports-ground
Poligon de tragere biatlon
Terenuri sport aprox. 1065 m
bar
Night Club Millenium
Bar aprox. 1206 m
supermarket
Carrefour Market
Supermarket aprox. 1682 m
park
Parc
Parcuri aprox. 1808 m

Proprietăți similare

Hotel/Pensiune, 765 mp în Vlădeț - Trei Brazi
400.000 €
Județul Brașov, Predeal
765 mp utili
1E
Hotel/Pensiune, în Vlădeț - Trei Brazi
399.000 €
Județul Brașov, Predeal
2006
Spațiu industrial, 781 mp în Prejmer
399.000 €
Județul Brașov, Prejmer
781 mp utili
Producție/Servicii
1E

Detalii de contact

GDN REAL ESTATE

Constanta Duduta Consultant imobiliar

GDN REAL ESTATE

Abonează-te la newsletter să fii primul care primește cele mai noi recomandări de proprietăți și sfaturi de la experți.

CONTACT

Creează alertă

Salvează căutarea ca să primești pe email ultimele anunțuri publicate

Spații comerciale cu 4+ camere de vânzare în Predeal, Județul Brașov