Penthouse 200 mp + 68 mp terasa + 2 parcari + boxa + Lift direct in apartament

557.600 €

Sud-Vest, Brașov

Nr. cam.:
8
Sup. utilă:
200 mp
Etaj:
6
An constr.:
2025 (Finalizată)
  • • Locație aproximativă

Descriere apartament

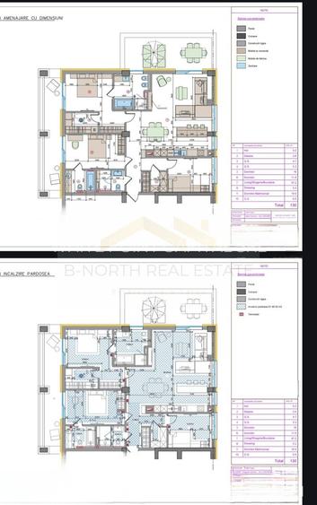
B-North Real Estate vă propune spre vanzare un Penthouse spectaculos, situat într-un imobil nou finalizat în 2025, în zona Carpaților din Brașov, una dintre cele mai apreciate zone rezidențiale ale orașului. Proprietatea impresionează prin suprafața generoasă de 200 mp utili, completată de o terasă panoramică de 46 mp, ideală pentru relaxare, socializare sau amenajarea unui spațiu exterior Premium. Unul dintre elementele cu adevărat rare ale acestei proprietăți este liftul care ajunge direct în apartament, oferind un nivel ridicat de confort, intimitate și exclusivitate. Caracteristici principale Incalzire in pardosea. • Terasă panoramică: 68 mp • Lift cu acces direct în apartament • 2 locuri de parcare incluse • Boxă • Centrale proprii + sistemă de ventilare • Imobil construit în 2025 • Panoramă deosebită asupra orașului Dispozitive si tehnologice de noua generatie ce comunică împreună prin automatizări pentru a aduce locatarului confort, siguranță, timp și consum redus al energiei, acces si control de la distanță. consum redus de gaze și/sau curent electric. Apartamentul se predă nemobilat, oferind viitorului proprietar libertatea de a-l amenaja după propriul stil și standard. Pentru detalii suplimentare, planuri sau programarea unei vizionări, vă stăm la dispoziție.
Citește mai mult Citește mai puțin
Confort lux Aer condiționat Încălzire prin pardoseală

Detalii apartament

ID anunț: XEI01007L Copiat! 275354302 Copiat!
Actualizat în: 25 Martie 2026
Nr. bucătării: 1
Nr. băi: 3
Tip imobil: Bloc de apartamente
Nr. terase: 1

Utilități

Destinație
Rezidențial
Ușă intrare
Metal
Alte spații utile
Terasă
Facilități imobil
Lift
Utilități
Curent Apă Canalizare CATV Gaze
Internet
Cablu
Amenajare străzi
Iluminat stradal Mijloace de transport în comun Asfaltate
Comision
standard

Disponibilitate proprietate:

Imediat

Puncte de interes

Mijloace transport
bus-station
Statia "Liceul Mesota", linia 32,6,10,3,7,5barat,30
Stații autobuz aprox. 133 m
bus-station
Liceul Mesota
Stații autobuz aprox. 138 m
train-station
Gara Brasov Călători CFR
Stații tren aprox. 813 m
train-station
Statia CFR Brasov
Stații tren aprox. 839 m
Școală
kindergarten
Gradinita nr. 14A
Gradinițe aprox. 66 m
kindergarten
Gradinita cu program normal nr. 14 A (fosta nr. 26)
Gradinițe aprox. 68 m
school
Colegiul National "Dr Ioan Mesota"
Școli aprox. 102 m
university
Universitatea Europeana Dragan
Universități aprox. 507 m
Recreere
park
"Ioan Mesota" high-school courtyard (en)
Parcuri aprox. 104 m
supermarket
Carrefour Market
Supermarket aprox. 406 m
sports-ground
Teren sportiv
Terenuri sport aprox. 454 m
mall
Magazinul Star
Mall aprox. 1502 m

Detalii despre preț și costuri

Costuri cu achiziția

Fără credit
22.056 RON
Credit ipotecar
25.537 RON
Noua casă
2.983 RON+ taxe notariale

i

Costuri adiționale mai puțin știute la achiziție: taxe notariale, comisioane etc.

Proprietăți similare

Penthouse cu 4 camere decomandat în Răcădău
591.810 € + TVA
Brașov, Răcădău
4 camere
212,92 mp
Etaj 11 / 12
Penthouse cu 5 camere decomandat în Astra
528.000 € + TVA
Brașov, Astra
5 camere
160 mp
Etaj 6
Penthouse cu 4 camere decomandat, mobilat în Tractorul
549.000 €
Brașov, Tractorul
4 camere
190 mp
Etaj 8 / 9

Detalii de contact

WHITE POINT CAPITAL SRL

Ala Ciloci Consultant Imobiliar

WHITE POINT CAPITAL SRL
PRO

Abonează-te la newsletter să fii primul care primește cele mai noi recomandări de proprietăți și sfaturi de la experți.

CONTACT

Creează alertă

Salvează căutarea ca să primești pe email ultimele anunțuri publicate

Penthouses noi cu 4+ camere de vânzare în Brașov, Județul Brașov