Penthouse Exclusivist cu Panorama Cluj-Napoca - West City Tower
Va propunem spre achizitie un simbol al luxului urban,situat la ultimele etaje(24-25) ale celei mai inalte cladiri rezidentiale din tara.
Daca termenul EXTRAORDINAR va defineste,acest penthouse de pe Calea Floresti reprezinta oportunitatea de a locui deasupra orasului,bucurandu-va de o perspectiva incomparabila asupra Clujului si zonelor verzi invecinate.
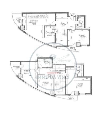
Detalii Proprietate - Configuratie - Penthouse dispus pe 2 niveluri(etaje 24 si 25),conectate prin scara interioara
- Suprafata Utila - Aproximativ 210 mp
- Compartimentare -5 camere(4 dormitoare spatioase si un living generos),bucatarie separata si 3 bai
- Terase - 4 terase private care ofera panorama spectaculoasa la 92 metri inaltime
- Stadiu Predare - semifinisat/la gri,oferindu-va libertatea deplina de a personaliza designul interior
-Parcari - se pot achizitiona la alegere parcari la exterior sau interior cu diferite cai de acces
Sediul central - Timișoara
Bulevardul Victor Babeș nr. 2, 300230, Timișoara, România
Tel: +40.374.40.44.98 / Fax: +40.256.401.179
Email: suport@imobiliare.ro
Luni - Vineri 08:00 - 20:00
Punct de lucru - București: Iride Business Park, Bld. Dimitrie
Pompeiu 9-9A, Clădirea B2B,
020335, Sector 2, București, România
CONTACT
Sediul central - Timișoara
Bulevardul Victor Babeș nr. 2, 300230, Timișoara, România
Tel: +40.374.40.44.98 / Fax: +40.256.401.179
Email: suport@imobiliare.ro
Luni - Vineri 08:00 - 20:00
Punct de lucru - București: Iride Business Park, Bld. Dimitrie
Pompeiu 9-9A, Clădirea B2B,
020335, Sector 2, București, România
Sună acum și cere detalii sau programează o vizionare.
Cere detalii prin email
*
*
*
*
Stații tramvai
Stații autobuz
Gradinițe
Școli
Universități
Supermarket
Mall
Parcări
Parcuri
Terenuri sport
Farmacie
Spital
Restaurant
Cafenea
Bar
Pub
Bancă
Ravasului
aprox.
232 m
Minerva
aprox.
319 m
Parang
aprox.
345 m
Statia Gr. Alexandrescu, Linia 6
aprox.
453 m
Clabucet
aprox.
561 m
Statia Gr Alexandrescu1TRV, 102
aprox.
633 m
Calvaria
aprox.
633 m
Grigore Alexandrescu
aprox.
658 m
Clabucet
aprox.
684 m
Statia Plopilor 2 TRV, Linia 102
aprox.
1057 m
Plopilor Nord
aprox.
1057 m
Plopilor Sud
aprox.
1067 m
Statia Sala Sporturilor 2TRV, Linia 102
aprox.
1785 m
Sala Sporturilor
aprox.
1846 m
Uzinei Electrice
aprox.
1851 m
Statia Minerva, Liniile: 43,43b, 1,6,25, 101,102
aprox.
294 m
Statia PECO, liniile: 9,24,29,29B,52
aprox.
294 m
Piata Flora
aprox.
296 m
Statia PECO, Liniile:9,24,29,29B,52
aprox.
316 m
Taberei
aprox.
317 m
Statia MInerva I -dus Linia 1, 102
aprox.
325 m
Statia Minerva II -intors Linia 1, 102, 6
aprox.
326 m
Statia Minerva, Liniile: 43,43b,1,6,25,101,102
aprox.
344 m
Ciobanului
aprox.
353 m
Peana
aprox.
355 m
Minerva
aprox.
367 m
Statia Calea Floresti, Liniile: 9,24,29,29B,52
aprox.
428 m
Statia Clabucet II -intors Linia 1, 25, 6
aprox.
467 m
Stația "Pritax"
aprox.
469 m
Statia Gr. Alexandrescu -intors Linia 1, 102, 25,7
aprox.
496 m
Grădinița "Albinuța"
aprox.
33 m
Gradinita Albinuta
aprox.
33 m
Grăd.Dumbrava minunată
aprox.
117 m
Grăd.Căsuța poveștilor2 / Grigore Alexandrescu 21
aprox.
127 m
Gradinita Dumbrava Minunata
aprox.
397 m
Grăd.Academia piticilor
aprox.
460 m
Gradinita cu orar prelungit nr. 72
aprox.
497 m
Grăd.Albinuța
aprox.
602 m
Gradinita Licurici
aprox.
819 m
Gradinita Speciala
aprox.
860 m
Grăd.Rază de soare str. 2
aprox.
871 m
Grăd.Buburuza
aprox.
923 m
Gradinita Buburuza
aprox.
930 m
Grăd.Universul copiilor
aprox.
998 m
Gradinita Licurici str. 1
aprox.
1049 m
Scoala Octavian Goga
aprox.
121 m
Școala Generală Nr. 29 / "Octavian Goga"
aprox.
138 m
Scoala Iuliu Hatieganu
aprox.
139 m
Școala Iuliu Hațieganu
aprox.
149 m
Scoala Generala Nr.17, Ion Creangă
aprox.
299 m
Scoala Ion Creanga
aprox.
307 m
Scoala Constantin Brancoveanu
aprox.
722 m
Scoala Generala Nr. 3
aprox.
729 m
Scoala Generala Eugen Pora
aprox.
847 m
Liceul Teoretic Eugen Pora
aprox.
858 m
Școala Liviu Rebreanu / Liceul Liviu Rebreanu
aprox.
906 m
Scoala Liviu Rebreanu
aprox.
906 m
Liceul Teologic Adventist Maranatha
aprox.
928 m
Colegiul Tehnic Edmond Nicolau
aprox.
1068 m
Liceul Teologic Adventist
aprox.
1161 m
Institutul de cercetari in chimie Raluca Ripan
aprox.
1373 m
UBB Educatie Fizica si Sport
aprox.
1427 m
Facultatea de Educatie Fizica si Sport
aprox.
1429 m
Platforma De Biotehnologie Bazata Pe Cunoastere
aprox.
1591 m
USAMV Cluj-Napoca
aprox.
1615 m
Universitatea de Stiinte Agricole si Medicina Veterinara
aprox.
1668 m
Universitatea de Stiinte Agricole si Medicina Veterinara
aprox.
1688 m
Facultatea de Zootehnie si Biotehnologii
aprox.
1708 m
Profi City
aprox.
196 m
Complex Comercial Flora
aprox.
230 m
Profi
aprox.
247 m
Carrefour Market
aprox.
462 m
Penny Market
aprox.
472 m
Profi
aprox.
579 m
Profi
aprox.
611 m
Winmarkt
aprox.
750 m
Carrefour Market
aprox.
753 m
NONstop
aprox.
845 m
Complex Nora
aprox.
851 m
La doi Pasi
aprox.
876 m
Cora
aprox.
884 m
Profi
aprox.
1042 m
Olimpia
aprox.
1054 m
Complex comercial Polus
aprox.
1493 m
Parcare
aprox.
161 m
Parcare
aprox.
254 m
Parcare
aprox.
285 m
Parcare
aprox.
312 m
Parcare
aprox.
338 m
Parcare privata cu plata
aprox.
357 m
Parcare Billa
aprox.
385 m
Parcare
aprox.
395 m
Parcare
aprox.
405 m
Parcare
aprox.
466 m
Parcare
aprox.
487 m
Parcare bloc B2
aprox.
500 m
Parcare
aprox.
617 m
Parcare
aprox.
617 m
Parcare
aprox.
693 m
Parc
aprox.
84 m
Parc
aprox.
110 m
Parc
aprox.
211 m
Parc
aprox.
278 m
Parc
aprox.
280 m
Parc
aprox.
317 m
Parc
aprox.
330 m
Parc
aprox.
462 m
Parc
aprox.
489 m
Parc
aprox.
533 m
Parc
aprox.
537 m
Parc
aprox.
538 m
Parcul Primaverii
aprox.
573 m
Parc
aprox.
574 m
Parc
aprox.
593 m
Teren sportiv
aprox.
86 m
Teren sportiv
aprox.
106 m
Teren sportiv
aprox.
162 m
Teren sportiv
aprox.
176 m
Teren sportiv
aprox.
626 m
Teren sportiv
aprox.
684 m
Teren sportiv
aprox.
709 m
Teren sportiv
aprox.
716 m
Teren sportiv
aprox.
722 m
Teren sportiv
aprox.
722 m
Teren sportiv
aprox.
725 m
Teren sportiv
aprox.
738 m
Teren sportiv
aprox.
743 m
Teren sportiv
aprox.
749 m
Teren sportiv
aprox.
750 m
Galenus 2
aprox.
128 m
Donna
aprox.
228 m
Cynara
aprox.
272 m
Farmacia Richter
aprox.
379 m
Farmacia Viva
aprox.
414 m
Catena
aprox.
439 m
Farmacia Europa
aprox.
462 m
Help Net
aprox.
537 m
Cariatida Drogherie
aprox.
962 m
Farmacia Salvie
aprox.
1102 m
Viscum
aprox.
1162 m
Ropharma
aprox.
1217 m
Viva
aprox.
1289 m
Farmacia Herba
aprox.
1359 m
Farmacia Grigorescu
aprox.
1641 m
Clădirea Spitalului de Urgență nefinalizata
aprox.
688 m
Farmacie
aprox.
866 m
Cabinet medical universitar
aprox.
999 m
Spitalul Clinic de Urgenta pentru copii Cluj-Napoca Neonatologie-prematuri
aprox.
1307 m
Policlinica Grigorescu
aprox.
1590 m
Smile Dental Clinic
aprox.
1946 m
Medical Cor
aprox.
1961 m
Cabinetul Medical Zormed
aprox.
1991 m
Restaurant Casa Piratilor
aprox.
188 m
Casa Piratilor (en)
aprox.
202 m
Gradina de Vara Pedas
aprox.
203 m
Restaurant & Pizza Daniel Berar
aprox.
240 m
Restaurant Sophia
aprox.
268 m
McDonald's
aprox.
351 m
Restaurant Ianis
aprox.
416 m
Restaurant Boema
aprox.
643 m
Boema
aprox.
651 m
EX Cafe
aprox.
703 m
Restaurant Boierul
aprox.
704 m
Fast-Food "Big Lunch" (en)
aprox.
737 m
Pizza X
aprox.
759 m
Restaurant/disco "Sun"
aprox.
852 m
Restaurant Disco SUN
aprox.
862 m
Bistro
aprox.
198 m
PLAN Cafe
aprox.
1483 m
bike44
aprox.
1572 m
Royal cafe
aprox.
1687 m
Meron Platinia
aprox.
1860 m
Cafe Bar
aprox.
977 m
Marul de Aur
aprox.
1217 m
Infinity Games
aprox.
1648 m
Admiral
aprox.
1688 m
Cotton Club
aprox.
1854 m
Geo & Andi
aprox.
1909 m
Old Pub
aprox.
1054 m
Seven
aprox.
1162 m
Infinity Games
aprox.
1324 m
Uni Sports Bar
aprox.
1540 m
Infinity Games
aprox.
1713 m
BCR
aprox.
261 m
Bancpost
aprox.
263 m
BRD
aprox.
273 m
Banca Transilvania
aprox.
301 m
ING
aprox.
315 m
OTP Bank
aprox.
328 m
Raiffeisen Bank
aprox.
354 m
Millenium Bank
aprox.
443 m
Piraeus Bank
aprox.
443 m
OTP Bank
aprox.
451 m
Banca Comerciala Carpatica
aprox.
452 m
Raiffeisen Bank
aprox.
457 m
Banca Transilvania
aprox.
457 m
Banca Centrala Cooperatista Creditcoop
aprox.
491 m
Volksbank
aprox.
493 m
Una dintre principalele artere care străbate Mănășturul, pe direcția vest "“ nord-est, este Strada Primăverii; acesteia i se adaugă și Strada Câmpului și Strada Frunzișului, ambele pe direcția nord "“ sud-est. Cartierul este deservit de numeroase linii de transport în comun (atât autobuze, cât și troleibuze și tramvaie), menite să facă legătura cu celelalte zone ale orașului "“ și în mod special cu centrul.
Cartierul Mănăștur reprezintă o bună alegere pe termen lung din punctul de vedere al oportunităților de educație. În primă fază, în această zonă a orașului vei găsi numeroase grădinițe, atât de stat, cât și particulare. Ulterior, aici vei putea alege între numeroase școli (primare și gimnaziale), dar și licee. Pentru cei interesați, cartierul oferă și opțiuni în materie de învățământ superior. Este vorba, în primul rând, de Universitatea de Științe Agricole și Medicină Veterinară din Cluj-Napoca, amplasată în extrema de nord-est a cartierului, aproape de granița cu Plopilor. De menționat este și Universitatea "Bogdan Vodă", al cărei sediu se găsește pe strada Grigore Alexandrescu .
În ciuda faptului că poate fi considerat cel mai mare cartier al Clujului, în Mănăștur nu se găsește niciun mall propriu-zis. Cu toate acestea, de aici se poate ajunge cu ușurință atât la mallul Vivo!, din Florești, cât și la Platinia Shopping Center (amplasat în Plopilor, însă foarte aproape de granița cu Mănășturul și Centrul). În interiorul cartierului, o destinație mai apropiată de cumpărături poate fi centrul comercial Winmarkt Cluj (fostul "Big" Mănăștur), atât pe partea de fashion și cosmetice, cât și în materie de mobilă și electrocasnice. Tot aici se află și un Carrefour Market, o farmacie Sensiblu, precum și o sală de fitness. Alte opțiuni ar fi centrele comerciale Sirena (din apropierea stației Clabucet) și Flora (din vecinătatea pieței cu același nume). În Mănăștur se găsește și un hipermarket Kaufland (în zona Câmpului), alături de numeroase supermarketuri "“ dintre care unele afiliate unor rețele internaționale, precum Lidl, Profi sau Billa. Locuitorii acestei zone beneficiază și de câteva piețe amenajate, precum Flora sau Ion Meșter.
Pentru cei care au mașină, găsirea unui loc de parcare stabil în cartier poate fi o problemă "“ asta mai ales în zonele mai intens circulate și unde se află blocuri cu multe etaje. Dacă vrei să eviți situațiile neplăcute odată mutat aici, poți închiria un loc de parcare de la autoritățile locale (cererile pot fi depuse la Primăria de cartier, de pe Strada Ion Meșter, nr. 10).
Dacă ești pasionat de sport, te vei bucura să afli că în Mănăștur se află cea mai mare bază sportivă din Cluj-Napoca, anume Baza Sportivă "Unirea". Amplasat la marginea vestică a cartierului, un alt important spațiu de agrement este cunoscut sub denumirea "La terenuri". În ciuda amenajării sale deficitare, această zonă continuă să fie frecventată, îndeosebi în weekend, de către cei pasionați de activități în aer liber. Tot în Mănăștur găsești și parcurile "Colina" sau "Primăverii", cel din urmă fiind folosit și pentru organizarea unor evenimente culturale. Cartierul oferă și avantajul unui acces rapid către pădurea Făget "“ care poate fi destinația perfectă pentru o ieșire de weekend.
Dacă te gândești să te muți în Mănăștur, e bine să știi că strict în interiorul acestuia nu vei găsi, din păcate, niciun spital de stat "“ ceea ce nu înseamnă, însă, că vei duce lipsă de opțiuni în materie de servicii medicale. Asta pentru că locuitorii cartierului pot ajunge cu ușurință în zona centrală, unde vor avea acces la o serie de asemenea unități medicale. Un astfel de exemplu este Spitalul Clinic Județean de Urgență Cluj-Napoca, care este deschis 24 de ore din 24 "“ la fel ca și Spitalul Clinic Municipal Cluj-Napoca. De menționat sunt și Spitalul Universitar C.F. Cluj-Napoca, Spitalul de Pediatrie, Spitalul Clinic de Boli Infecțioase Cluj-Napoca, Spitalul de Pneumologie "Leon Daniello", dar și Spitalul Clinic de Recuperare Cluj-Napoca. În cartierul Mănăștur "“ sau în imediata sa apropiere "“ vei găsi, de asemenea, și o serie de clinici private, cum ar fi Medstar, Synevo, Union Medical, Centrul Medical Medexpert sau Centrul Medical "Jamgossian".
La capitolul gastronomie, locuitorii cartierului Mănăștur au la dispoziție, în proximitatea casei, și alte câteva variante demne de luat în seamă. Printre acestea se numără restaurantul "Casa Piraților", amplasat pe Strada Răvașului, nr. 16 (acesta dispune de terasă și oferă și servicii de livrare la domiciliu), dar și restaurantul "Valahia", de pe Strada Govora, nr. 27. În afară de restaurante, în această zonă a Clujului se mai găsesc, desigur, și o serie de fast food-uri, inclusiv o unitate McDonald's (pe Strada Primăverii, nr. 74). Alte opțiuni interesante pentru a lua masa în oraș oferă, desigur, și zona centrală.
La capitolul bănci și ATM-uri, este de așteptat ca această zonă a orașului să fie destul de bine deservită, date fiind dimensiunile sale. Spre exemplu, într-un areal destul de restrâns, anume în apropiere de intersecția dintre Strada Primăverii și Strada Izlazului, vei putea găsi patru sedii de bănci, anume un BRD și un BCR, alături de o sucursală Banca Românească și una a Băncii Transilvania. Consultă harta și află unde sunt localizate și alte bănci sau ATM-uri în cartierul Mănăștur:
Înainte să pleci...
Ești sigur că ai văzut și aceste proprietăți?
694.000 €
Cluj-Napoca, Zorilor
4 camere
192 mp
Etaj 14
620.000 €
Cluj-Napoca, Mănăștur
5 camere
200,59 mp
Etaj 24
693.456 €
Cluj-Napoca, Zorilor
4 camere
193 mp
Etaj 14 / 15
498.000 €
Cluj-Napoca, Bună Ziua
5 camere
160 mp
Etaj 6
550.000 €
Cluj-Napoca, Zorilor
4 camere
132 mp
Etaj 13
520.000 €
Cluj-Napoca, Andrei Mureșanu
5 camere
174 mp
Etaj 1
Creează alertă
Salvează căutarea ca să primești pe email ultimele anunțuri publicate
Penthouses noi cu 4+ camere de vânzare în zona Mănăștur, Cluj-Napoca
Cere detalii prin email
*
*
*
*
Detaliile tale de contact vor fi partajate cu Imodavinci Srl
Preț total3.184.830 RON (624.745 €)
Costuri cu achiziția24.194 RON
Preț de achiziție3.160.636 RON
Costuri cu achiziția24.194 RON
Comision agenție Întreabă agenţia
Onorariu notarial19.453 RON
Taxă înscriere OCPI4.741 RON
Preț de achiziție3.160.636 RON
Preț locuință3.160.636 RON
TVA 0%Inclus în prețul cerut
Cost total506.652 RON (99.386 €)
Avans (15%)474.095 RON
Cost achitat în prima lună4.618 RON
Costuri cu achiziția27.939 RON
Cost achitat în prima lună4.618 RON
Comision analiză dosar
400 RON - 900 RON
Taxă evaluare imobil(până la)
575 RON
Rata lunară (variabilă)14.079 RON
Asigurare anuală imobil3.161 RON
Arhivă electronică102 RON
Poliță PAD130 RON
Asigurare de viață/lună Costul este variabil. În funcție de banca aleasă, procentul variază între 0.0259% și 0.035% din soldul creditului.
Costuri cu achiziția27.939 RON
Comision agenție Întreabă agenţia
Onorariu notarial19.453 RON
Taxă întabulare OCPI4.741 RON
Autentificare contract credit3.745 RON
Preț de achiziție3.160.636 RON
Preț locuință3.160.636 RON
TVA 0%Inclus în prețul cerut
Preț de achiziție3.160.636 RON
Preț locuință3.160.636 RON
TVA 0%
Inclus în prețul cerut
Avans minim2.553.998 RON
Credit pe 30 de ani606.638 RON
Cost achitat în prima lună
Taxa evaluare imobil(până la)
575 RON
Rata lunară (variabilă)4.262 RON
Depozit colateral12.786 RON
Comision de garantare FNGCIMM263 RON
Asigurare anuală imobil3.161 RON
Poliță PAD130 RON
Tarif arhivă electronică102 RON
Costuri adiționale3.301 RON + taxe notariale
Asigurare viață și complexă (opțională)Costul este variabil. În funcție de banca aleasă, procentul variază între 0.0259% și 0.035% din soldul creditului
Onorariu notarialconform tarif notarial
Taxă întabulare OCPI3.301 RON
i
Toate valorile de mai sus sunt estimative și nu reprezintă în mod obligatoriu costurile exacte pe care le veți primi de la companiile/instituțiile prin care veți încheia tranzacția.