Un apartament absolut deosebit isi asteapta viitorul proprietar. Are o configuratie de 5 camere tip duplex, cu scara interioara, este situat la etajele superioare (4+5) ale unui bloc boutique cu doar 13 apartamente si este compartimentat dupa cum urmeaza:
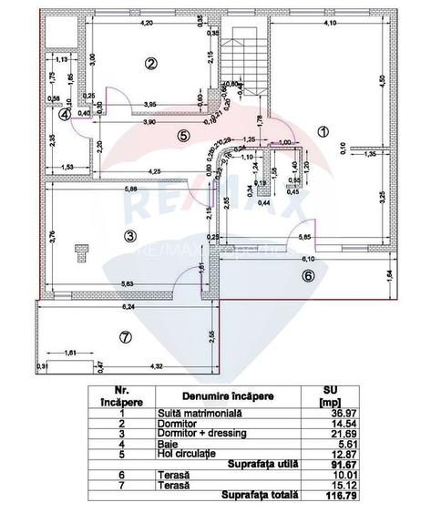
La nivelul inferior avem o zona de zi foarte spatioasa (57 mp) care include living si dining, o bucatarie de aproape 20 mp (care poate fi inchisa sau deschisa, spatiul permite adaptarea in functie de preferinte), o camera (care poate fi folosita conform nevoilor cumparatorului ca birou, dormitor suplimentar, sala de sport sau spatiu de joaca), o baie cu dus, o terasa de 34 mp, si un balcon. Accesul catre terasa a fost gandit foarte practic, circular, astfel incat aceasta se poate accesa atat din bucatarie, baie sau zona de zi. Acest lucru creeaza o unitate perfecta a spatiului pe timpul perioadei calde si ofera eleganta si confort.
La nivelul superior avem 3 dormitoare intre care o suita matrimoniala de aproape 37 mp cu baie proprie si dressing imens si un al doilea dormitor si el cu dressing, impreuna avand aproape 22 mp. Al treilea dormitor poate fi o camera ideala pentru copii, fiind situat pe partea boltita a tavanului foarte inalt. In punctul cel mai inalt tavanul are 3.5m inatime, spatiul fiind unic din acest punct de vedere. S-a dorit obtinerea unor incinte non standard, care sa satisfaca nevoile acelor clienti care vor sa iasa din norme si sa aiba o casa unicat. Tot aici la nivelul superior avem o baie secundara, iar fiecare dintre dormitoarele mari are propria terasa de 10 si respectiv 15 mp.
Imaginile sunt cu titlu de prezentare, pentru a va putea face o idee mai clara despre cum este dispus spatiul si cum ar putea fi amenajat. Pretul afisat este pentru spatiul nefinisat. Dezvoltatorul a preferat sa lase libere imaginatia si preferintele viitorului proprietar, pentru a putea adapta spatiul nevoilor sale, existand posibilitatea atat a schimbarii complete a designului interior, cat si a reconfigurarii complete a interioarelor. Desigur, proiectul afisat exista si poate fi contractat suplimentar, daca va veti indragosti de ce a gandit arhitectul care s-a ocupat de design.
Apartamentul beneficiaza de curent trifazic, usa de intrare blindata MAESTRO Italia si este izolat fonic atat in pardoseli, cat si in pereti si plansee. Structura de rezistenta este din beton armat in sistem de cadre, peretii exteriori din caramida Porotherm de 24 cm, peretii de separatie dintre apartamente din caramida Porotherm de 12 cm, iar fatada este izolata cu termosistem de 10 cm.
La pretul afisat se dauga TVA. Sunt incluse in pret doua locuri de parcare in subteran plus o boxa pentru depozitare.
Zona este in continua dezvoltare, in imediata vecinatate deschizandu-se de curand cea mai mare plaja urbana din Europa, Lagoon Park. Scola germana este, de asemenea, foarte aproape. Este un loc preferat de cei care isi doresc sa locuiasca in nordul orasului, avand acces facil catre cele doua aeroporturi si iesirea din oras catre munte. In zona sunt mai multe restaurante cunoscute, unitati medicale, cluburi de fitness, magazine, LIDL fiind la 5 minute de mers pe jos. Zona este conectata cu restul orasului prin liniile de autobuz 112, 149, 205 si 261.
Pentru mai multe detalii si stabilirea unei vizionari va stau la dispozitie.
Petrom City, Aeroportul Baneasa, Scoala Germana (Deutsche Schule Bukarest), Lagoon Park, Romexpo, Pullman, Casa Presei, Parcul Herastrau, Diplomat Club, City Gate Business Park
Sediul central - Timișoara
Bulevardul Victor Babeș nr. 2, 300230, Timișoara, România
Tel: +40.374.40.44.98 / Fax: +40.256.401.179
Email: suport@imobiliare.ro
Luni - Vineri 08:00 - 20:00
Punct de lucru - București: Iride Business Park, Bld. Dimitrie
Pompeiu 9-9A, Clădirea B2B,
020335, Sector 2, București, România
CONTACT
Sediul central - Timișoara
Bulevardul Victor Babeș nr. 2, 300230, Timișoara, România
Tel: +40.374.40.44.98 / Fax: +40.256.401.179
Email: suport@imobiliare.ro
Luni - Vineri 08:00 - 20:00
Punct de lucru - București: Iride Business Park, Bld. Dimitrie
Pompeiu 9-9A, Clădirea B2B,
020335, Sector 2, București, România
Sună acum și cere detalii sau programează o vizionare.
Cere detalii prin email
*
*
*
*
Stații autobuz
Stații tramvai
Școli
Universități
Gradinițe
Supermarket
Parcări
Terenuri sport
Parcuri
Piețe publice
Spital
Farmacie
Restaurant
Cafenea
Bar
Bancă
Statie Nuferilor 148, 149, 112
aprox.
150 m
Nuferilor
aprox.
153 m
Statie Foradex 148, 149, 112
aprox.
217 m
Statie Coralilor 148, 149, 112
aprox.
442 m
statie Combinatul Fondului Plastic 148, 149, 112
aprox.
782 m
Combinatul Fondului Plastic
aprox.
839 m
Gara Baneasa
aprox.
919 m
Brodina statie 205, 148, 149, 261, 112
aprox.
976 m
Statie RATB : Dridu - Linii: 112,331
aprox.
984 m
Parcului
aprox.
986 m
Statie RATB : Hotel Parc - Linii: 148,149,331,112,
aprox.
988 m
statie Pod Baneasa 131, 205, 261, 335, N113, 304
aprox.
1008 m
Statie RATB : Hotel Parc - Linii: 148,149, 331,112
aprox.
1027 m
statie Gara Baneasa 131, 205, 261, 335, N113, 304
aprox.
1039 m
Parcului
aprox.
1048 m
Statie RATB 5
aprox.
1182 m
Aeroport Baneasa
aprox.
1192 m
Cartier Damaroaia
aprox.
1208 m
Statie Cartier Damaroaia Tv24
aprox.
1229 m
Aeroport Baneasa
aprox.
1279 m
Statie RATB 5
aprox.
1314 m
Piata Baneasa
aprox.
1453 m
Apicola
aprox.
1718 m
Capat linie:41 (en)
aprox.
1736 m
Piata Presei
aprox.
1742 m
Universitatea Romano-Americana
aprox.
1781 m
Statia Camera de Comert, linia 42
aprox.
1781 m
Universitatea Romano-Americana
aprox.
1803 m
Bd. Expozitiei
aprox.
1993 m
Scoala Genesis
aprox.
574 m
Gradinita de stat nr. 115 (en)
aprox.
637 m
Grup Scolar de arte si meserii Dimitrie Paciurea
aprox.
757 m
Colegiul Tehnic "Media"
aprox.
774 m
Atelier
aprox.
792 m
Scoala Nr. 6
aprox.
827 m
Scoala Generala nr. 6
aprox.
827 m
Scoala Generala nr 6
aprox.
827 m
Grup scolar de arte si meserii Dimitrie Paciurea
aprox.
828 m
Universitatea Biotera
aprox.
963 m
Scoala Europeana
aprox.
1008 m
International School for Primary Education
aprox.
1010 m
International School for Primary Education, Bucharest (en)
aprox.
1092 m
School no. 178
aprox.
1126 m
Scoala Generala Nr. 178
aprox.
1140 m
Bioterra (en)
aprox.
950 m
Universitatea Biotera
aprox.
1091 m
Universitatea Bioterra
aprox.
1091 m
Școala Superioară de Aviație Civilă - S.S.Av.C.
aprox.
1346 m
Universitatea Romano-Americana
aprox.
1926 m
Gradinita
aprox.
1185 m
Gradinita nr. 121
aprox.
1190 m
Gradinita de copii nr.122
aprox.
1235 m
Gradinita Rosemary
aprox.
1332 m
Gradinita 238 Bucuresti
aprox.
1461 m
Gradinita
aprox.
1496 m
Gradinita cu program prelungit Winnie
aprox.
1650 m
Gradinita Winnie
aprox.
1650 m
Gradinita Ciupercuta
aprox.
1685 m
Grădinița Mary Poppins
aprox.
1894 m
Complex Flora(Puzdrea)
aprox.
942 m
Crystal System S.R.L.
aprox.
951 m
Auto Boca
aprox.
1064 m
Gulliver
aprox.
1085 m
Profi City Pajura
aprox.
1244 m
Profi
aprox.
1403 m
Mega Image
aprox.
1433 m
Mega Image
aprox.
1499 m
Complexul comercial Baneasa
aprox.
1515 m
SELGROS Baneasa
aprox.
1683 m
Profi
aprox.
1729 m
Parcare
aprox.
318 m
Parcare
aprox.
819 m
Parcare
aprox.
955 m
Parcare
aprox.
1056 m
Parcare
aprox.
1144 m
Parcare
aprox.
1150 m
Parcare
aprox.
1178 m
Parcare
aprox.
1199 m
Parcare
aprox.
1208 m
Parcare
aprox.
1218 m
Parcare
aprox.
1221 m
Parcare
aprox.
1256 m
Parcare
aprox.
1272 m
Parcare
aprox.
1293 m
Parcare
aprox.
1297 m
Teren sportiv
aprox.
320 m
Teren sportiv
aprox.
669 m
Teren sportiv
aprox.
1091 m
Teren sportiv
aprox.
1128 m
Teren sportiv
aprox.
1132 m
Teren sportiv
aprox.
1141 m
Teren sportiv
aprox.
1142 m
Teren sportiv
aprox.
1166 m
Teren sportiv
aprox.
1187 m
Teren sportiv
aprox.
1208 m
Teren sportiv
aprox.
1223 m
Teren sportiv
aprox.
1350 m
Biruinta
aprox.
1382 m
Teren sportiv
aprox.
1417 m
Teren sportiv
aprox.
1545 m
Loc de Joaca
aprox.
943 m
Loc de joaca
aprox.
962 m
Fantana Miorita(1936)Arh.Octav Doicescu
aprox.
1048 m
Loc de joaca
aprox.
1261 m
Parc
aprox.
1276 m
Parcul Herastrau
aprox.
1323 m
Piața Presei Libere
aprox.
1344 m
Parc
aprox.
1354 m
Parc
aprox.
1401 m
Loc de joaca
aprox.
1415 m
Insula Copiilor
aprox.
1426 m
Parc
aprox.
1431 m
Parc
aprox.
1596 m
Loc de joaca
aprox.
1616 m
Parc
aprox.
1625 m
Piata Montreal
aprox.
1736 m
Maternitatea Regina Maria
aprox.
904 m
Spitalul "Regina Maria" - Baneasa
aprox.
950 m
Centrul Medical Unirea - CMU Baneasa
aprox.
955 m
Centrul Medical Unirea - CMU Bucharest Business Park
aprox.
1070 m
Centrul de Dializa dr.Carol Davila
aprox.
1144 m
Centrul de Dializa Fresenius Bucuresti
aprox.
1144 m
Dispensarul Baneasa
aprox.
1184 m
Policlinica Pajura
aprox.
1301 m
NeoLife Medical Center
aprox.
1575 m
Ava Clinique
aprox.
1788 m
Spitalul Cfr 2
aprox.
1858 m
Spitalul 2 CFR
aprox.
1859 m
Medicover Hospital Pipera
aprox.
1999 m
Help Net Farma
aprox.
1056 m
Dridu Farm
aprox.
1092 m
Farmacie
aprox.
1095 m
Farmacia M
aprox.
1307 m
Farmacia naturista
aprox.
1366 m
Farmacia Catena Baneasa Non-Stop
aprox.
1447 m
Farmacia 99
aprox.
1467 m
Pharma-Plant Impex
aprox.
1513 m
Farmacie
aprox.
1683 m
Farmacia World Trade Pharma
aprox.
1711 m
Dona
aprox.
1742 m
Catena
aprox.
1755 m
Ircom Impex
aprox.
1888 m
Farmacie Comunitara
aprox.
1975 m
Taverna Sarbului
aprox.
853 m
Taverna Sarbului
aprox.
874 m
Clubul Sporturilor Tehnico-aplicative a Mun.Bucuresti
aprox.
888 m
Hora
aprox.
966 m
Hotel Diplomat ****
aprox.
975 m
Yummy Chicken
aprox.
996 m
Arcade Events
aprox.
1028 m
Bella Tratoria
aprox.
1035 m
Restaurant Del Ponte Pizza (en)
aprox.
1038 m
Restaurant Capricciosa
aprox.
1039 m
Voievodal Baneasa
aprox.
1039 m
Restaurant Noroc OMV
aprox.
1046 m
La Jar
aprox.
1053 m
Clubul Diplomatic
aprox.
1249 m
Cris Garden
aprox.
1304 m
La Boeru
aprox.
1024 m
Banca Transilvania
aprox.
1086 m
Caffe Glamour
aprox.
1105 m
Dow Class Bar And Restaurant
aprox.
1321 m
Pizzeria STAR Selgros Baneasa
aprox.
1711 m
S-Park Office Building
aprox.
912 m
ING Tipografilor
aprox.
954 m
ATE Bank
aprox.
967 m
Alpha Bank
aprox.
1052 m
OTP
aprox.
1055 m
Emporiki Bank
aprox.
1056 m
Western Union
aprox.
1059 m
BRD
aprox.
1061 m
ING Baneasa
aprox.
1069 m
CEC
aprox.
1073 m
Piraeus
aprox.
1090 m
CR Firenze
aprox.
1099 m
Banca Transilvania - Suc. Baneasa
aprox.
1100 m
Banca Transilvania - Centru regional
aprox.
1104 m
Bancpost
aprox.
1127 m
Înainte să pleci...
Ești sigur că ai văzut și aceste proprietăți?
349.000 € + TVA
București, Dămăroaia
5 camere
196,58 mp
Etaj 4 / 5
385.000 €
București, Dămăroaia
4 camere
133,53 mp
Etaj 5 / 5
349.850 €
București, Dămăroaia
4 camere
118 mp
Etaj 2
424.500 €
București, Băneasa
4 camere
132 mp
Parter
475.000 €
București, Băneasa
4 camere
206 mp
Parter / 4
369.900 € + TVA
București, Băneasa
4 camere
200 mp
Etaj 5
Creează alertă
Salvează căutarea ca să primești pe email ultimele anunțuri publicate
Penthouses cu 4+ camere de vânzare în zona Dămăroaia, Sector 1
Cere detalii prin email
*
*
*
*
Detaliile tale de contact vor fi partajate cu Re/max Properties
Preț total2.169.900 RON (425.704 €)
Costuri cu achiziția17.403 RON
Preț de achiziție2.152.497 RON
Costuri cu achiziția17.403 RON
Comision agenție Întreabă agenţia
Onorariu notarial14.174 RON
Taxă înscriere OCPI3.229 RON
Preț de achiziție2.152.497 RON
Preț locuință1.778.922 RON
TVA 21%373.574 RON
Cost total346.793 RON (68.035 €)
Avans (15%)322.875 RON
Cost achitat în prima lună3.609 RON
Costuri cu achiziția20.309 RON
Cost achitat în prima lună3.609 RON
Comision analiză dosar
400 RON - 900 RON
Taxă evaluare imobil(până la)
575 RON
Rata lunară (variabilă)9.588 RON
Asigurare anuală imobil2.152 RON
Arhivă electronică102 RON
Poliță PAD130 RON
Asigurare de viață/lună Costul este variabil. În funcție de banca aleasă, procentul variază între 0.0259% și 0.035% din soldul creditului.
Costuri cu achiziția20.309 RON
Comision agenție Întreabă agenţia
Onorariu notarial14.174 RON
Taxă întabulare OCPI3.229 RON
Autentificare contract credit2.906 RON
Preț de achiziție2.152.497 RON
Preț locuință1.778.922 RON
TVA 21%373.574 RON
Preț de achiziție2.152.497 RON
Preț locuință1.778.922 RON
TVA 21%
373.574 RON
Avans minim1.545.930 RON
Credit pe 30 de ani606.567 RON
Cost achitat în prima lună
Taxa evaluare imobil(până la)
575 RON
Rata lunară (variabilă)4.262 RON
Depozit colateral12.786 RON
Comision de garantare FNGCIMM179 RON
Asigurare anuală imobil2.152 RON
Poliță PAD130 RON
Tarif arhivă electronică102 RON
Costuri adiționale2.292 RON + taxe notariale
Asigurare viață și complexă (opțională)Costul este variabil. În funcție de banca aleasă, procentul variază între 0.0259% și 0.035% din soldul creditului
Onorariu notarialconform tarif notarial
Taxă întabulare OCPI2.292 RON
i
Toate valorile de mai sus sunt estimative și nu reprezintă în mod obligatoriu costurile exacte pe care le veți primi de la companiile/instituțiile prin care veți încheia tranzacția.