Penthouse 3 camere 5/5, parcare,centrala, Bdul Timisoara, Str. Leaota.

239.000 € + TVA

Drumul Taberei, București

Nr. cam.:
3
Sup. utilă:
81,1 mp
Etaj:
5 / 5
An constr.:
2023 (Finalizată)
  • • Locație aproximativă

Descriere apartament

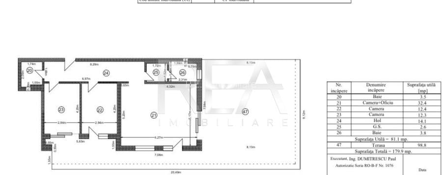
R.E.A. Imobiliare va ofera spre vanzare un penthouse cu 3 camere, decomandat situat in apropriere de Bdul Timisoara, pe Str. Leaota langa Scoala Finlandeza. Imobilul se afla intr-un bloc de apartamente construit in anul 2023, fara risc seismic, la etajul 5/5. Este alcatuit din living cu bucatarie open space, doua dormitoare, bucatarie, doua bai si o terasa de 98,8 mp. Suprafata totala este de 179,9 mp, iar cea utila este de 81,1 mp. Apartamentul, se vinde la gri sau se poate vinde si finisat la pretul de 270000+tva, dispune si de parcare subterana la pretul de 30000e +tva, sau supraterana la pretul de 25-28000+tva cu stație electrica, iar accesul se face pe baza de telecomanda. Confortul termic este realizat cu ajutorul centralei termice, dar si cu ajutorul aparatului de aer conditionat. In imediata apropiere se intalnesc puncte comerciale, bancare, farmaceutice, medicale, educationale si de divertisment ( Mall Plaza, Lidl, 600m, Carrefour Lujerului, Parcul Liniei 700m.) Acces facil la mijloacele de transport in comun, 3 minute pana la statia Stb, 13 minute pana la statia de metrou Romancierilor. Se accepta toate modalitatiile de plata. Informatiile tehnice au caracter orientativ, acestea fiind preluate de la proprietar. Pentru mai multe detalii si vizionari nu ezitați sa ne contactați, specificand codul P7524.
Citește mai mult Citește mai puțin
Confort 1 Decomandat Nemobilat Aer condiționat Calorifere Centrală proprie Încălzire prin pardoseală Beci 1 Parcare Bine întreținut (Bună)

Detalii apartament

ID anunț: XDKS106LC Copiat! 261291494 Copiat!
Actualizat în: 08 Aprilie 2026
Suprafață construită: 97 mp
Nr. bucătării: 1
Nr. băi: 2
Tip imobil: Bloc de apartamente
Regim înălțime: P+5E
Nr. terase: 1

Utilități

Destinație
Rezidențial
Ușă intrare
Metal
Izolații termice
Exterior
Ferestre cu geam termopan
PVC
Contorizare
Contor căldură Contor gaz
Diverse
Telecomandă poartă acces auto
Alte spații utile
Terasă WC Serviciu Debara
Facilități imobil
Interfon Lift
Utilități
Curent Apă Canalizare Gaze
Internet
Fibră optică
Servicii imobil
Supraveghere video
Amenajare străzi
Asfaltate Iluminat stradal Mijloace de transport în comun
Comision
Standard

Puncte de interes

Mijloace transport
bus-station
Statie 137, 138 (en)
Stații autobuz aprox. 214 m
tram-station
Statia Romancierilor, linia 8,25,47
Stații tramvai aprox. 225 m
metro-station
Romancierilor (M5)
Stații metrou aprox. 587 m
trolleybus-station
statia Piața Gorjului: 61, 62
Stații troleibuz aprox. 617 m
Școală
school
Scoala Nr. 309
Școli aprox. 414 m
school
Colegiul Tehnic de Posta si Telecomunicatii Gheorghe Airinei
Școli aprox. 415 m
kindergarten
Cresa
Gradinițe aprox. 667 m
university
Colegiu Penticostal
Universități aprox. 1865 m
Recreere
supermarket
Megaimage
Supermarket aprox. 301 m
park
Loc de joaca
Parcuri aprox. 407 m
restaurant
GEDI Bucharest (en)
Restaurant aprox. 408 m
sports-ground
Baza Sportiva Givova
Terenuri sport aprox. 568 m

Detalii despre preț și costuri

Prețul pe piață

Preț cerut: 239.000 €

Preț min. zonă
Preț max. zonă

99% dintre proprietățile similare ca zonă și nr. camere au prețul cerut mai mic. mai multe...

Bine de știut: prețul unei proprietăți este influențat și de alte caracteristici, cum ar fi: vechime, localizare, vecinătăți, suprafață, compartimentare, amenajări, dotări, etc. mai puțin...

Insight premium disponibil după login

Costuri cu achiziția

Fără credit
Credit ipotecar
Noua casă

i

Costuri adiționale mai puțin știute la achiziție: taxe notariale, comisioane etc.

Insight premium disponibil după login

Proprietăți recomandate

Detalii de contact

R.E.A. Imobiliare

Georgiana Lixandru Broker

4.78(3 review-uri)

R.E.A. Imobiliare
PRO

Abonează-te la newsletter să fii primul care primește cele mai noi recomandări de proprietăți și sfaturi de la experți.

CONTACT

Creează alertă

Salvează căutarea ca să primești pe email ultimele anunțuri publicate

Penthouses noi cu 3 camere de vânzare în zona Drumul Taberei, Sector 6