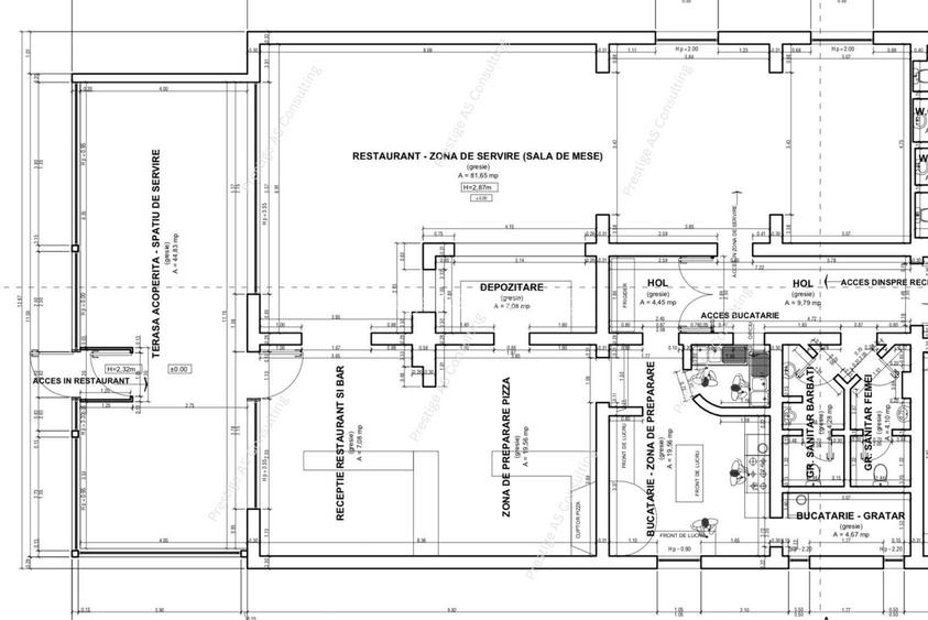
Disponibil pentru inchiriere spatiu comercial tip restaurant, complet functional, cu suprafata utila de 210 mp, pregatit pentru operare imediata. Spatiul dispune de 2 grupuri sanitare si aproximativ 60 locuri la mese.
Avantaj major: business deja functional. Restaurantul beneficiaza de clientela deja formata, inclusiv flux constant din partea oaspetilor hotelului pentru mic dejun si cina. Este o oportunitate reala pentru un operator care doreste sa intre direct in productie, fara perioada lunga de formare a pietei.
Spatiul se potriveste excelent pentru concepte de restaurant, bistro sau wine bar, cu accent pe experienta si atmosfera.
Este ideal pentru activitati cu un nivel controlat de zgomot, orientate spre servire si socializare.
Bucataria este complet echipata cu 2 hote profesionale, aragaz 6 focuri, fripteoza dubla, masa rece 3 usi, masa rece 2 usi, chiuveta bucatar, chiuveta oale / tigai, chiuveta spalator, masina de spalat vase cu capota, mese inox, oale / tigai / ustensile, cuptor patiserie si cuptor gatit.
Zona de pizzerie este separata si complet echipata cu 2 malaxoare (dimensiuni diferite), masa marmura, salateda, feliator, masa inox, chiuveta si spatiu de depozitare.
Barul este complet utilat cu masina de spalat vase, masa rece, congelator, vesela completa, tacamuri si pahare incluse, precum si sistem audio Bose.
Garantie: 2.000 EUR.
*La pretul inchirierii se adauga 21% TVA
Spatiul este pregatit pentru deschidere imediata si se preda exact cu tot ce este necesar pentru operare.
Suntem disponibili pentru a va oferi mai multe detalii.
Sediul central - Timișoara
Bulevardul Victor Babeș nr. 2, 300230, Timișoara, România
Tel: +40.374.40.44.98 / Fax: +40.256.401.179
Email: suport@imobiliare.ro
Luni - Vineri 08:00 - 20:00
Punct de lucru - București: Iride Business Park, Bld. Dimitrie
Pompeiu 9-9A, Clădirea B2B,
020335, Sector 2, București, România
CONTACT
Sediul central - Timișoara
Bulevardul Victor Babeș nr. 2, 300230, Timișoara, România
Tel: +40.374.40.44.98 / Fax: +40.256.401.179
Email: suport@imobiliare.ro
Luni - Vineri 08:00 - 20:00
Punct de lucru - București: Iride Business Park, Bld. Dimitrie
Pompeiu 9-9A, Clădirea B2B,
020335, Sector 2, București, România
Sună acum și cere detalii sau programează o vizionare.
Nu rata ocazia să afli mai multe!
Sună acum și cere detalii sau programează o vizionare.
Cere detalii prin email
*
*
*
*
Stații troleibuz
Stații autobuz
Stații tren
Stații tramvai
Școli
Gradinițe
Universități
Supermarket
Mall
Hipermarket
Parcări
Terenuri sport
Parcuri
Farmacie
Spital
Restaurant
Cafenea
Pub
Bancă
Statie Ion Ionescu de la Brad T14
aprox.
143 m
Statie Piata Verde/Liege T17
aprox.
1346 m
Statie Cimitirul Eroilor T14
aprox.
1558 m
Statie Miresei E6
aprox.
1792 m
Sf. Apostoli Petru si Pavel
aprox.
386 m
Statie Apostoli Petru si Pavel E2
aprox.
439 m
Statie Apostoli Petru si Pavel T14, A40
aprox.
476 m
Statie Holdelor A40
aprox.
542 m
Holdelor
aprox.
547 m
Statie Pomiculturii E2, T14
aprox.
850 m
Statie Pomiculturii A40, T14
aprox.
857 m
Statie Stuparilor A40, E2
aprox.
1068 m
U.T.T.
aprox.
1258 m
Statie Divizia 9 Cavalerie/Stuparilor A40
aprox.
1277 m
Divizia 9 Cavalerie
aprox.
1277 m
Statie U.T.T. E1, T17
aprox.
1278 m
U.T.T.
aprox.
1278 m
Liege
aprox.
1282 m
Dedeman
aprox.
1283 m
Timisoara East Railway station area (en)
aprox.
1562 m
Gara de Est
aprox.
1604 m
Statie Arena Electrica retur Tv1, Tv2
aprox.
1624 m
UMT
aprox.
1703 m
Statie UMT Tv1, Tv2
aprox.
1722 m
UMT
aprox.
1756 m
Statie Torontal Tv4, Tv6
aprox.
1780 m
Torontalului
aprox.
1781 m
Statia Meteo
aprox.
1953 m
Scoala Generala Nr. 7 "Sfanta Maria"
aprox.
103 m
Scoala Gimnaziala nr. 7 Sfanta Maria
aprox.
103 m
Grup Scolar Agricol "Iulian Dracea" Timisoara
aprox.
1289 m
Grup Scolar Agricol Iulian Dracea
aprox.
1292 m
Facultatea de Agronomie
aprox.
1632 m
Gradinita Winnie The Pooh
aprox.
440 m
Gradinita Bambi
aprox.
441 m
Gradinita Program Normal Nr. 3
aprox.
538 m
Gradinita Program Normal Nr. 27
aprox.
605 m
Gradinita Program Normal Nr. 4
aprox.
637 m
Gradinita cu program prelungit nr. 20
aprox.
679 m
Gradinita Program Prelungit Nr. 20
aprox.
912 m
Kids Club Allegria
aprox.
1052 m
Gradinita Gimini
aprox.
1105 m
Gradinita particulara Children Care Center
aprox.
1199 m
Gradinita Scooby
aprox.
1371 m
Gradinita Program Prelungit Nr. 37
aprox.
1402 m
Gradinita Smart
aprox.
1673 m
Gradinita nr. 27
aprox.
1918 m
Gradinita Program Prelungit Nr. 27
aprox.
1923 m
Universitatea de Stiinte Agricole si Medicina Veterinara a Banatului
aprox.
1594 m
Biblioteca
aprox.
1597 m
Universitatea de Stiinte Agricole si Medicina Veterinara a Banatului, Timisoara
aprox.
1798 m
Lidl
aprox.
452 m
Kaufland
aprox.
596 m
Minimarket Noroc
aprox.
709 m
Profi City
aprox.
841 m
Profi City
aprox.
967 m
Penny Market
aprox.
1230 m
Penny market
aprox.
1251 m
Auchan
aprox.
1323 m
Lidl
aprox.
1339 m
Kapa Shopping Center
aprox.
1345 m
Galeria 1
aprox.
1452 m
Selgros
aprox.
1497 m
Auchan
aprox.
1563 m
Iulius Mall
aprox.
1628 m
Lidl
aprox.
1715 m
Kappa Centrul Comercial
aprox.
1345 m
Decathlon
aprox.
1658 m
Parcare
aprox.
303 m
Parcare privata
aprox.
385 m
Parcare pentru clienti cu plata
aprox.
437 m
Parcare privata
aprox.
467 m
Parcare privata
aprox.
501 m
Parcare privata
aprox.
523 m
Parcare
aprox.
596 m
Parcare privata
aprox.
602 m
Parcare pentru clienti cu plata
aprox.
605 m
Parcare
aprox.
635 m
Parcare privata
aprox.
715 m
Parcare privata
aprox.
775 m
Parcare privata
aprox.
788 m
Parcare privata
aprox.
837 m
Parcare
aprox.
866 m
Teren sportiv
aprox.
95 m
Teren sportiv
aprox.
102 m
Teren sportiv
aprox.
122 m
Teren sportiv
aprox.
283 m
Teren sportiv
aprox.
309 m
Teren sportiv
aprox.
315 m
Teren sportiv
aprox.
451 m
Teren Tenis
aprox.
909 m
Teren Minifotbal
aprox.
929 m
Teren Tenis
aprox.
938 m
Teren sportiv
aprox.
1291 m
Teren sportiv
aprox.
1292 m
Teren sportiv
aprox.
1301 m
Teren sportiv
aprox.
1321 m
Teren sportiv
aprox.
1842 m
Parc
aprox.
257 m
Parc
aprox.
519 m
Parc
aprox.
524 m
Parc
aprox.
932 m
Parc
aprox.
981 m
Parc
aprox.
997 m
Parc
aprox.
1152 m
Parc
aprox.
1200 m
Parc de joaca copii
aprox.
1202 m
Parc
aprox.
1384 m
Parc de joaca copii
aprox.
1395 m
Parc
aprox.
1454 m
Parc
aprox.
1595 m
Parc pentru copii
aprox.
1624 m
Parc
aprox.
1633 m
Dona
aprox.
332 m
Farmacie
aprox.
797 m
Sensiblu
aprox.
1282 m
Sensiblu
aprox.
1774 m
Vlavar Med
aprox.
1916 m
Centrul Medical DALMED
aprox.
723 m
Policlinica Garleanu (en)
aprox.
1911 m
Adriatico
aprox.
21 m
Restaurant Casa Voastra
aprox.
520 m
Restaurant Chinezesc Song Du
aprox.
543 m
Pizza Thalia
aprox.
545 m
Pizza Thalia
aprox.
545 m
IMPERIAL
aprox.
628 m
Pizzeria Amedeea
aprox.
642 m
Caprice
aprox.
701 m
Restaurant Caprice
aprox.
719 m
Franceasca
aprox.
734 m
Anatolia
aprox.
745 m
Fornetti
aprox.
753 m
Pizzeria Al Pacino
aprox.
940 m
Pizzeria Rebecca
aprox.
1110 m
Filiberto Ristorante e Pizzeria
aprox.
1154 m
Millenium Cafe
aprox.
945 m
Lounge Cafe Dielli
aprox.
1277 m
Starbucks
aprox.
1700 m
Old House
aprox.
1433 m
Banca Transilvania
aprox.
359 m
BCR
aprox.
445 m
UniCredit Bank
aprox.
490 m
BRD
aprox.
499 m
Raiffeisen Bank
aprox.
512 m
Alpha Bank
aprox.
589 m
Raiffeisen Bank
aprox.
1252 m
Banca Transilvania
aprox.
1275 m
BRD
aprox.
1277 m
ING
aprox.
1281 m
Alpha Bank
aprox.
1286 m
Raiffeisen Bank
aprox.
1291 m
Piraeus Bank
aprox.
1292 m
BCR
aprox.
1364 m
Raiffeisen Bank
aprox.
1554 m
În ceea ce privește rețeaua de transport în comun, de menționat ar fi linia de autobuz 40, care face legătura cu centrul orașului, dar și linia autobuzului de tip expres 2, care ajunge și în Aradului, străbătând capitala Banatului de la nord la sud. Pasionații de ciclism nu au la dispoziție o rețea compactă de piste amenajate (așa ceva există, totuși, pe Calea Sever Bocu), dar pot folosi și traseele destinate șoferilor (sau chiar pietonilor).
În ceea ce privește învățământul preșcolar, de menționat ar fi, totuși, grădinițele "Giminni" (de pe Strada Carol Davila) și "Buburuza Veselă" (de pe Strada Ion Roată), precum și Școala Gimnazială Nr. 7 "Sfânta Maria" (de pe Strada Ion Ionescu de la Brad). La capitolul învățământ superior, Lipovei nu oferă, practic, oportunități pentru cei care ar dori să studieze în cartier; zona beneficiază, însă, de vecinătatea cu Aradului, unde se găsește o importantă instituție de învățământ superior, anume Universitatea de Științe Agricole și Medicină Veterinară a Banatului (de care ține Facultatea de Medicină Veterinară, dar și Facultatea de Tehnologia Produselor Alimentare). Mai jos poți vedea în detaliu ce unități de învățământ există în Lipovei:
Lipovei este, cu siguranță, unul dintre cartierele timișorene cel mai bine reprezentate în ceea ce privește oportunitățile de cumpărături. Astfel, pe lângă magazinele "de cartier" de care dispune acesta (printre care se numără și un Profi City), un avantaj deosebit este dat de faptul că în extrema sa sudică s-a constituit, în timp, o zonă comercială în toată puterea cuvântului. Astfel, în arealul format de străzile Divizia 9 Cavalerie și Aristide Demetriade pot fi găsite multiple destinații de cumpărături, printre care se numără două magazine de bricolaj (Praktiker și Dedeman), dar și Iulius Mall. Acest din urmă centru comercial, având o vechime de peste zece ani, include, în afară de numeroasele magazine din sfera de fashion (dar nu numai), și un hipermarket Auchan.
Ca și posesorii de autovehicule din celelalte cartiere timișorene, cei din Lipovei se pot interesa la sediul central al Primăriei orașului (de pe Bulevardul Constantin Diaconovici Loga, nr. 1) cu privire la procedura de închiriere a unui loc de parcare de la autoritățile locale.
La fel ca timișorenii din Aradului, cei din Lipovei au la dispoziție câteva locuri de joacă pentru copii, însă nu prea au opțiuni în materie de parcuri propriu-zise (Parcul Silistra și Parcul Strada Constructorilor fiind exemple aflate oarecum la limită) "“ asta în ciuda faptului că în această subdiviziune a orașului există ample zone verzi pretabile pentru asemenea amenajări. Acest dezavantaj este contrabalansat, pe de o parte, de proximitatea pădurii din nordul cartierului, care constituie o interesantă oportunitate de relaxare, cel puțin pe timp de weekend. Pe de altă parte, locuitorii acestei zone pot ajunge cu relativă ușurință în zona Cetate, unde, foarte aproape de "granița" cu Lipovei, se găsește Grădina Botanică a orașului de pe Bega. Află, mai jos, ce alte opțiuni de petrecere a timpului liber mai ai în Lipovei:
Comparativ cu învecinatul Aradului, cartierul Lipovei este ceva mai slab reprezentat când vine vorba de servicii medicale. Și locuitorii acestei zone a capitalei Banatului au acces, desigur, la o serie de cabinete medicale private "de cartier", cu diverse specializări. Singurul centru medical de mai mari dimensiuni din cartier este însă Policlinica "Regina Maria", din cadrul centrului comercial Iulius Mall; ocupând o suprafață de 1.100 de metri pătrați, aceasta oferă acces la peste 20 de specialități medicale, pentru adulți, dar și pentru copii. De precizat este că, deși nici în Lipovei nu se găsește niciun spital de stat, locuitorii cartierului au de câștigat de pe urma proximității zonei centrale a orașului, unde se află mai multe asemenea instituții de profil (printre acestea numărându-se și Spitalul Militar de Urgență "Dr. Victor Popescu").
În cazul în care îți plac preparatele cu specific pescăresc, în acest cartier vei găsi unul dintre resturantele renumite pentru meniul variat pe care îl oferă. Astfel, mergând pe Calea Sever Bocu, nr. 74, vei găsi restaurantul Pescada. De asemenea, o serie de fast-food-uri și restaurante, dacă te vei îndrepta spre zona comercială - Galeria 1. În apropierea ta se află Mall-ul Iulius Mall și Iulius Town, unde, cu siguranță ai posibiliatea să găsești ceva pe gustul tău. Aruncă o privire pe hartă și vezi unde vei găsi cel mai apropiat restaurant de viitoarea ta locuință.
În cazul în care vei locui în acest cartier, te afli într-o zonă cu multiple variante în ceea ce privește sucursalele bancare și ATM-uri. Vei găsi un bancomat de OTP Bank (pe str. Sf. Apostol Petru și Pavel, nr. 13), iar pe Calea Sever Bocu ai trei variante: un bancomat de Raiffeisen Bank, unul de BRD și o sucursală Alpha Bank. Deplasându-te spre magazinul Dedeman vei găsi un bancomat BCR (Str. Divizie 9 Cavalerie, nr. 66). Ai șansa să găsești și mai multe bancomate și sucursale la Iulius Mall - centru comercial care se află în apropiere. Consultă harta și află unde sunt localizate și alte bănci sau ATM-uri în zona de care ești interesat:
Înainte să pleci...
Ești sigur că ai văzut și aceste proprietăți?
2.000 € / lună
Timișoara, Ronaț
502 mp utili
Logistică
2.000 € / lună
Timișoara, P-ța Unirii
61 mp utili
Bloc de apartamente
4E
1.861 € / lună
Timișoara, Freidorf
101 mp utili
Bloc de apartamente
3E
Creează alertă
Salvează căutarea ca să primești pe email ultimele anunțuri publicate
Spații comerciale cu 2 camere de închiriat în zona Lipovei, Timișoara
Cere detalii prin email
*
*
*
*
Detaliile tale de contact vor fi partajate cu Prestige As Consulting