Închiriez cinematograf în Timișoara – proiecții, lansări, conferințe

7.361 € + TVA / lună
12.01 € + TVA / mp / lună

Steaua, Timișoara

Sup. utilă / mp. utili:
613,47 mp
Tip prop.:
Centru comercial
An constr.:
1930 (Există)
  • • Comision 0%
  • • Exclusivitate
  • • Locație exactă

Descriere spațiu comercial

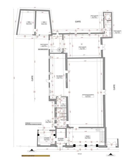
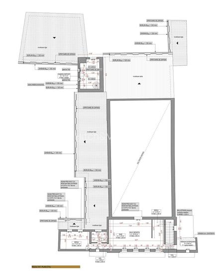
CINEMATOGRAF DE ÎNCHIRIAT – Timișoara Spațiu generos, complet renovat, cu multiple posibilități de amenajare – ideal pentru cinematograf / sală evenimente, dar și pentru restaurant, sală de fitness, clinică medicală, showroom sau activități culturale/corporate. Imobilul este dispus pe parter + etaj parțial (P+E parțial) și beneficiază de toate utilitățile. Suprafețe & amplasament Teren intravilan 1.229 mp, împrejmuit Construcție destinată „Cinematograf P+E parțial”, regim 2 niveluri, cu S. construită la sol 630 mp și S. construită desfășurată 762 mp Suprafață utilă (conform proprietar): 610 mp Compartimentare (orientativ, conform planuri): Parter: zonă mare tip sală/showroom (201,61 mp, H liber ~ 6,00 m), birouri (54,62 mp), bucătărie (20,02 mp), hol intrare, grup sanitar și spații auxiliare; există și o sală training (58,18 mp) + alte spații ce pot fi adaptate în funcție de destinație Etaj (parțial): sală ședință (36,34 mp), birouri, baie, cameră depozit și terasă exterioară (6,69 mp) Avantaje pentru chiriaș Spațiu versatil, pretabil pentru amenajări comerciale/medicale/sport/culturale Curte/teren generos (potențial pentru acces, terasă, aprovizionare, parcare – în funcție de proiect) Înălțime mare în zona principală (potrivită pentru sală evenimente, scenă, ring, aparatură fitness etc.)
Citește mai mult Citește mai puțin
20 Parcări

Detalii spațiu comercial

ID anunț: X1BR140MQ Copiat! 273196961 Copiat!
Actualizat în: 29 Ianuarie 2026
Suprafață utilă: 613.47 mp
Regim înălțime: P+T
Stadiu construcție: Există
Suprafață teren: 1229 mp

Utilități

Utilități
Curent Apă Canalizare Gaze
Comision
0%

Vecinătăți:

Shopping City, Dedeman, Hotel Koronna, Scoala Gimnaziala Nr. 15, Gradinita Nr 23, Mijloace de transport in comun, Profi

Disponibilitate proprietate:

Imediat

Puncte de interes

Mijloace transport
bus-station
Statie Calea Chiosodei A32
Stații autobuz aprox. 232 m
bus-station
Statie Bujorilor A32
Stații autobuz aprox. 236 m
tram-station
Statie Izlaz Tv7
Stații tramvai aprox. 526 m
train-station
Timisoara South Railway Station (en)
Stații tren aprox. 793 m
Școală
kindergarten
Gradinita Program Normal Nr. 14
Gradinițe aprox. 327 m
kindergarten
Kids Green Center[kindergarden] (en)
Gradinițe aprox. 364 m
school
Scoala Gimnaziala nr. 15
Școli aprox. 392 m
university
Institutul de Cercetari pentru Energii Regenerabile
Universități aprox. 1884 m
Recreere
restaurant
Restaurant Noana
Restaurant aprox. 312 m
park
Parc
Parcuri aprox. 348 m
sports-ground
Teren sportiv
Terenuri sport aprox. 403 m
supermarket
Profi City
Supermarket aprox. 855 m

Proprietăți similare

Spațiu industrial, 900 mp în Lugojului
7.500 € / lună
Timișoara, Lugojului
900 mp utili
Logistică
1E
Spațiu industrial, 6000 mp în Aeroport
7.200 - 14.400 € / lună
Timișoara, Aeroport
125.000 mp utili
Logistică
1E
Spațiu comercial, 470 mp în Complex Studențesc
8.000 € / lună
Timișoara, Complex Studențesc
470 mp utili
Centru comercial
2E

Detalii de contact

Abonează-te la newsletter să fii primul care primește cele mai noi recomandări de proprietăți și sfaturi de la experți.

CONTACT

Creează alertă

Salvează căutarea ca să primești pe email ultimele anunțuri publicate

Spații comerciale cu 4+ camere de închiriat în zona Steaua, Timișoara