Spatiu comercial Premium cu deschidere la Bd. Pipera

6.050 € / lună
30.25 € / mp / lună

Voluntari, Județul Ilfov

Sup. utilă / mp. utili:
200 mp
Tip prop.:
Bloc de apartamente
Niv.:
5
  • • Locație aproximativă

Descriere spațiu comercial

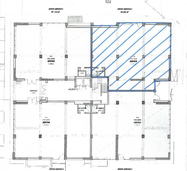
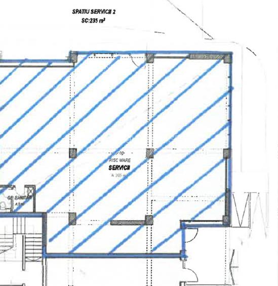
Va propunem spre inchiriere acest spatiu comercial intr-un complex modern, la parter, cu iesire directa catre Bd. Pipera, foarte aproape de intersectia cu Iancu Nicolae. Zona ofera trafic intens si vizibilitate foarte buna. Este un spatiu potrivit pentru un business care cauta expunere, acces usor si o zona premium. Suprafata utila aproximativ 200 mp. Configuratia este open space si are grup sanitar propriu. Accesul este facil din spatiile comune ale cladirii. Are 2 intrari. Spatiul permite compartimentare flexibila, adaptata activitatii tale. Este pretabil pentru clinica medicala sau stomatologica, centru de infrumusetare, salon, sala de fitness, magazin, showroom, gradinita, after school, cafenea sau bistro etc. Toate utilitatile sunt disponibile. Cladire este noua. Predare estimata in primavara-inceputul verii 2026, ceea ce iti permite sa iti planifici din timp amenajarea. Zona este puternic rezidentiala. Ai in proximitate gradinite private, scoli si numeroase ansambluri de case si apartamente. Beneficiezi de un bazin constant de clienti. Acces rapid catre Pipera, Iancu Nicolae, Baneasa si DN1. Parcare disponibila in complex, conform regulamentului. Pret: 25 euro mp/luna Comision chirias : standard. Pentru mai multe detalii sau pentru a-ti prezenta spatiu te asteptam sa ne contactezi. Nr grupuri sanitare: 1 Suprafata construita: 235 mp Nr incaperi: 1 Utilitati - Sistem incalzire (Incalzire pardoseala); Utilitati generale (Curent,Apa,Canalizare,Gaz,CATV) Finisaje - Izolatii termice (Exterior); Podele (Gresie,Parchet); Ferestre cu geam termopan (Aluminiu) Dotari - Contorizare (Apometre,Contor caldura); Dotari imobil (Spatii agrement) pret inchiriere: 5000 moneda inchiriere: EUR Disponibilitate proprietate: Iunie 2026
Citește mai mult Citește mai puțin

Detalii spațiu comercial

ID anunț: XCGD14005 Copiat! 274406963 Copiat!
Actualizat în: 16 Februarie 2026
Suprafață utilă: 200 mp
Regim înălțime: P+5E

Utilități

Contorizare
Apometre Contor căldură
Mobilat
Nemobilat
Facilități imobil
Spații agrement
Utilități
Curent Apă Canalizare Gaze CATV
Sistem încălzire
Încălzire pardoseală
Podele
Parchet Gresie
Izolații termice
Exterior
Ferestre cu geam termopan
Aluminiu
Comision
standard

Subspații disponibile

Chirie / u.m. / lună:
30.25 EUR/mp (total: 6050 EUR/lună), Comision: standard
Suprafață disponibilă:
200
Disponibilitate spațiu:
închiriat
Vitrină:
Da

Puncte de interes

Mijloace transport
bus-station
Pipera Drumul Bisericii
Stații autobuz aprox. 1378 m
bus-station
Jolie Ville Baneasa
Stații autobuz aprox. 1410 m
Școală
school
Mark Twain
Școli aprox. 272 m
school
British School of Bucharest
Școli aprox. 353 m
kindergarten
Echilibria 1
Gradinițe aprox. 802 m
kindergarten
Kindergarden
Gradinițe aprox. 826 m
Recreere
cafe
Doncafe Brasserie
Cafenea aprox. 204 m
supermarket
Billa
Supermarket aprox. 556 m
park
Loc de joaca
Parcuri aprox. 1003 m
sports-ground
Teren sportiv
Terenuri sport aprox. 1780 m

Proprietăți similare

Spațiu industrial, de 500 mp, în Sud-Vest
4.900 € / lună
Județul Ilfov, Chitila
500 mp utili
Logistică
1990
Spațiu industrial, 800 mp în Sud
5.445 € / lună
Județul Ilfov, Măgurele
800 mp utili
Producție/Servicii
1E
Spațiu industrial, de 830 mp, în Sud-Vest
4.980 € / lună
Județul Ilfov, Chitila
830 mp utili
Logistică
2025

Detalii de contact

Abonează-te la newsletter să fii primul care primește cele mai noi recomandări de proprietăți și sfaturi de la experți.

CONTACT

Creează alertă

Salvează căutarea ca să primești pe email ultimele anunțuri publicate

Spații comerciale de închiriat în Voluntari, Județul Ilfov