Centru stomatologic cu 2 cabinete + radiologie – de vanzare in Brasov

230.000 €

Județean, Brașov

Sup. utilă / mp. utili:
74 mp
Tip prop.:
Bloc de apartamente
An constr.:
1978 (Există)
  • • Comision 0%
  • • Locație aproximativă
  • • Vizionare prin apel video

Descriere spațiu comercial

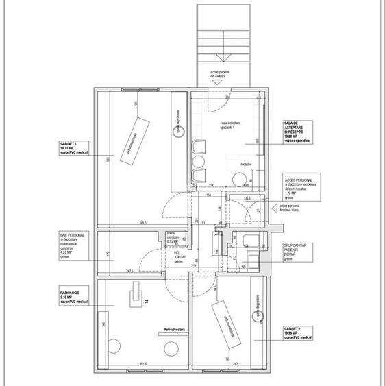
REGIS Imobiliare va propune spre vanzare un centru stomatologic complet echipat, cu o suprafata de 74 mp, situat in zona Calea Bucuresti, Brasov, compus din doua cabinete stomatologice functionale si sala de radiologie, ideal pentru desfasurarea imediata a activitatii sau investitie cu randament rapid. Astfel de proprietati — complet echipate, autorizate, pozitionate strategic si pregatite pentru operare imediata — apar rar in piata si se tranzactioneaza rapid. Spatiu medical autorizat este compartimentat dupa cum urmeaza: - Sala de asteptare si Receptie - 10.80 mp - vopsea epoxidica; - Cabinet 1 - 18,30 mp - covor PVC medical; - Cabinet 2 - 10,30 mp - covor PVC medical; - Radiologie - 9,15 mp - covor PVC medical; - Hol - 4,90 mp - gresie; - Baie personal - 4,20 mp - gresie; - Grup sanitar pacienti - 2,00 mp - gresie; - Depozitare si vestiar - 1,70 mp - gresie; - Spatiu sterilizare - 0.55 mp - gresie. Cele 3 variante de preț pentru imobil sunt: Varianta 1 - 230.000 euro - doar mobilat Varianta 2 - 250.000 euro - complet mobilat si echipat cu aparatura, instrumentar, materiale, fara aparatura pentru radiologie Varianta 3 - 315.000 euro - complet mobilat si echipat cu aparatura, instrumentar, materiale + aparatura pentru radiologie Pentru Varianta 2 de pret (250.000 euro) raman in cabinet urmatoarele: 2 unituri stomatologice, 2 autoclave, 2 compresoare, 2 aspiratoare chirurgicale, fiziodispencer, piezotom, centrifuga, instrumentar complet si materiale necesare inceperii activitatii. Cabinetul a fost in totalitate modernizat in anul 2024. A fost refacuta zona de receptie si baia pacientilor complet, a fost remobilat si schimbate uniturile stomatologice. Investitia in sala de radiologie exceptând aparatura de acolo s-a ridicat la aproximativ 10.000 de euro ( rigips baritat, ușă plumb, oblon plumb, mobilier, sistem supraveghere video). Avantajul proprietatii este evident pentru un profesionist din domeniu: activitatea poate fi inceputa imediat, fara investitii suplimentare. Cabinetul stomatologic se vinde cu 7 locuri de parcare, camera tehnica cu acces din radiologie. Pentru medici: este oportunitatea de a intra intr-un spatiu deja functional, optimizat pentru activitate, unde focusul ramane pe pacienti, nu pe investitii suplimentare. Pentru investitori: un activ ‘ready-to-income’, cu potential real de inchiriere rapida si cashflow stabil intr-un domeniu cu cerere constanta. Preiei astazi si poti produce de maine, fara timp pierdut in amenajari sau autorizari. Video prezentare: https: watch?v=5w2Ts7CBLN8 Comision 0. ID intern: 6894
Citește mai mult Citește mai puțin
Aer condiționat Căldură

Detalii spațiu comercial

ID anunț: XD27140A8 Copiat! 275494193 Copiat!
Actualizat în: 29 Aprilie 2026
Stadiu construcție: Există

Utilități

Utilități
Apă Curent Gaze Canalizare
Comision
0%

Vecinătăți:

Scoala/gradinita, Restaurant/pub, Parc, Intersectie circulata, Fastfood, Supermarket, Banca, Zona comerciala, Autobuz

Puncte de interes

Mijloace transport
bus-station
Spitalul Judetean
Stații autobuz aprox. 96 m
bus-station
Liceul Informatica
Stații autobuz aprox. 171 m
train-station
Gara Brasov Călători CFR
Stații tren aprox. 1815 m
train-station
Statia CFR Brasov
Stații tren aprox. 1849 m
Școală
school
Cladirea Liceului
Școli aprox. 211 m
school
Colegiul de Stiinte Grigore Antipa
Școli aprox. 235 m
university
Universitatea "George Baritiu"
Universități aprox. 307 m
kindergarten
Gradinita particulara Tweety
Gradinițe aprox. 411 m
Recreere
park
Parc
Parcuri aprox. 227 m
supermarket
Carrefour Market
Supermarket aprox. 230 m
sports-ground
Teren sportiv
Terenuri sport aprox. 324 m
mall
Magazinul Star
Mall aprox. 1864 m

Proprietăți similare

Spațiu comercial, de 100 mp, în Tractorul
235.000 €
Brașov, Tractorul
100 mp utili
Clădire de birouri
3E
Hotel/Pensiune, de 294 mp, în Exterior Est
230.000 €
Brașov, Exterior Est
294 mp utili
1999
Birou, de 109.00 mp, în Centrul Istoric
228.700 €
Brașov, Centrul Istoric
109 mp utili
Casă/Vilă
2E

Detalii de contact

Abonează-te la newsletter să fii primul care primește cele mai noi recomandări de proprietăți și sfaturi de la experți.

CONTACT

Creează alertă

Salvează căutarea ca să primești pe email ultimele anunțuri publicate

Spații comerciale cu 4+ camere de vânzare în zona Județean, Brașov