Spatiu comercial pretabil club, restaurant

480.000 €

Bușteni, Județul Prahova

Sup. utilă / mp. utili:
1.866 mp
Tip prop.:
Centru comercial
  • • Locație exactă

Descriere spațiu comercial

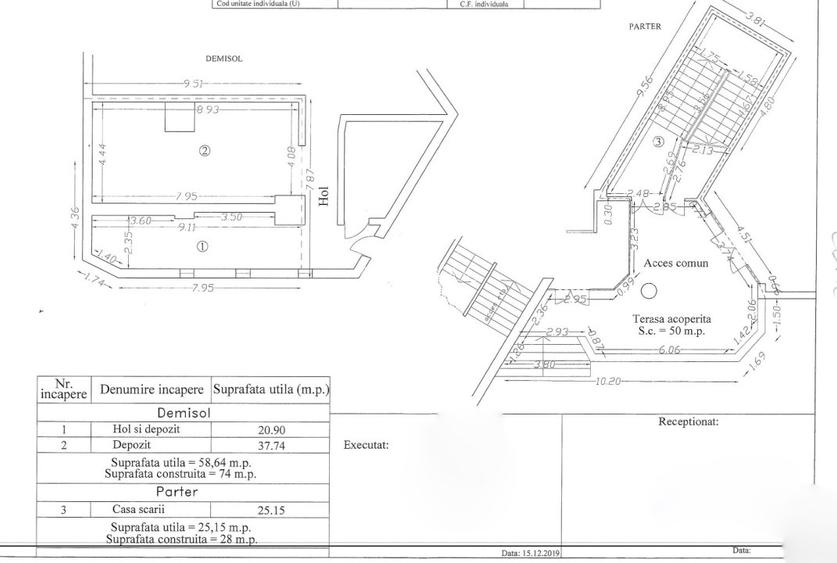
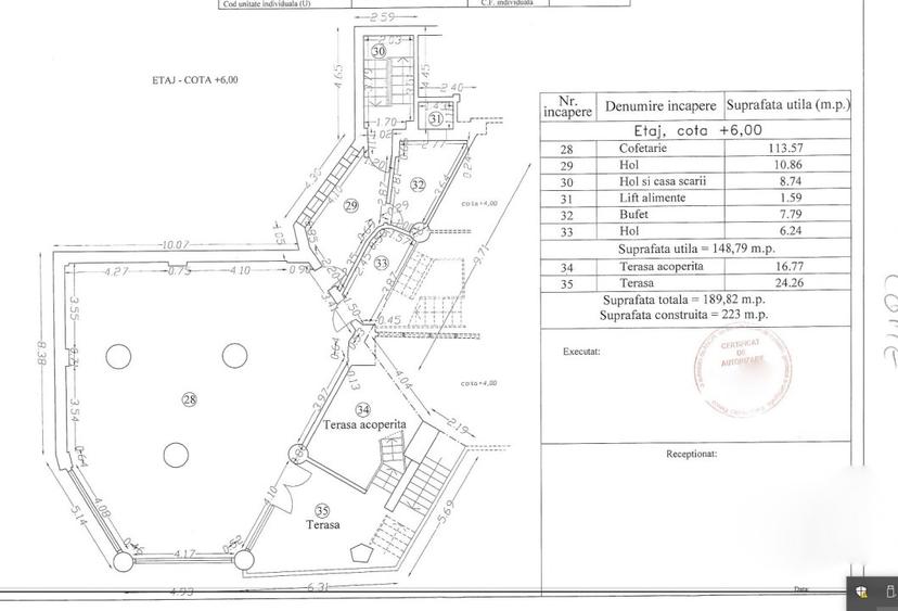
De vanzare spatiu comercial structurat pe demisol-parter-etaj-mansarda situat in cartierul Silva, in apropierea telecabinei, parcului,a traseelor turistice, precum si a salii de sport a orasului. Suprafata Utila desfasurata totala D+P+E+M 1521.73 mp , din care terase 81.55 mp Suprafata Construita desfasurata totala D+P+E+M 1866 mp Cladirea este construita din cadre de beton, pereti din beton si caramida, plansee beton. A avut ca si domeniu de activitate anterior restaurant si club. Dispune de numeroase spatii destinate prepararii alimentelor, spatii de depozitare, acces clienti, acces aprovizionare, lift destinat produselor, centrale termice (scoase din uz). Spatiile utile generoase pot primi pana la cateva sute de clienti simultan. Se poate transforma si in spatiu rezidential cu apartamente de locuit. Curent electric monofazat/trifazat, apa, canalizare, gaze naturale(momentan debransat). Posibilitate parcare autoturisme vis-a-vis de cladire. Cladirea necesita renovare la interior, pretul este negociabil.
Citește mai mult Citește mai puțin

Detalii spațiu comercial

ID anunț: XBJ104003 Copiat! 31273093 Copiat!
Actualizat în: 23 Martie 2023
Înălțime spațiu (m): 12
Regim înălțime: P
Recomandare utilizare: Pentru investiție

Puncte de interes

Recreere
park
Parcul Schiel
Parcuri aprox. 40 m
sports-ground
Teren sportiv
Terenuri sport aprox. 258 m
sports-ground
Teren sportiv
Terenuri sport aprox. 289 m
restaurant
Pensiune Casa Alba
Restaurant aprox. 1133 m

Proprietăți similare

Spațiu comercial, 1570 mp în Central
475.000 €
Ploiești, Central
1.570 mp utili
Clădire de birouri
1E
Spațiu industrial, de 3,824 mp, în B-dul București
475.000 €
Ploiești, B-dul București
3.824 mp utili
Logistică
1975
Birou, 210.7 mp în Albert
525.000 €
Ploiești, Albert
210,7 mp utili
Bloc de apartamente
5E

Detalii de contact

ARTMARQUE

Alin agent

5.00(3 review-uri)

ARTMARQUE

Abonează-te la newsletter să fii primul care primește cele mai noi recomandări de proprietăți și sfaturi de la experți.

CONTACT

Creează alertă

Salvează căutarea ca să primești pe email ultimele anunțuri publicate

Spații comerciale de vânzare în Bușteni, Județul Prahova