- Vânzare
- Spații comerciale
- Județul Prahova
- Bușteni
Spații comerciale de vânzare în Bușteni, Județul Prahova
12 / 12 anunțuri- Top Listing
- Cele mai recente
- Preț (cel mai mic)
- Preț (cel mai mare)
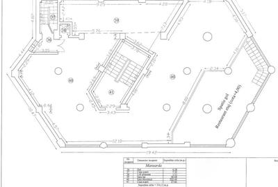
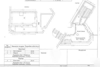
Despre proprietate HOTEL PALACE BUȘTENI Fostul Cazino și Stabiliment Balnear Fondat 1907 Nu este monument istoric - libertate totala de investire Persoana Juridica DATE TEHNICE Suprafață desfășurată:...
Comision cumparator: 0 ASCENDENT IMOBILIARE este onorata sa va propuna spre vanzare o proprietate speciala, cu potential de business, situata in Busteni, zona centrala, pe strada Mihai Eminescu, intr-un...
Activează notificările pentru a fi la curent cu cele mai noi anunțuri imobiliare.
Dezactivează notificările dacă nu vrei să mai fii la curent cu cele mai noi anunțuri imobiliare.
Ai o afacere si vrei sa o dezvolti si pe Valea Prahovei? Iti propun un spatiu multifunctional , in imobil nou, stradal cu posibilitate de acces direct, alcatuit din 2 camere, un grup sanitar, in suprafata...
Oferim spre vanzare o proprietate in Busteni-Valea Cerbului langa Sinaia Plaza, cu o deschidere la DN1 de 72 m. Proprietatea este com pusa dintr-un teren in suprafata de 6290 mp pe care sunt...
Teren si cladire de vanzare cu destinatie comerciala in Busteni cu deschidere la DN 1! Proprietate cu valoare istorică de vânzare în Bușteni Poiana Țapului, la DN1 1.717 mp teren 230 mp construcție...
Vă propun spre vânzare sau închiriere în sistem de reprezentare exclusiva cu COMISION 0 pentru cumpărător, un un spațiu comercial versatil și generos, situat la parter înalt, pe una dintre cele mai tranzitate...
Vanzare Vila P 1 M Busteni Utilizare: rezidential de vacanta pensiune Pozitionare: Cartier Zamora An constructie: 1998 Suprafata utila: 235.10 mp Suprafață utila totala: 287.50 mp Suprafata desfasurata:...
Vă prezentăm o oportunitate unică de investiție și locuire în inima stațiunii montane Bușteni și cu acces facil către principalele puncte de atracție turistică. Proprietatea este compusă din două clădiri...
Agenția imobiliara Mervani va prezinta un complex de cazare, format din 2 vile construite in anul 2002. Complexul este situat in Busteni, zona Piatra Arsa, intr-o zona deosebit de frumoasa si linistita,...
Pensiunea situata intr-o zona deosebit de frumoasa si linistita, are 8 camere si regim de inaltime P1M. Suprafata construita este de 309,60 mp, iar suprafata utila este de 254,10 mp. Curtea are o suprafata...
De vanzare spatiu comercial structurat pe demisol-parter-etaj-mansarda situat in cartierul Silva, in apropierea telecabinei, parcului,a traseelor turistice, precum si a salii de sport a orasului. Suprafata...
Căutări populare
Te-ar putea interesa și:
- Spații comerciale de vânzare în Păulești, Județul Prahova
- Spații comerciale de vânzare în Slănic, Județul Prahova
- Spații comerciale de vânzare în Urlați, Județul Prahova
- Spații comerciale de vânzare în Comarnic, Județul Prahova
- Spații comerciale de vânzare în Cheia, Județul Prahova
- Spații comerciale de vânzare în zona Vest, Ploiești
- Spații comerciale de vânzare în Azuga, Județul Prahova
- Spații comerciale de vânzare în zona Cantacuzino, Ploiești
- Spații comerciale în zona Nord, Ploiești
- Spații comerciale de vânzare în Filipeștii de Pădure, Județul Prahova
GĂSEȘTI CASA CU CARE CHIAR TE POTRIVEȘTI
GĂSEȘTI CASA CU CARE CHIAR TE POTRIVEȘTI
SERVICIILE NOASTRE
SERVICIILE NOASTRE
CONTACT
-
Sediul central - Timișoara Bulevardul Victor Babeș nr. 2, 300230, Timișoara, România Tel: +40.374.40.44.98 / Fax: +40.256.401.179 Email: suport@imobiliare.ro Luni - Vineri 08:00 - 20:00 Punct de lucru - București: Iride Business Park, Bld. Dimitrie Pompeiu 9-9A, Clădirea B2B, 020335, Sector 2, București, România
CONTACT
-
Sediul central - Timișoara Bulevardul Victor Babeș nr. 2, 300230, Timișoara, România Tel: +40.374.40.44.98 / Fax: +40.256.401.179 Email: suport@imobiliare.ro Luni - Vineri 08:00 - 20:00 Punct de lucru - București: Iride Business Park, Bld. Dimitrie Pompeiu 9-9A, Clădirea B2B, 020335, Sector 2, București, România
Creează alertă
Salvează căutarea ca să primești pe email ultimele anunțuri publicate
Spații comerciale de vânzare în Bușteni, Județul Prahova