1

Spatiu comercial zona semi-centrala cu chirias

365.000 €

Central, Cluj-Napoca

Sup. utilă / mp. utili:
137 mp
Tip prop.:
Bloc de apartamente
An constr.:
1960 (Există)
  • • Locație aproximativă

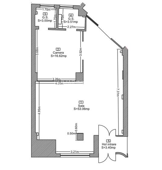
Descriere spațiu comercial

Spațiu comercial de vânzare – cu chiriaș, vitrină la stradă, zonă bine poziționată EMMAR Imobiliare vă propune spre vânzare un spațiu comercial situat într-o zonă bine poziționată, cu vad rezonabil și vizibilitate stradală. Detalii spațiu: • Suprafață: 137 mp • Vitrină generoasă la stradă • Spațiul este închiriat la un preț bun – ideal pentru investiție • Potrivit pentru diverse activități comerciale Avantaje locație: • Zonă locuită, cu școli, farmacii și piață în apropiere • Acces facil și posibilitate de parcare O oportunitate de investiție stabilă, cu chiriaș existent și randament atractiv.
Citește mai mult Citește mai puțin

Detalii spațiu comercial

ID anunț: XCG614014 Copiat! 259743647 Copiat!
Actualizat în: 23 Decembrie 2025
Suprafață utilă: 137 mp
Regim înălțime: P
Stadiu construcție: Există

Utilități

Destinație
Comercial
Utilități
Curent Apă Canalizare Gaze
Comision
standard

Disponibilitate proprietate:

Imediat

Puncte de interes

Mijloace transport
bus-station
Statia Somesul, Liniile: 8,24,30,46B,47, 4,6,7
Stații autobuz aprox. 123 m
bus-station
Biserica Sf. Petru
Stații autobuz aprox. 132 m
tram-station
Libertatea Vest
Stații tramvai aprox. 1311 m
train-station
Gara Noua / "Gara de scurt parcurs"
Stații tren aprox. 1507 m
Școală
kindergarten
Grăd.Bambi str.2
Gradinițe aprox. 101 m
school
Colegiul Tehnic Anghel Saligny
Școli aprox. 186 m
university
UT Facultatea de Instalatii
Universități aprox. 273 m
kindergarten
Grăd.Mămăruța
Gradinițe aprox. 340 m
Recreere
supermarket
Lidl
Supermarket aprox. 246 m
park
Parc
Parcuri aprox. 334 m
sports-ground
Teren sportiv
Terenuri sport aprox. 363 m
public-square
Piata 1848
Piețe publice aprox. 808 m

Proprietăți recomandate

Detalii de contact

EMMAR IMOBILIARE

Deac Marian Ionut Agent

EMMAR IMOBILIARE
PRO

Abonează-te la newsletter să fii primul care primește cele mai noi recomandări de proprietăți și sfaturi de la experți.

CONTACT

Creează alertă

Salvează căutarea ca să primești pe email ultimele anunțuri publicate

Spații comerciale cu o cameră de vânzare în zona Central, Cluj-Napoca