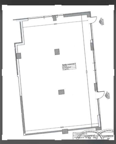
Rower Estate va propune spre Vanzare Spatiu Comercial situat in cartierul Manastul zona Calea Floresti. Suprafata utila a spatiului fiind de 147.5 mp . Acces facil, aproape de mijloacele de transport in comun.
Spațiul se preda la stadiul semifinisat, oferind flexibilitate maximă pentru amenajare în funcție de specificul activității (retail, showroom, birouri, servicii, clinică etc.).
Caracteristici principale:
Acces facil din 2 intrări
Înălțime liberă: 3,35 m (+15 cm șapă)
Fațadă modernă, vizibilitate bună
Clădire nouă
Dotări și finisaje:
Tâmplărie Schüco
Geamuri termoizolante tripan
Ușă de intrare securizată
Pereți din zidărie tencuiți
Tavan din beton aparent (fără tencuială)
Pardoseală din placă de beton
Branșamente utilități disponibile (energie electrică, apă potabilă, canalizare, instalație termică)
Contorizare individuală apă și energie termică
Instalații trase la limita proprietății
Sistem de detecție incendiu conform proiect
Centrală termică comună a blocului
Modalitati de plata: Cash sau Credit Imobiliar
ID Intern : ROW4340
Sediul central - Timișoara
Bulevardul Victor Babeș nr. 2, 300230, Timișoara, România
Tel: +40.374.40.44.98 / Fax: +40.256.401.179
Email: suport@imobiliare.ro
Luni - Vineri 08:00 - 20:00
Punct de lucru - București: Iride Business Park, Bld. Dimitrie
Pompeiu 9-9A, Clădirea B2B,
020335, Sector 2, București, România
CONTACT
Sediul central - Timișoara
Bulevardul Victor Babeș nr. 2, 300230, Timișoara, România
Tel: +40.374.40.44.98 / Fax: +40.256.401.179
Email: suport@imobiliare.ro
Luni - Vineri 08:00 - 20:00
Punct de lucru - București: Iride Business Park, Bld. Dimitrie
Pompeiu 9-9A, Clădirea B2B,
020335, Sector 2, București, România
Sună acum și cere detalii sau programează o vizionare.
Cere detalii prin email
*
*
*
*
Stații autobuz
Stații tramvai
Școli
Gradinițe
Universități
Supermarket
Mall
Parcări
Terenuri sport
Parcuri
Farmacie
Spital
Restaurant
Cafenea
Pub
Bar
Bancă
Taberei
aprox.
19 m
Piata Flora
aprox.
27 m
Statia PECO, Liniile:9,24,29,29B,52
aprox.
42 m
Statia PECO, liniile: 9,24,29,29B,52
aprox.
42 m
Ciobanului
aprox.
350 m
Statia Gr. Alexandrescu -intors Linia 1, 102, 25,7
aprox.
423 m
Ion Mester
aprox.
433 m
Stația "Pritax"
aprox.
450 m
Statia Calea Floresti, Liniile: 9,24,29,29B,52
aprox.
451 m
Statia Minerva, Liniile: 43,43b, 1,6,25, 101,102
aprox.
528 m
Statia Minerva II -intors Linia 1, 102, 6
aprox.
537 m
Peana
aprox.
545 m
Statia MInerva I -dus Linia 1, 102
aprox.
551 m
Minerva
aprox.
559 m
Statia Minerva, Liniile: 43,43b,1,6,25,101,102
aprox.
560 m
Calvaria
aprox.
472 m
Statia Gr Alexandrescu1TRV, 102
aprox.
478 m
Statia Gr. Alexandrescu, Linia 6
aprox.
495 m
Grigore Alexandrescu
aprox.
496 m
Minerva
aprox.
540 m
Ravasului
aprox.
547 m
Parang
aprox.
554 m
Statia Plopilor 2 TRV, Linia 102
aprox.
819 m
Plopilor Nord
aprox.
819 m
Plopilor Sud
aprox.
832 m
Clabucet
aprox.
854 m
Clabucet
aprox.
957 m
Statia Sala Sporturilor 2TRV, Linia 102
aprox.
1543 m
Sala Sporturilor
aprox.
1611 m
Uzinei Electrice
aprox.
1617 m
Școala Iuliu Hațieganu
aprox.
180 m
Scoala Iuliu Hatieganu
aprox.
192 m
Scoala Generala Nr.17, Ion Creangă
aprox.
396 m
Scoala Ion Creanga
aprox.
401 m
Scoala Octavian Goga
aprox.
442 m
Școala Generală Nr. 29 / "Octavian Goga"
aprox.
457 m
Scoala Generala Eugen Pora
aprox.
759 m
Liceul Teoretic Eugen Pora
aprox.
775 m
Liceul Teologic Adventist Maranatha
aprox.
888 m
Scoala Constantin Brancoveanu
aprox.
925 m
Scoala Generala Nr. 3
aprox.
934 m
Școala Liviu Rebreanu / Liceul Liviu Rebreanu
aprox.
1004 m
Scoala Liviu Rebreanu
aprox.
1004 m
Colegiul Tehnic Edmond Nicolau
aprox.
1078 m
Liceul Teologic Adventist
aprox.
1332 m
Grăd.Căsuța poveștilor2 / Grigore Alexandrescu 21
aprox.
302 m
Grădinița "Albinuța"
aprox.
325 m
Gradinita Albinuta
aprox.
325 m
Grăd.Dumbrava minunată
aprox.
438 m
Grăd.Albinuța
aprox.
440 m
Gradinita Licurici
aprox.
504 m
Gradinita Dumbrava Minunata
aprox.
618 m
Grăd.Academia piticilor
aprox.
704 m
Gradinita Licurici str. 1
aprox.
774 m
Gradinita cu orar prelungit nr. 72
aprox.
793 m
Grăd.Rază de soare str. 2
aprox.
896 m
Grăd.Buburuza
aprox.
1036 m
Gradinita Buburuza
aprox.
1042 m
Gradinita Speciala
aprox.
1043 m
Grăd.Mica Sirenă1
aprox.
1045 m
Institutul de cercetari in chimie Raluca Ripan
aprox.
1054 m
UBB Educatie Fizica si Sport
aprox.
1168 m
Facultatea de Educatie Fizica si Sport
aprox.
1172 m
Platforma De Biotehnologie Bazata Pe Cunoastere
aprox.
1449 m
USAMV Cluj-Napoca
aprox.
1522 m
Universitatea de Stiinte Agricole si Medicina Veterinara
aprox.
1545 m
Universitatea de Stiinte Agricole si Medicina Veterinara
aprox.
1551 m
Facultatea de Zootehnie si Biotehnologii
aprox.
1561 m
Universitatea "Sapientia"
aprox.
1976 m
Profi
aprox.
82 m
Complex Comercial Flora
aprox.
92 m
Carrefour Market
aprox.
156 m
Penny Market
aprox.
157 m
Profi City
aprox.
514 m
Profi
aprox.
603 m
Carrefour Market
aprox.
812 m
Winmarkt
aprox.
822 m
Magazin Profi Grigorescu
aprox.
841 m
Profi
aprox.
841 m
Cora
aprox.
865 m
Profi
aprox.
881 m
NONstop
aprox.
979 m
Kaufland
aprox.
1003 m
Complex Nora
aprox.
1097 m
Complex comercial Polus
aprox.
1668 m
Parcare Billa
aprox.
65 m
Parcare
aprox.
78 m
Parcare
aprox.
165 m
Parcare privata cu plata
aprox.
209 m
Parcare bloc B2
aprox.
252 m
Parcare
aprox.
307 m
Parcare
aprox.
408 m
Parcare
aprox.
499 m
Parcare
aprox.
501 m
Parcare
aprox.
519 m
Parcare
aprox.
520 m
Parcare
aprox.
561 m
Parcare
aprox.
594 m
Parcare
aprox.
607 m
Parcare
aprox.
612 m
Teren sportiv
aprox.
176 m
Teren sportiv
aprox.
200 m
Teren sportiv
aprox.
305 m
Teren sportiv
aprox.
365 m
Teren sportiv
aprox.
403 m
Teren sportiv
aprox.
427 m
Teren sportiv
aprox.
459 m
Teren sportiv
aprox.
474 m
Teren sportiv
aprox.
477 m
Teren sportiv
aprox.
477 m
Teren sportiv
aprox.
481 m
Teren sportiv
aprox.
486 m
Teren sportiv
aprox.
496 m
Teren sportiv
aprox.
499 m
Teren sportiv
aprox.
505 m
Parc
aprox.
185 m
Parc
aprox.
190 m
Parc
aprox.
334 m
Parc
aprox.
359 m
Parc
aprox.
363 m
Parc
aprox.
411 m
Parc
aprox.
474 m
Parc
aprox.
492 m
Parcul Primaverii, Manastur
aprox.
504 m
Parc
aprox.
508 m
Parcul Primaverii
aprox.
517 m
Parc
aprox.
560 m
Parc
aprox.
583 m
Parcul Rozelor
aprox.
623 m
Parc
aprox.
640 m
Cynara
aprox.
58 m
Donna
aprox.
95 m
Galenus 2
aprox.
419 m
Catena
aprox.
445 m
Farmacia Europa
aprox.
600 m
Help Net
aprox.
615 m
Farmacia Richter
aprox.
618 m
Farmacia Viva
aprox.
618 m
Cariatida Drogherie
aprox.
702 m
Viscum
aprox.
844 m
Ropharma
aprox.
900 m
Farmacia Salvie
aprox.
957 m
Viva
aprox.
978 m
Farmacia Herba
aprox.
1038 m
Farmacia Grigorescu
aprox.
1326 m
Cabinet medical universitar
aprox.
721 m
Clădirea Spitalului de Urgență nefinalizata
aprox.
923 m
Spitalul Clinic de Urgenta pentru copii Cluj-Napoca Neonatologie-prematuri
aprox.
1012 m
Farmacie
aprox.
1107 m
Policlinica Grigorescu
aprox.
1270 m
Smile Dental Clinic
aprox.
1943 m
Medical Cor
aprox.
1955 m
Cabinetul Medical Zormed
aprox.
1981 m
Restaurant Ianis
aprox.
116 m
Restaurant Sophia
aprox.
157 m
Gradina de Vara Pedas
aprox.
162 m
Restaurant & Pizza Daniel Berar
aprox.
313 m
Restaurant Boema
aprox.
342 m
Boema
aprox.
346 m
Restaurant Boierul
aprox.
472 m
Restaurant Casa Piratilor
aprox.
495 m
Casa Piratilor (en)
aprox.
502 m
EX Cafe
aprox.
561 m
McDonald's
aprox.
584 m
Nobori Plopilor
aprox.
594 m
Pizza X
aprox.
598 m
Restaurant/disco "Sun"
aprox.
629 m
Restaurant Disco SUN
aprox.
637 m
Bistro
aprox.
514 m
PLAN Cafe
aprox.
1174 m
bike44
aprox.
1341 m
Royal cafe
aprox.
1366 m
Meron Platinia
aprox.
1686 m
Origine
aprox.
1992 m
Seven
aprox.
843 m
Infinity Games
aprox.
1014 m
Old Pub
aprox.
1236 m
Uni Sports Bar
aprox.
1293 m
Infinity Games
aprox.
1392 m
Marul de Aur
aprox.
985 m
Cafe Bar
aprox.
1110 m
Infinity Games
aprox.
1337 m
Admiral
aprox.
1367 m
Cotton Club
aprox.
1601 m
Geo & Andi
aprox.
1610 m
Las Vegas Caffe
aprox.
1972 m
Banca Transilvania
aprox.
31 m
ING
aprox.
37 m
BCR
aprox.
137 m
Bancpost
aprox.
143 m
BRD
aprox.
233 m
OTP Bank
aprox.
344 m
Raiffeisen Bank
aprox.
372 m
Banca Centrala Cooperatista Creditcoop
aprox.
426 m
Banca Transilvania
aprox.
432 m
Millenium Bank
aprox.
593 m
Piraeus Bank
aprox.
593 m
CEC Bank
aprox.
596 m
OTP Bank
aprox.
598 m
BRD
aprox.
609 m
Volksbank
aprox.
610 m
Printre principalele artere care străbat această zonă a Clujului se numără, în partea de sud, strada Septimiu Mureșan (aceasta merge, pe bună parte din lungimea sa, paralel cu râul Nadăș); în centrul cartierului se află Strada Dâmbul Rotund "“ de unde îi vine, de fapt, și numele; în nord, Strada Gheorghe Sion și Strada Viile Dâmbul Rotund marchează, practic, limita nordică a cartierului. Comparativ cu alte zone ale Clujului, Dâmbul Rotund este, pe alocuri, destul de deficitar în ceea ce privește infrastructura rutieră. Deși este deservit, ca și alte zone clujene, de o serie de mijloace de transport în comun, zona de nord a cartierului ar necesita extinderea liniilor parcurse de acestea. Dacă vrei să cumperi o proprietate aici, interesează-te, așadar, ce distanță ai de parcurs până la cele mai apropiate stații.
Dacă ești părinte "“ sau deocamdată doar îți dorești să devii "“, cu siguranță că, atunci când vine vorba de alegerea unei locuințe, un aspect important la care te gândești este reprezentat de oportunitățile de educație disponibile într-o zonă sau alta. În această privință, poți să stai liniștit: în Dâmbul Rotund se găsesc, ca și în celelalte subdiviziuni ale orașului de pe Someș, mai multe unități de învățământ. O școală cu tradiție din cartier este Școala Gimnazială "Emil Isac", situată chiar în apropiere de Strada Dâmbul Rotund, din zona centrală. În ceea ce privește oportunitățile de continuare a studiilor după liceu, de menționat este Școala de Agenți de Poliție "Septimiu Mureșan" "“ localizată în zona de sud a cartierului, dar dincolo de cursul râului Nadăș.
Ca și în Gruia, în Dâmbul Rotund nu există, momentan, un mall și nici un hipermarket (lucru cât se poate de firesc, de altfel, ținând cont de faptul că este vorba de un cartier mărginaș și cu o densitate a populației relativ redusă). Locuitorii acestei zone nu sunt, însă, lipsiți de alternative când vine vorba de cumpărături "“ astfel, pentru nevoile de zi cu zi există o serie de magazine de dimensiuni mai reduse, dintre care unele afiliate unor rețele internaționale. Chiar dacă nu strict între granițele cartierului, opțiuni există și pentru aceia care sunt pasionați de shopping. Fără prea mare efort, aceștia pot ajunge rapid în zona Centrală a orașului, unde pot vizita numeroasele magazine existente în materie de fashion (și nu numai).
Dacă ai "“ sau intenționezi să-ți achiziționezi "“ o mașină, parcarea nu ar trebui să reprezinte, în mod normal, o problemă, dată fiind densitatea redusă a populației din acest cartier. Dacă dorești, totuși, să închiriezi un spațiu al tău de la autoritățile locale, te poți interesa la sediul central al Primăriei Clujului (amplasat pe Strada Moților, nr. 3).
Spre deosebire de locuitorii altor zone ale Clujului, cei din Dâmbul Rotund nu au la dispoziție un parc în toată puterea cuvântului, cartierul fiind, în general, deficitar și la capitolul locuri de joacă pentru copii. Totuși, având în vedere multitudinea zonelor verzi, poți spera să găsești câteva trasee bune de plimbare. Dacă ești pasionat de sport, iar mersul pe jos și joggingul nu sunt suficiente pentru tine, în Dâmbul Rotund găsești o oportunitate importantă, cunoscută localnicilor sub numele "Fabrica de Sport". Amplasat în sudul cartierului, în fosta zonă industrială, acesta este considerat a fi unul dintre cele mai moderne complexuri sportive din oraș, fiind deschis atât amatorilor de fotbal, cât și celor de fitness, aerobic, kickboxing etc.
Dacă te gândești să te muți în Dâmbul Rotund, poate că vei fi dezamăgit să afli că aici nu există niciun spital de stat. Nu e cazul, însă, să te descurajezi: având în vedere proximitatea față de Centru, pentru serviciile medicale de urgență poți ajunge rapid la multitudinea de spitale care se găsesc în "inima" orașului: Spitalul Clinic Județean de Urgență Cluj-Napoca, Spitalul Clinic Municipal Cluj-Napoca, Spitalul Universitar C.F. Cluj-Napoca etc. Nu sunt de neglijat, desigur, nici cele câteva cabinete medicale particulare ce pot fi găsite în cartier "“ pe acest segment vei găsi atât câteva opțiuni în materie de medicină de familie, cât și în ceea ce privește anumite servicii medicale de specialitate (stomatologie, spre exemplu).
În afară de câteva fast food-uri de cartier, locuitorii cartierului Dâmbul Rotund beneficiază, în apropierea casei, și de câteva oportunități demne de luat în seamă la capitolul restaurante. De menționat este restaurantul "Stejarul", amplasat pe Strada Corneliu Coposu, nr. 95, ce dispune de terasă și oferă și servicii de livrare la domiciliu, dar și restaurantul "Fabrica", de pe Strada Tudor Vladimirescu, nr. 22, unde pot fi organizate și evenimente. Pentru a beneficia de o gamă mai largă de opțiuni pentru ieșirile în oraș cu prietenii, locuitorii acestui cartier au la dispoziție, desigur, și zona Centrală.
Dacă ai nevoie să efectuezi o operațiune bancară, trebuie să știi că strict între granițele acestui cartier nu prea ai opțiuni la acest capitol. Cu toate acestea, imediat sub limita sudică a cartierului, la granița dintre Gruia și zona Centrală (reprezentată de Strada Horea), se găsesc trei sucursale bancare: una din rețeaua BCR, o Banca Transilvania, alături de un sediu Raiffeisen Bank. Consultă harta și află unde sunt localizate și alte bănci sau ATM-uri în cartierul Dâmbul Rotund:
Înainte să pleci...
Ești sigur că ai văzut și aceste proprietăți?
317.925 €
Cluj-Napoca, Gară
141,3 mp utili
Bloc de apartamente
8E
300.000 €
Cluj-Napoca, Mărăști
67 mp utili
Bloc de apartamente
4E
360.000 €
Cluj-Napoca, Grigorescu
90,02 mp utili
Clădire de birouri
2024
330.000 €
Cluj-Napoca, Bulgaria
130 mp utili
Bloc de apartamente
549.000 €
Cluj-Napoca, Mărăști
134 mp utili
Bloc de apartamente
11E
375.000 €
Cluj-Napoca, Mărăști
144 mp utili
Bloc de apartamente
10E
Creează alertă
Salvează căutarea ca să primești pe email ultimele anunțuri publicate
Spații comerciale de vânzare în zona Dâmbul Rotund, Cluj-Napoca
Cere detalii prin email
*
*
*
*
Detaliile tale de contact vor fi partajate cu Rower Estate S.r.l.