Spatiu comercial, Salon, 133mp utili, Calea Dorobantiilor

379.900 €

Mănăștur, Cluj-Napoca

Sup. utilă / mp. utili:
133 mp
Tip prop.:
Bloc de apartamente
  • • Locație aproximativă

Descriere spațiu comercial

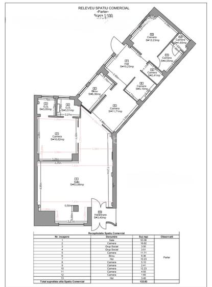
Va propuem spre vanzare un spatiu comercial in Cluj Napoca pe strada Calea Dorobantiilor, la parterul unui bloc. Spatiul are o suprafata utila de 133mp si este compartimentat in mai multe incaperi. In momentul de fata, in spatiul respectiv functioneaza un salon de bronzare. Spatiul este inchiriat pe perioada de 5 ani cu posibilitate de prelungire. Pentru mai multe detalii, va asteptam sa ne contactati ! P11920 Nr grupuri sanitare: 3 Nr incaperi: 10 Utilitati - Utilitati generale (Curent,Apa,Canalizare,Gaz) pret vanzare: 379900 moneda vanzare: EUR Disponibilitate proprietate: imediat
Citește mai mult Citește mai puțin

Detalii spațiu comercial

ID anunț: XE7D140H3 Copiat! 271633122 Copiat!
Actualizat în: 09 Martie 2026
Suprafață utilă: 133 mp
Regim înălțime: P
Structură rezistență: Beton

Utilități

Utilități
Curent Apă Canalizare Gaze
Comision
2%+TVA

Puncte de interes

Mijloace transport
bus-station
VIVO!
Stații autobuz aprox. 1129 m
bus-station
Metro Nord S
Stații autobuz aprox. 1168 m
tram-station
Clabucet
Stații tramvai aprox. 1721 m
tram-station
Clabucet
Stații tramvai aprox. 1853 m
Recreere
park
Parc
Parcuri aprox. 629 m
supermarket
Metro
Supermarket aprox. 1045 m
mall
Complex comercial Polus
Mall aprox. 1148 m
sports-ground
Teren sportiv
Terenuri sport aprox. 1349 m

Proprietăți recomandate

Detalii de contact

Bling Imobiliare

Traian Hiruta Master Broker acreditat

Bling Imobiliare

Abonează-te la newsletter să fii primul care primește cele mai noi recomandări de proprietăți și sfaturi de la experți.

CONTACT

Creează alertă

Salvează căutarea ca să primești pe email ultimele anunțuri publicate

Spații comerciale de vânzare în zona Mănăștur, Cluj-Napoca