2

Spatiu o camera în zona Kaufalnd Marasti

350.000 €

Mărăști, Cluj-Napoca

Sup. utilă / mp. utili:
82 mp
Niv.:
2
  • • Locație exactă

Descriere spațiu comercial

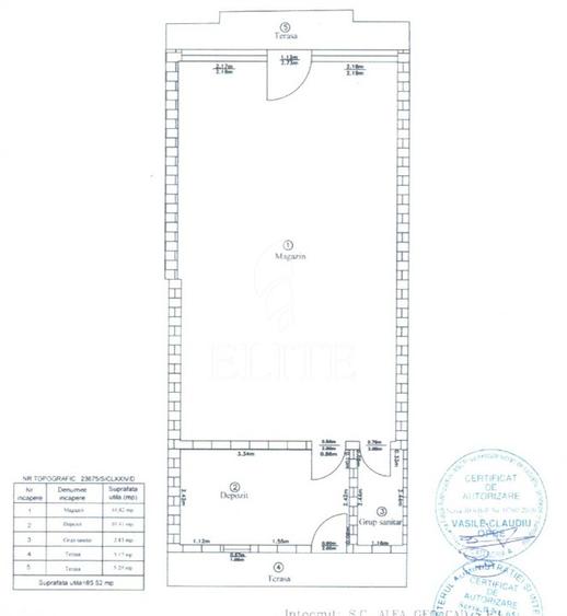
ELITE va ofera spre vanzare, in exclusivitate, spațiu comercial , situat in cartierul MARASTI, pe str. Fabricii, intr-una dintre cele mai apreciate locatii. Localizat intr-o zona cu trafic pietonal intens si constant, spatiul are o suprafata utila de 85 mp si deschidere stradala de 5.5 m. Sala de servire e open space si e in SU de 62 mp, depozitul are 10 mp, iar baia 3 mp. Exista acces secundar pentru aprovizionare marfa. Este aproape de Magazin Kaufland, scoala Ion Agarbiceanu si la 5 minute pietonale fata de Piata Marasti. Acest spațiu reprezintă o oportunitate excelentă de investiție - posibiliate de preluare chirias existent, cu contract de inchiriere ferm, într-o zonă cu cerere constantă pentru spații comerciale și potențial ridicat de apreciere în timp. Pretul este 350.000 eur+TVA. (ID:119003)
Citește mai mult Citește mai puțin

Detalii spațiu comercial

ID anunț: X50L0400G Copiat! 274523087 Copiat!
Actualizat în: 28 Ianuarie 2026
Suprafață utilă: 82 mp
Regim înălțime: P+2E

Utilități

Utilități
Gaze Curent Canalizare Apă

Puncte de interes

Mijloace transport
bus-station
Statia Piata Marasti, Liniile: 8,24,30,47, 4,6,7,25
Stații autobuz aprox. 97 m
bus-station
Statia Piata Marasti, liniile 8,24,30,46B,47, 4, 6, 7, 25
Stații autobuz aprox. 109 m
tram-station
Libertatea Vest
Stații tramvai aprox. 1661 m
train-station
Gara Noua / "Gara de scurt parcurs"
Stații tren aprox. 1994 m
Școală
university
Facultatea de Sociologie si Asistenta Sociala
Universități aprox. 321 m
university
Facultatea de Psihologie si Stiinte ale Educatiei
Universități aprox. 321 m
kindergarten
Grădinita Așchiuță str. 2
Gradinițe aprox. 405 m
school
Colegiul Național George Coșbuc
Școli aprox. 433 m
Recreere
supermarket
Carrefour Market
Supermarket aprox. 20 m
park
Piata Marasti
Parcuri aprox. 157 m
sports-ground
Teren sportiv
Terenuri sport aprox. 319 m
public-square
Piata 1848
Piețe publice aprox. 1106 m

Proprietăți similare

Spațiu comercial, de 157.77 mp, în Mărăști
362.871 €
Cluj-Napoca, Mărăști
157,77 mp utili
Bloc de apartamente
3E
Spațiu comercial, 126 mp în Mărăști
330.000 €
Cluj-Napoca, Mărăști
126 mp utili
Bloc de apartamente
6E
Birou, de 194.6 mp, în Mărăști
379.470 €
Cluj-Napoca, Mărăști
194,6 mp utili
Bloc de apartamente
6E

Detalii de contact

ELITE IMOBILIARE

EliteImobiliare

ELITE IMOBILIARE
PRO

Abonează-te la newsletter să fii primul care primește cele mai noi recomandări de proprietăți și sfaturi de la experți.

CONTACT

Creează alertă

Salvează căutarea ca să primești pe email ultimele anunțuri publicate

Spații comerciale de vânzare în zona Mărăști, Cluj-Napoca