Spațiu comercial 112mp | Str. Alexandru Cazaban | Renovat | Parcare disponibila

299.000 €

Iosia, Oradea

Sup. utilă / mp. utili:
112 mp
Tip prop.:
Spațiu stradal
  • • Comision 0%
  • • Locație exactă

Descriere spațiu comercial

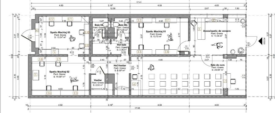
Spațiu comercial premium pe una dintre arterele principale din Oradea, cu vizibilitate excelentă și acces direct. Proprietate turnkey, ideală pentru clinică medicală, farmacie, showroom sau birouri. Specificații Suprafață utilă: 112 mp Suprafață construită: 125 mp Nivel: Parter cu acces stradal Stare: Renovat complet, finisaje moderne Parcare: Locuri de parcare în fața spațiului Compartimentare Recepție/Zonă așteptare cu vitrine generoase 4 camere spațioase 2 băi complete 2 depozite Destinații recomandate Clinică medicală | Cabinet medical | Farmacie | Laborator de analize | Salon beauty | Showroom | Birouri | Agenție de turism | Fast-food | Restaurant | Agenție specializată Locație Str. Alexandru Cazaban 15 - arteră principală cu trafic intens, zonă comercială dezvoltată, acces facil transport public și auto. Proximitate imediată: zone rezidențiale dense, Sala Antonio Alexe 100 m, Centru comercial Prima Shops- 700m, . Avantaje: Vizibilitate maximă Parcare disponibilă în fața imobilului Zonă cu business-uri consacrate Clientelă stabilă și diversă Potențial ridicat de investiție Nu colaborăm cu agenții imobiliare.
Citește mai mult Citește mai puțin

Detalii spațiu comercial

ID anunț: XV10040UU Copiat! 275057646 Copiat!
Actualizat în: 21 Februarie 2026
Suprafață utilă: 112 mp

Utilități

Comision
0%

Puncte de interes

Mijloace transport
bus-station
14
Stații autobuz aprox. 699 m
tram-station
Pod Decebal
Stații tramvai aprox. 859 m
bus-station
Bus 17
Stații autobuz aprox. 939 m
tram-station
Piata Decebal
Stații tramvai aprox. 944 m
Școală
school
Don Orione
Școli aprox. 362 m
school
GS Transilvania
Școli aprox. 688 m
kindergarten
Gradinita 45 cu program prelungit
Gradinițe aprox. 867 m
university
Universitatea Crestina Partium - Cladirea Sulyok
Universități aprox. 1293 m
Recreere
sports-ground
5x5 Fotbal SRL
Terenuri sport aprox. 234 m
park
Parc
Parcuri aprox. 251 m
supermarket
Lidl
Supermarket aprox. 313 m
cafe
Habana Cafe
Cafenea aprox. 574 m

Proprietăți similare

Spațiu industrial, 410 mp în Iosia
280.000 €
Oradea, Iosia
410 mp utili
Producție/Servicii
Spațiu comercial, 107.3 mp în Centru Civic
308.000 €
Oradea, Centru Civic
107,3 mp utili
Centru comercial
Spațiu comercial, 107.3 mp în Ultracentral
308.000 €
Oradea, Ultracentral
107,3 mp utili
Casă/Vilă
1E

Detalii de contact

Abonează-te la newsletter să fii primul care primește cele mai noi recomandări de proprietăți și sfaturi de la experți.

CONTACT

Creează alertă

Salvează căutarea ca să primești pe email ultimele anunțuri publicate

Spații comerciale de vânzare în zona Iosia, Oradea