RECO Spatiu Comercial Ultracentral, 516mp, cu locuri de parcare, acces dublu

1.100.000 €

Ultracentral, Oradea

Sup. utilă / mp. utili:
516 mp
An constr.:
2022 (Există)
  • • Locație exactă
  • • Vizionare prin apel video

Descriere spațiu comercial

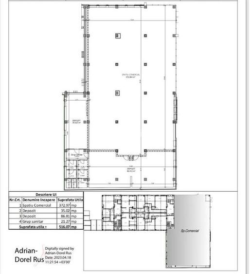
Spatiu comercial ultracentral, situat pe str Avram Iancu nr 11 in Oradea, la parterul blocului nou. Este situat la 300 m de Piata Unirii. Suprafata construita: 540 mp Suprafata utila de 516mp. Format din spatiu comercial plus 2 depozite si 2 grupuri sanitare. Exista posibilitate de parcare in fata spatiului, unde sunt disponibile locuri de parcare destinate doar spatiului comercial. Deschiderea este de 30m liniari. Dotat cu sistem de incalzire in pardoseala. Ideal pentru orice tip de activitate comerciala, fiind situat ultracentral, la doar 320m de Piata Unirii. Pret: 1.100.000 euro Tel:
Citește mai mult Citește mai puțin

Detalii spațiu comercial

ID anunț: XA5M1407T Copiat! 274757854 Copiat!
Actualizat în: 03 Februarie 2026
Stadiu construcție: Există

Puncte de interes

Mijloace transport
tram-station
Primarie
Stații tramvai aprox. 408 m
tram-station
Piata 1 Decembrie
Stații tramvai aprox. 602 m
bus-station
Statie Decebal
Stații autobuz aprox. 763 m
bus-station
Dimitrie Cantemir
Stații autobuz aprox. 1656 m
Școală
school
Scoala Generala
Școli aprox. 470 m
school
Partenie Cosma
Școli aprox. 558 m
university
Universitatea Crestina Partium - Cladirea Sulyok
Universități aprox. 658 m
university
Universitatea Oradea
Universități aprox. 1073 m
Recreere
cafe
Tatoo Cafe
Cafenea aprox. 80 m
park
Parcul Nicolae Balcescu
Parcuri aprox. 314 m
sports-ground
Teren sportiv
Terenuri sport aprox. 678 m
supermarket
Supermarkt
Supermarket aprox. 688 m

Proprietăți similare

Spațiu industrial, în Exterior Vest
1.190.000 €
Oradea, Exterior Vest
Logistică
Spațiu comercial, 738 mp în Iosia
1.050.000 €
Oradea, Iosia
738 mp utili
Spațiu stradal
1E
Spațiu comercial, 953 mp în Central
1.200.000 €
Oradea, Central
953 mp utili
Bloc de apartamente
2000

Detalii de contact

RECO Imobiliare

Darius Gal Broker Imobiliar

RECO Imobiliare
PRO

Abonează-te la newsletter să fii primul care primește cele mai noi recomandări de proprietăți și sfaturi de la experți.

CONTACT

Creează alertă

Salvează căutarea ca să primești pe email ultimele anunțuri publicate

Spații comerciale cu 3 camere de vânzare în zona Ultracentral, Oradea