Restaurant + Locuinta | D+P+1+M Zona Crangasi

600.000 €

Crângași, București

Sup. utilă / mp. utili:
310 mp
Tip prop.:
Casă/Vilă
Niv.:
1
  • • Locație aproximativă

Descriere spațiu comercial

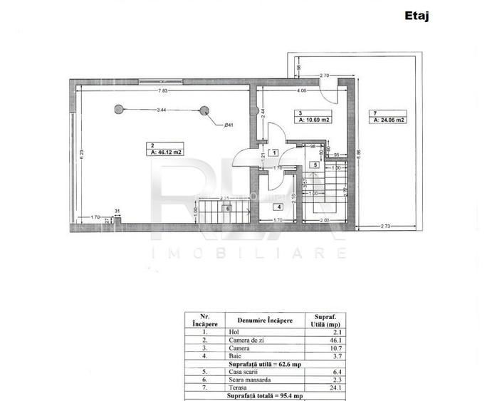
R.E.A. IMOBILIARE va ofera spre vanzare o vila S+P+1+M, care a functionat drept spatiu comercial la subsol si parter , iar la etaj si mansarda, a fost locuinta. Vila este situata in zona Crangasi si detine o suprafata totala de 380 m.p, din care suprfata utila este 310 m.p. si balcon+terasa si casa scarii de 70 m.p. Supafata curte libera de 167 m.p. Confortul termic este realizat cu ajutorul centralei proprii pe gaz. Informatiile tehnice au caracter orientativ, acestea fiind preluate de la propriertari. Pentru mai multe detalii si vizionari, ne puteti contacta telefonic, specificand codul de identificare P3832 Nr grupuri sanitare: 4 Suprafata construita: 400 mp Nr incaperi: 8 Utilitati - Sistem incalzire (Centrala proprie,Calorifere); Climatizare (Aer conditionat); Utilitati generale (Curent,Apa,Canalizare,Gaz) Finisaje - Izolatii termice (Exterior,Bloc izolat termic); Podele (Gresie,Parchet); Stare interior (Buna); Iluminat (Lampi,Spoturi) Dotari - Contorizare (Apometre,Contor caldura,Contor gaz); Dotari imobil (Curte) pret vanzare: 600000 moneda vanzare: EUR Disponibilitate proprietate: imediat
Citește mai mult Citește mai puțin

Detalii spațiu comercial

ID anunț: XDKS14042 Copiat! 211224656 Copiat!
Actualizat în: 13 Februarie 2026
Suprafață utilă: 310 mp
Regim înălțime: D+P+1E+M
Structură rezistență: Cărămidă

Utilități

Contorizare
Apometre Contor căldură Contor gaz
Mobilat
Mobilat
Facilități imobil
Curte
Utilități
Curent Apă Canalizare Gaze
Sistem încălzire
Centrală proprie Calorifere
Climatizare
Aer condiționat
Podele
Parchet Gresie
Stare interior
Stare bună
Izolații termice
Exterior Bloc izolat termic
Comision
standard

Vecinătăți:

Metrou Crangasi, Piata Crangasi, Sectia 20, Lacul Morii

Puncte de interes

Mijloace transport
bus-station
Statia Semanatoarea Poarta 2 linia: 601, N110, N120
Stații autobuz aprox. 215 m
tram-station
statia Pod Ciurel linia 41
Stații tramvai aprox. 346 m
metro-station
Metrorex. Stația Petrache Poenaru(Semănătoarea) (M1)(1979)
Stații metrou aprox. 347 m
trolleybus-station
Statia RATB Lujerului, linia 61, 62
Stații troleibuz aprox. 1597 m
Școală
school
Scoala Nr. 167
Școli aprox. 465 m
school
Scoala Generala 167
Școli aprox. 465 m
university
FIMM si IMST, corpurile CB, CD, CF si CK (en)
Universități aprox. 915 m
kindergarten
Gradinita nr 40
Gradinițe aprox. 1199 m
Recreere
park
Strandul Crangasi
Parcuri aprox. 73 m
sports-ground
Teren fotbal
Terenuri sport aprox. 274 m
supermarket
Grant Shopping Center
Supermarket aprox. 401 m
hypermarket
Intrarea in caminele C si D din grozavesti
Hipermarket aprox. 1782 m

Proprietăți recomandate

Detalii de contact

R.E.A. Imobiliare

George Mihai Niculcea Broker

4.88(3 review-uri)

R.E.A. Imobiliare
PRO

Abonează-te la newsletter să fii primul care primește cele mai noi recomandări de proprietăți și sfaturi de la experți.

CONTACT

Creează alertă

Salvează căutarea ca să primești pe email ultimele anunțuri publicate

Spații comerciale de vânzare în zona Crângași, Sector 6