2

Spatiu Comercial 200 mp –Complex PREMIUM | front stradal Bd. Pipera

641.300 €

Voluntari, Județul Ilfov

Sup. utilă / mp. utili:
200 mp
Tip prop.:
Bloc de apartamente
Niv.:
5
  • • Locație aproximativă

Descriere spațiu comercial

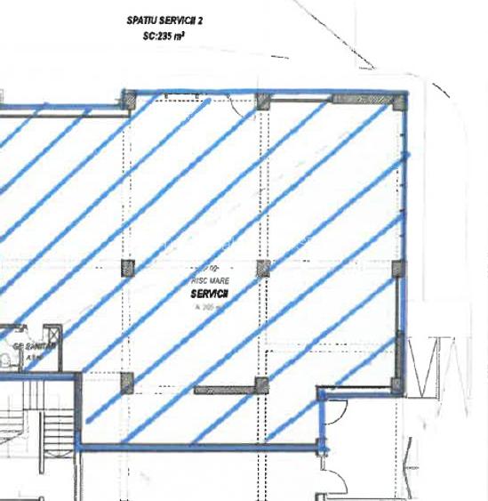
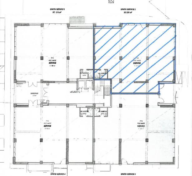
Va propunem spre achizitie un spatiu comercial premium, situat la parterul unui complex nou, cu vizibilitate directa la Bd. Pipera (zona Iancu Nicolae). Locatia beneficiaza de trafic intens si expunere maxima. Specificatii principale: - Suprafata: ~200 mp, configuratie open space (compartimentare flexibila). - Acces: 2 intrari independente. - Utilitati: Conectat la toate utilitatile (apa, canalizare, curent, gaz). - Stadiu: Cladire noua, predare estimata primavara-vara 2026. Avantaje si utilizare: - Pretabil: Clinica, showroom, magazin, salon, after-school sau bistro. - Zona: Bazin larg de clienti din ansamblurile rezidentiale de lux adiacente. - Parcare: Locuri disponibile in cadrul complexului. O investitie strategica intr-un hub comercial in plina dezvoltare, cu acces rapid catre DN1 si Baneasa. Comision cumparator: Standard. Suna acum pentru detalii si vizionare. Pentru mai multe detalii sau pentru a-ti prezenta spatiu te asteptam sa ne contactezi. Nr grupuri sanitare: 1 Suprafata construita: 235 mp Nr incaperi: 1 Utilitati - Sistem incalzire (Incalzire pardoseala); Utilitati generale (Curent,Apa,Canalizare,Gaz,CATV) Finisaje - Izolatii termice (Exterior); Podele (Gresie,Parchet); Ferestre cu geam termopan (Aluminiu) Dotari - Contorizare (Apometre,Contor caldura); Dotari imobil (Spatii agrement) pret vanzare: 530000 moneda vanzare: EUR Disponibilitate proprietate: Iunie 2026
Citește mai mult Citește mai puțin

Detalii spațiu comercial

ID anunț: XCGD14006 Copiat! 274417763 Copiat!
Actualizat în: 23 Ianuarie 2026
Tip tranzacție: De vânzare prin agent
Suprafață utilă: 200 mp
Regim înălțime: P+5E
Modalitate de plată: Cash sau Credit

Utilități

Contorizare
Apometre Contor căldură
Mobilat
Nemobilat
Facilități imobil
Spații agrement
Utilități
Curent Apă Canalizare Gaze CATV
Sistem încălzire
Încălzire pardoseală
Podele
Parchet Gresie
Izolații termice
Exterior
Ferestre cu geam termopan
Aluminiu
Comision
standard

Puncte de interes

Mijloace transport
bus-station
Pipera Drumul Bisericii
Stații autobuz aprox. 1378 m
bus-station
Jolie Ville Baneasa
Stații autobuz aprox. 1410 m
Școală
school
Mark Twain
Școli aprox. 272 m
school
British School of Bucharest
Școli aprox. 353 m
kindergarten
Echilibria 1
Gradinițe aprox. 802 m
kindergarten
Kindergarden
Gradinițe aprox. 826 m
Recreere
cafe
Doncafe Brasserie
Cafenea aprox. 204 m
supermarket
Billa
Supermarket aprox. 556 m
park
Loc de joaca
Parcuri aprox. 1003 m
sports-ground
Teren sportiv
Terenuri sport aprox. 1780 m

Istoricul prețurilor

Acces la informații premium după autentificare
Login Gratuit

Proprietăți similare

Spațiu comercial, 730 mp în Pantelimon
544.500 €
Județul Ilfov, Pantelimon
730 mp utili
Casă/Vilă
1E
Spațiu industrial, 593 mp în Afumați
504.000 €
Județul Ilfov, Afumați
593 mp utili
Depozitare
Spațiu industrial, în Cernica
520.300 €
Județul Ilfov, Cernica
Logistică
2024

Detalii de contact

Abonează-te la newsletter să fii primul care primește cele mai noi recomandări de proprietăți și sfaturi de la experți.

CONTACT

Creează alertă

Salvează căutarea ca să primești pe email ultimele anunțuri publicate

Spații comerciale de vânzare în Voluntari, Județul Ilfov