1

Oportunitate de pret | Depozitare 550mp | 2 unitati pret promotional

387.000 €

Chitila, Județul Ilfov

Sup. prop / mp. prop.:
550 mp
Tip prop.:
Depozitare
  • • Comision 0%
  • • Exclusivitate
  • • Locație exactă

Descriere spațiu comercial

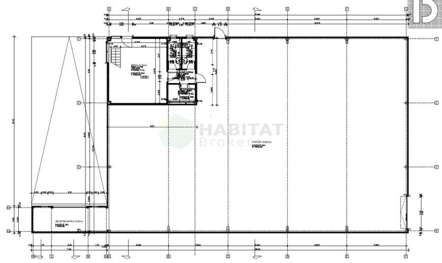
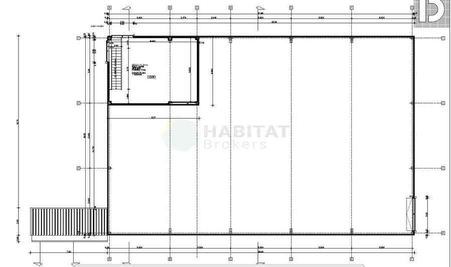
Dragomirești Logistic Park este un proiect modern de spații industriale și logistice, situat în Dragomirești Vale, județul Ilfov, cu acces facil către București și principalele artere de transport. Proiectul este dezvoltat în mai multe faze, având ca obiectiv crearea unui hub logistic eficient și flexibil pentru companii din diverse domenii. Faza 1, deja finalizată și integral ocupată, include o suprafață totală de 18.000 mp de spații de depozitare moderne, proiectate conform celor mai recente standarde industriale. În faza actuală a proiectului, sunt în construcție 8 clădiri logistice individuale, fiecare cu o suprafață utilă de 550 mp, o înălțime de 8 metri, spațiu de birouri de 50 mp și 20 de locuri de parcare dedicate pentru fiecare unitate. Dragomirești Logistic Park oferă soluții adaptabile pentru activități de depozitare, distribuție sau producție ușoară, într-un mediu modern și bine conectat la infrastructura de transport regională.
Citește mai mult Citește mai puțin
20 Parcări Electricitate Apă

Detalii spațiu comercial

ID anunț: X4CJ1402T Copiat! 271682941 Copiat!
Actualizat în: 23 Decembrie 2025
Suprafață utilă: 550 mp
Etaj: Parter
Stadiu construcție: Există
An construcție: 2026 (Există)
Suprafață teren: 1560
Regim înălțime: P
Înălțime spațiu (m): 8
Clasă birouri: B

Utilități

Destinație
Rezidențial
Utilități
Canalizare
Comision
0%

Disponibilitate proprietate:

Imediat

Puncte de interes

Mijloace transport
train-station
Gara Chitila
Stații tren aprox. 1752 m
bus-station
Chitila
Stații autobuz aprox. 1761 m
bus-station
Gara Chitila
Stații autobuz aprox. 1763 m
Recreere
restaurant
Un tramvai numit dorinta
Restaurant aprox. 1126 m
supermarket
Mega Image
Supermarket aprox. 1849 m

Proprietăți recomandate

Detalii de contact

HABITAT Brokers

HB Office Assistant

HABITAT Brokers
PRO

Abonează-te la newsletter să fii primul care primește cele mai noi recomandări de proprietăți și sfaturi de la experți.

CONTACT

Creează alertă

Salvează căutarea ca să primești pe email ultimele anunțuri publicate

Spații comerciale cu 3 camere de vânzare în Chitila, Județul Ilfov