1

De vanzare/chirie spatiu comercial si de productie zona Gheorgheni

750.000 €

Gheorgheni, Cluj-Napoca

Sup. prop / mp. prop.:
600 mp
Tip prop.:
Logistică
  • • Locație aproximativă

Descriere spațiu comercial

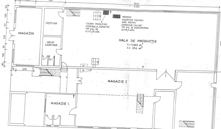
Impakt Imobiliare vă propune spre închiriere / vânzare o hală industrială/comercială cu suprafața de 600 mp, ideală pentru desfășurarea unei game variate de activități comerciale sau de producție. Spațiul se remarcă prin suprafața generoasă, compartimentarea eficientă și versatilitatea care permite adaptarea rapidă în funcție de nevoile chiriașului sau investitorului. Hala este pretabilă pentru producție ușoară, depozitare, logistică, showroom, service, activități comerciale sau mixte. Imobilul beneficiază de: - acces facil pentru autovehicule și aprovizionare - înălțime optimă pentru activități industriale - utilități disponibile (apă, curent, canalizare – adaptabile în funcție de activitate) - posibilitate de amenajare personalizată - curte / spațiu exterior pentru manevră sau parcare (dacă se aplică) Datorită poziționării și caracteristicilor sale, proprietatea reprezintă o oportunitate excelentă atât pentru antreprenori, cât și pentru investitori, oferind flexibilitate și potențial de dezvoltare. Pentru mai multe detalii sau programarea unei vizionări, echipa Impakt Imobiliare vă stă la dispoziție.
Citește mai mult Citește mai puțin
3 Parcări Electricitate Apă Gaz

Detalii spațiu comercial

ID anunț: X8I71402T Copiat! 274814267 Copiat!
Actualizat în: 06 Mai 2026
Tip tranzacție: De vânzare prin agent
Suprafață utilă: 600 mp
Etaj: Parter
Stadiu construcție: Există
An construcție: 1991 (Există)
Suprafață teren: 642
Regim înălțime: P
Modalitate de plată: Cash sau Credit

Utilități

Destinație
Comercial
Utilități
Canalizare
Comision
standard

Disponibilitate proprietate:

Imediat

Puncte de interes

Mijloace transport
bus-station
Stație Alverna, liniile 32, 32B (ultima stație)
Stații autobuz aprox. 224 m
bus-station
Alverna Vest
Stații autobuz aprox. 239 m
bus-station
Alverna Est
Stații autobuz aprox. 252 m
bus-station
Statia Becas, Linia 21
Stații autobuz aprox. 409 m
Școală
kindergarten
Gradinita Poenita
Gradinițe aprox. 98 m
kindergarten
Grădinita "Poenita"
Gradinițe aprox. 105 m
university
Casa Agronomului (en)
Universități aprox. 192 m
school
Scoala Generala Constantin Brancusi
Școli aprox. 465 m
Recreere
park
Parc
Parcuri aprox. 268 m
supermarket
Carrefour
Supermarket aprox. 348 m
sports-ground
Teren sportiv
Terenuri sport aprox. 429 m
pub
Ancuta
Pub aprox. 444 m

Istoricul prețurilor

Acces la informații premium după autentificare
Login Gratuit

Proprietăți similare

Spațiu comercial, de 311.00 mp, în Semicentral
677.600 €
Cluj-Napoca, Semicentral
311 mp utili
Casă/Vilă
2E
Spațiu comercial, de 320.00 mp, în Dâmbul Rotund
736.000 €
Cluj-Napoca, Dâmbul Rotund
320 mp utili
Bloc de apartamente
6E
Birou, de 600 mp, în Iris
725.000 €
Cluj-Napoca, Iris
600 mp utili
Casă/Vilă
2E

Detalii de contact

Impakt Imobiliare

Iulian Sandu Consilier Imobiliar

Impakt Imobiliare
PRO

Abonează-te la newsletter să fii primul care primește cele mai noi recomandări de proprietăți și sfaturi de la experți.

CONTACT

Creează alertă

Salvează căutarea ca să primești pe email ultimele anunțuri publicate

Spații comerciale de vânzare în zona Gheorgheni, Cluj-Napoca