Teren parcelabil, intravilan, 6400mp cu casa renovata - ideal investitor

320.000 €
50 € / mp

Joița, Județul Giurgiu

Sup. teren:
6.400 mp
Tip:
Construcții
  • • Comision 0%
  • • Locație exactă

Descriere teren

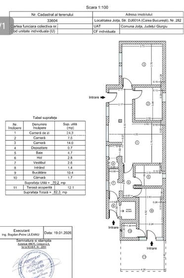
Teren: - parcelabil, cu destinatii multiple, cf. Certificat urbanism - suprafata 6400mp, deschidere soseaua principala ~14m - utilitati: gaze, curent, apa(in lucru) - altele: asfalt, iluminat stradal, mijloace de transport în comun Casa: - suprafață ~70mp si terasa acoperită ~12mp - an construcție 1941, renovata - compartimentare, cf. Releveu: bucătărie, baie, anexe, doua dormitoare, living cu scara fier/lemn acces pod si beci spatios - utilitati: Centrala termica pe gaz cu instalatie de cupru, AC, fosa septica ecologica din fibra de sticla (golire la 2-3ani), doua puturi de apa (casa/gradina), termopane, complet mobilata si utilata Pozitionare fata de punctele de interes: - 250m - 2 magazine mixte si statie transport în comun - 300m - parc copii amenajat modern, teren fotbal - asistenta medicală ( m. familie / stomatologie) - 1500m - scoala / gradinita - supermarket Precizari: - nu se accepta accesari de credite imobiliare sau fonduri europene pentru achiziționare. - se oferă 4% bonus de tranzactionare pentru intermediere imobiliara(daca este cazul).
Citește mai mult Citește mai puțin

Detalii teren

ID anunț: XV1003386 Copiat! 275339050 Copiat!
Actualizat în: 03 Mai 2026
Clasificare teren: Intravilan
Front stradal: 14 m

Utilități

Comision
0%

Proprietăți similare

Teren Construcții intravilan de 15205 mp, în Adunații-Copăceni
300.000 €
Județul Giurgiu, Adunații-Copăceni
15.205 mp teren
Construcții
Teren Construcții intravilan de 49283 mp, în Vânătorii Mici
297.000 €
Județul Giurgiu, Vânătorii Mici
49.283 mp teren
Construcții
Teren Construcții extravilan de 18198 mp, în Vânătorii Mici
344.000 €
Județul Giurgiu, Vânătorii Mici
18.198 mp teren
Construcții

Detalii de contact

Andreea Ilie

Andreea Ilie

Proprietar

Abonează-te la newsletter să fii primul care primește cele mai noi recomandări de proprietăți și sfaturi de la experți.

CONTACT

Creează alertă

Salvează căutarea ca să primești pe email ultimele anunțuri publicate

Terenuri construcții de vânzare în Joița, Județul Giurgiu