Vanzare teren cu AUTORIZATIE CHITILA

214.000 €
781.02 € / mp

Chitila, București

Sup. teren:
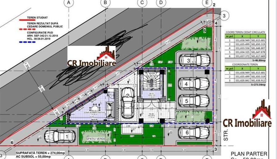
274 mp
Tip:
Construcții
  • • Exclusivitate
  • • Locație exactă
  • • Vizionare prin apel video

Descriere teren

ID intern: 365617 Teren Intravilan Construibil de vanzare in Bucuresti - Chitila, reper rOMPETROL, avand o suprafata de 274 mp si deschiderea de 18 ml la 2 strada. Caracteristici teren POT 40 % , CUT 1.3 , Regim de inaltime , amprenta maxima 110 mp. Pretul este negociabil . Acordam indrumare in vederea acordarii unui credit bancar (BRD, FIRST BANK, ALPHA BANK, PATRIA BANK, BANCA TRANSILVANIA) Se percepe comision 3%. Politica agentiei este de a optimiza negocierea pretului in raport cu comisionul.
Citește mai mult Citește mai puțin
Electricitate Apă Gaz Canalizare

Detalii teren

ID anunț: X9I613329 Copiat! 275160717 Copiat!
Actualizat în: 02 Martie 2026
Clasificare teren: Intravilan
Front stradal: 18 m
Nr. fronturi stradale: 2

Utilități

Destinație
Rezidențial
Amenajare străzi
Asfaltate
Comision
3%

Puncte de interes

Mijloace transport
tram-station
Marmurei
Stații tramvai aprox. 199 m
bus-station
Statia Marmurei / Subcetate, linia N118,45
Stații autobuz aprox. 200 m
train-station
Gara - Halta Pajura - zisa si Triaj
Stații tren aprox. 547 m
metro-station
Acces stația Parc Bazilescu N117, 112, 20, 97, M4
Stații metrou aprox. 874 m
Școală
school
Gradinita de copii nr.46
Școli aprox. 236 m
school
Scoala Generala nr 183 Bucuresti
Școli aprox. 315 m
kindergarten
Gradinita 97
Gradinițe aprox. 703 m
kindergarten
Gradinita Ursuletu
Gradinițe aprox. 1209 m
Recreere
park
Parc
Parcuri aprox. 433 m
restaurant
"La linie", drink&gossip
Restaurant aprox. 478 m
supermarket
Supermarket NIC
Supermarket aprox. 523 m
sports-ground
Teren sportiv
Terenuri sport aprox. 735 m

Proprietăți similare

Teren Construcții intravilan de 471 mp, în Chitila
235.000 €
București, Chitila
471 mp teren
Construcții
Teren Construcții intravilan de 1000 mp, în Pipera
215.000 €
București, Pipera
1.000 mp teren
Construcții
Teren Construcții intravilan de 288 mp, în Aviației
200.000 € + TVA
București, Aviației
288 mp teren
Construcții

Detalii de contact

CR Imobiliare

Florin Serban Broker imobiliar

3.20(6 review-uri)

CR Imobiliare
PRO

Abonează-te la newsletter să fii primul care primește cele mai noi recomandări de proprietăți și sfaturi de la experți.

CONTACT

Creează alertă

Salvează căutarea ca să primești pe email ultimele anunțuri publicate

Terenuri construcții de vânzare în zona Chitila, Sector 1