6

Teren constructii Gusterita Viilor, priveliste panoramica.

90.000 €
150 € / mp

Gușterița, Sibiu

Sup. teren:
600 mp
Tip:
Construcții
  • • Comision 0%
  • • Locație aproximativă

Descriere teren

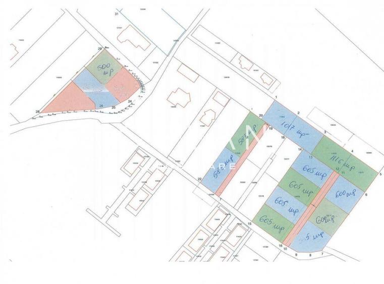
Va oferim spre achizitie 4 parcele de teren in Gusterita zona strazii Viilor in suprafete de 500mp si 600mp deschidere la strada asfaltata, toate utilitatile se afla la marginea terenului. Caracteristici: POT- 35% CUT- 0.7 Regim de inaltime- P+1+M, S+P+1+R, S+D+P+M, S+D+P+R Pentru mai multe informatii nu ezitati sa ma contactati. Pretul terenurilor este 150 euro/mp TVA inclus.
Citește mai mult Citește mai puțin
Electricitate Apă Gaz Canalizare

Detalii teren

ID anunț: X7D513035 Copiat! 221200676 Copiat!
Actualizat în: 21 Mai 2026
Tip tranzacție: De vânzare prin agent
Clasificare teren: Intravilan
Modalitate de plată: Cash sau Credit

Utilități

Amenajare străzi
Asfaltate
Alte caracteristici
La șosea Acces auto
Comision
0%

Puncte de interes

Mijloace transport
bus-station
Smardan
Stații autobuz aprox. 415 m
bus-station
Smardan
Stații autobuz aprox. 417 m
bus-station
Viilor
Stații autobuz aprox. 963 m
bus-station
Viilor
Stații autobuz aprox. 969 m
Școală
school
Scoala gimnaziala nr. 11
Școli aprox. 497 m
kindergarten
Gradinita cu program prelungit Gradina Mariei
Gradinițe aprox. 1200 m
school
Liceul Louis Pasteur
Școli aprox. 1439 m
kindergarten
Gradinita Calimero
Gradinițe aprox. 1784 m

Proprietăți similare

Teren Construcții intravilan de 179 mp, în Turnișor
87.990 €
Sibiu, Turnișor
179 mp teren
Construcții
Teren Construcții intravilan de 550 mp, în Arhitecților - Calea Cisnădiei
94.900 €
Sibiu, Arhitecților - Calea Cisnădiei
550 mp teren
Construcții
Teren Construcții intravilan de 500 mp, în Veterani
82.000 €
Sibiu, Veterani
500 mp teren
Construcții

Detalii de contact

Oglan Imobiliare

Ionel Oglan Administrator

Oglan Imobiliare
PRO

Abonează-te la newsletter să fii primul care primește cele mai noi recomandări de proprietăți și sfaturi de la experți.

CONTACT

Creează alertă

Salvează căutarea ca să primești pe email ultimele anunțuri publicate

Terenuri construcții de vânzare în zona Gușterița, Sibiu