PUZ locuinte colective -zona Torontalului

1.250.000 € + TVA
46.64 € + TVA / mp

Mehala, Timișoara

Sup. teren:
26.800 mp
Tip:
Construcții
  • • Locație aproximativă

Descriere teren

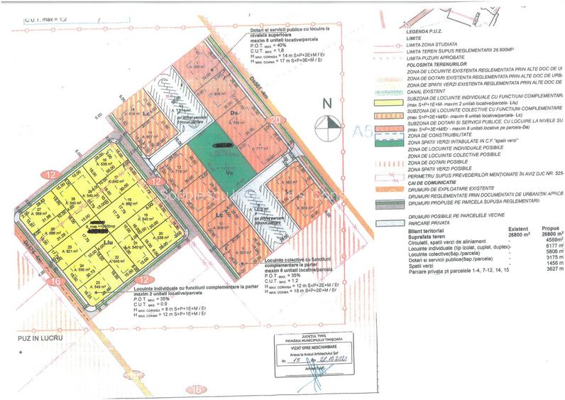
Planul Urbanistic Zonal- zona rezidentiala cu functiuni complementare se afla in Timisoara , zona Grigore Alexandrescu/Torontalului si este compus din parcele aprobate pt : -locuinte individuale (tip izolat, cuplat,duplex ) - 14 parcele -8177 mp,pret 70 euro/mp+TVA -locuinte colective ( 6 ap / parcela )- 8 parcele -5806 mp, pret 100 euro/mp+TVA -dotari si servicii publice ( 8 ap/parcela)- 4 parcele -3175 mp, pret 125 euro/mp+TVA - pt terenurile cu destinație parcare ( 1813mp+1814mp ) pret 70euro/mp +tva si spatii verzi( 1 ) ( 3627 mp și 1456 mp ) 5euro/mp+tva Pret puz pentr zona de locuinte colective 1250000euro+tva Pret puz locuinte max. 2 apartamente 572390euro+tva La momentul actual nu sunt utilități și se dorește vânzarea integrala sau parțială a acestui PUZ.
Citește mai mult Citește mai puțin
Electricitate Apă Canalizare

Detalii teren

ID anunț: X47N130R7 Copiat! 257152845 Copiat!
Actualizat în: 19 Martie 2026
Clasificare teren: Intravilan
Front stradal: 150.0 m
Nr. fronturi stradale: 2

Utilități

Destinație
Rezidențial
Utilități
Utilități în zonă
Comision
standard

Disponibilitate proprietate:

Imediat

Puncte de interes

Mijloace transport
bus-station
Statie Piata Gros A13
Stații autobuz aprox. 350 m
bus-station
Statie Vuk Karadjic A13
Stații autobuz aprox. 646 m
tram-station
Alexandru Lapusneanu
Stații tramvai aprox. 1216 m
trolleybus-station
Statie Miresei E6
Stații troleibuz aprox. 1888 m
Școală
kindergarten
Gradinita Cu Program Prelungit Nr. 9 Carla Pelz Mehala
Gradinițe aprox. 783 m
school
SCOALA GIMNAZIALĂ NR.19 "AVRAM IANCU"
Școli aprox. 821 m
kindergarten
Gradinita Samariteanul Nr. 13
Gradinițe aprox. 978 m
university
Universitatea de Vest, Facultatea de teologie ortodoxa
Universități aprox. 1375 m
Recreere
supermarket
Profi
Supermarket aprox. 280 m
restaurant
Sidney
Restaurant aprox. 356 m
sports-ground
Teren sportiv
Terenuri sport aprox. 431 m
park
Avram Iancu Square (en)
Parcuri aprox. 910 m

Proprietăți recomandate

Detalii de contact

Sodolescu Imobiliare si Constructii Srl

Miriana Ionescu Consultant Imobiliar

Sodolescu Imobiliare si Constructii Srl
PRO

Abonează-te la newsletter să fii primul care primește cele mai noi recomandări de proprietăți și sfaturi de la experți.

Feedback apel

CONTACT

Creează alertă

Salvează căutarea ca să primești pe email ultimele anunțuri publicate

Terenuri construcții de vânzare în zona Mehala, Timișoara