4

Teren Strada Berzei | Autorizatie | langa Hotel Ibis |

1.000.000 €
2,347.42 € / mp

Știrbei Vodă, București

Sup. teren:
426 mp
Tip:
Construcții
  • • Locație aproximativă

Descriere teren

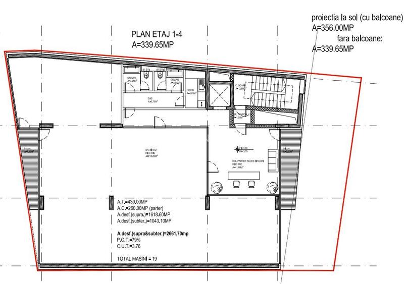
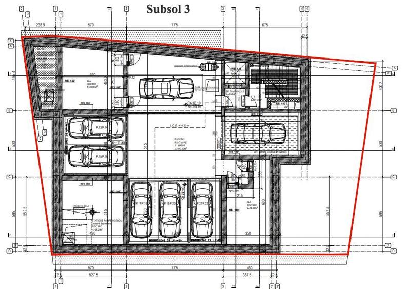
Vă propunem un teren autorizat situat într-o locație premium, pe strada Berzei, în imediata proximitate a hotelului Ibis. Suprafața totală a terenului este de 430 m², iar autorizația de construcție valabilă deschide oportunități semnificative de dezvoltare. Detalii proiect autorizat: • Funcțiune: Imobil birouri cu spații comerciale și servicii la parter. • Regim de înălțime: 3S + P + 4 etaje. • Suprafață desfășurată supraterană: 1.640 m². • Suprafață desfășurată subterană: 1.022 m², dintre care un nivel poate fi utilizat ca demisol. Avantaje cheie: • Poziție excelentă: Strada Berzei este ideală pentru afaceri care necesită vizibilitate și acces facil, iar proximitatea față de hotelul Ibis adaugă valoare. • Versatilitate: Locația și structura autorizată sunt perfecte pentru activități precum servicii, spații medicale, clinici private, cabinete medicale sau alte servicii conexe. • Timp economisit: Autorizația valabilă elimină întârzierile administrative, permițându-vă să începeți rapid construcția și să avansați în proiectul dumneavoastră. Această proprietate reprezintă o oportunitate de neratat pentru investitori sau antreprenori care doresc să valorifice o locație de top cu potențial ridicat de dezvoltare. Pentru detalii suplimentare și programarea unei vizionări, nu ezitați să mă contactați!
Citește mai mult Citește mai puțin
Electricitate Apă Gaz Canalizare

Detalii teren

ID anunț: XFAT13015 Copiat! 262801420 Copiat!
Actualizat în: 31 Decembrie 2025
Clasificare teren: Intravilan
Suprafață construită: 2062.7 mp
Front stradal: 18.0 m
Nr. fronturi stradale: 1
Lățime drum acces: 20.0 m

Utilități

Amenajare străzi
Iluminat stradal Mijloace de transport în comun Asfaltate
Alte caracteristici
Acces auto La șosea Teren împrejmuit
Comision
standard

Disponibilitate proprietate:

Imediat

Puncte de interes

Mijloace transport
bus-station
Depou subteran Gara de Nord
Stații autobuz aprox. 112 m
tram-station
Buzesti
Stații tramvai aprox. 158 m
metro-station
Metrorex. Statia de Gara de Nord
Stații metrou aprox. 179 m
train-station
Vechea "Gara a Targovistei" astazi parte din Gara de Nord
Stații tren aprox. 389 m
Școală
school
Scoala Nr. 1 Sfintii Voievozi
Școli aprox. 23 m
university
Facultatea de Inginerie Medicala
Universități aprox. 232 m
school
Colegiul Tehnic de Arhitectură și Lucrări Publice Ioan N. Socolescu
Școli aprox. 379 m
kindergarten
Gradinita Smiley
Gradinițe aprox. 463 m
Recreere
park
Parcul Garii de Nord
Parcuri aprox. 248 m
supermarket
Ami Non-Stop
Supermarket aprox. 392 m
hypermarket
Intrarea in caminele C si D din grozavesti
Hipermarket aprox. 1250 m
mall
"METROPLIS CENTER"
Mall aprox. 1616 m

Proprietăți similare

Teren Construcții intravilan de 430 mp, în Știrbei Vodă
1.000.000 €
București, Știrbei Vodă
430 mp teren
Construcții
Teren Construcții intravilan de 387 mp, în P-ța Romană
950.000 €
București, P-ța Romană
387 mp teren
Teren Construcții intravilan de 330 mp, în P-ța Victoriei
1.100.000 €
București, P-ța Victoriei
330 mp teren
Construcții

Detalii de contact

GOLDEN BUZZ

Claudiu Goian Manager

GOLDEN BUZZ
PRO

Abonează-te la newsletter să fii primul care primește cele mai noi recomandări de proprietăți și sfaturi de la experți.

CONTACT

Creează alertă

Salvează căutarea ca să primești pe email ultimele anunțuri publicate

Terenuri construcții de vânzare în zona Știrbei Vodă, Ultracentral