Apartamente cu 3 camere de vânzare pe Aleea Botorani în Sector 5, București
80 / 80 anunțuri- Top Listing
- Cele mai recente
- Preț (cel mai mic)
- Preț (cel mai mare)
FA OFERIM SPRE VANZARE, UN APARTAMENT DE 3 CAM, SITUAT LA ETAJUL 28, HOL ,,H" ,IN ZONA SEBASTIAN- NOVACI. ARE URMATOARELE IMBUNATATIRI: GRESIE, FAIANTA, PARCHET, TERMOPAN, AER CONDITIONAT,...
Vă propunem spre vânzare un apartament spațios cu 3 camere decomandat, situat în zona Drumul Sării Orizont, o zonă liniștită și bine conectată din sectorul 6. Proprietatea are o suprafață de 77 mp și...
Activează notificările pentru a fi la curent cu cele mai noi anunțuri imobiliare.
Dezactivează notificările dacă nu vrei să mai fii la curent cu cele mai noi anunțuri imobiliare.
Zona: Sebastian - Drumul Sarii - Al. Botorani 2, bl. V80, sector 5 Pret vanzare apartament: 159.950 EUR Etaj: 88 Numar camere: 3 Confort: 1 Compartimentare: decomandat Suprafata desfasurata: 83,50 mp...
Bucuresti Imobiliare va ofera spre vanzare un apartament de trei camere situat in zona Parcului Sebastian PROSPER CENTER,bl.1988, hol in H,la etajul 58,decomandat,balcon,centrala,2 bai,Liber! Apartament...
Vă prezentăm un apartament premium, situat într-o zonă semicentrală extrem de apreciată 13 Septembrie, pe strada Maior Ion Nedeleanu nr. 12, la doar 2 stații de zona Marriott și la câteva minute de centrul...
Bucuresti Imobiliare va ofera spre vanzare un apartament de trei camere situat in zona 13 Septembrie,Parcul Sebastian, BLOC 1988 REABILITAT et.58,DECOMANDAT,2 bai, CENTRALA TERMICA PROPRIE! HOL in H,BUCATARIE...
VA OFERIM SPRE VANZARE UN APARTAMENT DE 3 CAM, HOL ,,H" , ETAJUL 8?8 CF 1 DEC, SUPRAFATA UTILA 73 MP, SUPRAFATA TOTALA 76 MP, GRESIE, FAIANTA, PARCHET, TERMOPAN, AER CONDITIONAT, CENTRALA, BOLC REABILITAT....
Va oferim spre vanzare un apartament de 3 camere situat in zona 13 Septembrie.Apartamentul este pozitionat la etajul 7 intr-un bloc cu 10 neveluri construit in anul 1992.Imobilul dispune de toate...
Prețul afișat nu include TVA Spre deosebire de alți agenți, eu sunt și proprietar în complex, ceea ce înseamnă că îți pot oferi informații autentice, bazate pe experiență reală. Apartament 3 camere spațiu...
Prețul afișat nu include TVA Spre deosebire de alți agenți, eu sunt și proprietar în complex, ceea ce înseamnă că îți pot oferi informații autentice, bazate pe experiență reală. Apartament 3 camere spațiu...
Caracteristici generale: Suprafață utilă: 74 mp 4 mp balcon Compartimentare: Decomandat Etaj: 88 placă de beton deasupra, fără infiltrații An construcție: 1990 Tip imobil: Bloc de apartamente Detalii...
AFY Imobiliare va ofera spre vanzare un apartament de lux in regim duplex, amplasat in Complexul Vulcan Residence. Detalii generale Tip proprietate: Apartament de lux cu 3 camere Complex rezidențial:...
Fa oferim spre vanzare un apartament decomandat, situat în zona 13 Septembrie, o zonă apreciată pentru liniște și accesibilitate. În imediata apropiere se află Centrul Comercial Prosper, Parcul Sebastian...
ACADEMIA MILITARA, CARANDA RESIDENCE. APARTAMENT 108 MP. TERASA, GARAJ. Str. Locotenent Aviator Gheorghe Caranda 42, Etaj 4 din 5, Ap. 27. Strada linistita de vile in zona semicentrala, la 5 minute...
Vă propunem spre vânzare un apartament de 3 camere direct de la proprietar, situat într-o zonă foarte bine conectată a Bucureștiului 13 Septembrie Drumul Sării str. Lacul Plopului 5 într-un bloc construit...
Vă propunem spre vânzare un apartament modern cu 3 camere, situat în cartierul Cotroceni, Sector 5, la etajul 11 al unei clădiri noi cu 12 etaje, finalizată în anul 2023. Locuința dispune de o suprafață...
VA OFERIM SPRE VANZARE UN APARTAMENT DE 3 CAM, SITUAT IN SEBASTIAN-LIRA, VIS A VIS DE BISERICA SI CENTRUL COMERCIAL PROSPER, LA 5 MIN MIJLOACELE DE TREANSPORT 226, 385, 122. APARTAMENTUL ESTE LA ETAJUL...
Ned Com Imobiliare va propune spre vanzare un apartament de 3 camere spatios, in zona 13 Septembrie, in apropiere de Vulcan Value Center. Apartamentul se afla etajul al doilea al unui imobil de 2 etaje...
Vă prezentăm o ofertă extraordinară la apartamentul nostru situat în inima orașului București, în zona 13 Septembrie Sebastian, Str. Novaci. Acesta este amplasat la etajul 6 din 8 și dispune de 3 camere,...
REF03B4687 Vanzare apartament cu 3 camere, semidecomandat, pozitionat într-o zona excelenta din Sectorul 5, zona 13 Septembrie. Apartamentul este ideal atat pentru locuit, cat și pentru investitie. Apartamentul...
Mall Prosper, etaj 18, decomandat , H uri centrala proprie, bloc anvelopat, doua grupuri sanitare, scara curata, luminos, zona verde, liniste, se vinde complet mobilat si utilat.
Cristal Imobiliare oferă spre vânzare un apartament de 3 camere, renovat și bine poziționat, situat stradal în zona 13 Septembrie intersecția cu Sebastian, la doar câteva minute de puncte de interes majore...
Cristal Imobiliare oferă spre vânzare un apartament decomandat cu 3 camere, spațios și bine întreținut, situat în zona 13 Septembrie Dorneasca. Apartamentul are o suprafață totală de 83 mp, dintre care...
Apartament cu 3 camere decomandat in zona Sebastian 13 Septembrie, o alegere ideala pentru cei care cauta confort, acces rapid catre oras si un spatiu bine compartimentat pentru viata de zi cu zi. Locuinta...
apartament 3camere,confort1,decomandat,etaj28,bloc1988,76mp,mobilat,utilat,finisat,2 grupuri sanitare,balcon,termopane integral,bloc reabilitat termic,usa metalica,parchet,aer...
Vă propunem spre vânzare un apartament modern cu 3 camere, situat într-o zonă liniștită și retrasă de la bulevard, pe strada Mihail Sebastian, chiar vis-a-vis de Parc Sebastian. Locuința beneficiază de...
SVN va propune spre vanzare un apartament cu 3 camere situat in zona Sebastian, intr-un imobil curat si bine intretinut, ideal pentru o familie sau pentru cei care isi doresc o locuinta intr-o zona linistita...
COD PROPRIETATE: P39974 Agentia VAULT ESTATE vă prezintă un apartament cu 3 camere, de vanzare, tip compartimentare decomandat, situat în zona Drumul Sarii din Bucuresti. Proprietatea este amplasată într-un...
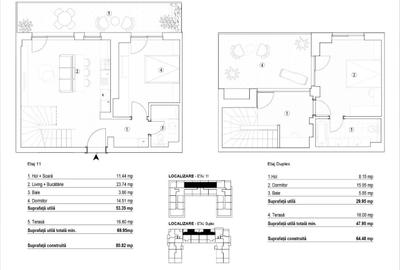
Vă propunem spre vânzare un apartament de 3 camere, decomandat, situat pe Aleea Botorani, în apropiere de zona Prosper și Vulcan Value Centre, într-un cartier liniștit și bine conectat din București....
Căutări populare
Te-ar putea interesa și:
- Apartamente cu 3 camere de vânzare pe Aleea Buhuși
- Apartamente cu 4+ camere de vânzare pe Aleea Ilioara
- Apartamente cu 3 camere de vânzare pe Aleea Tomești
- Apartamente cu 3 camere de vânzare pe Aleea Ciceu
- Apartamente cu 4+ camere de vânzare pe Aleea Căuzași
- Apartamente cu 3 camere de vânzare pe Aleea Moldovița
- Apartamente cu 3 camere de vânzare pe Aleea Căuzași
- Apartamente cu 2 camere de vânzare pe Aleea Căuzași
- Apartamente cu 3 camere de vânzare pe Aleea Pricopan
- Apartamente cu 3 camere de vânzare pe Aleea Băiuț
GĂSEȘTI CASA CU CARE CHIAR TE POTRIVEȘTI
GĂSEȘTI CASA CU CARE CHIAR TE POTRIVEȘTI
SERVICIILE NOASTRE
SERVICIILE NOASTRE
CONTACT
-
Sediul central - Timișoara Bulevardul Victor Babeș nr. 2, 300230, Timișoara, România Tel: +40.374.40.44.98 / Fax: +40.256.401.179 Email: suport@imobiliare.ro Luni - Vineri 08:00 - 20:00 Punct de lucru - București: Iride Business Park, Bld. Dimitrie Pompeiu 9-9A, Clădirea B2B, 020335, Sector 2, București, România
CONTACT
-
Sediul central - Timișoara Bulevardul Victor Babeș nr. 2, 300230, Timișoara, România Tel: +40.374.40.44.98 / Fax: +40.256.401.179 Email: suport@imobiliare.ro Luni - Vineri 08:00 - 20:00 Punct de lucru - București: Iride Business Park, Bld. Dimitrie Pompeiu 9-9A, Clădirea B2B, 020335, Sector 2, București, România
Creează alertă
Salvează căutarea ca să primești pe email ultimele anunțuri publicate
Apartamente cu 3 camere de vânzare pe Aleea Botorani în Sector 5, București