Penthouse 3 niveluri | Terase panoramice | 0% comision | Wings

447.139 €

Zorilor, Cluj-Napoca

Nr. cam.:
4
Sup. utilă:
135,8 mp
Etaj:
14 / 14
An constr.:
2023 (Finalizată)
  • • Comision 0%
  • • Locație aproximativă
  • • Vizionare prin apel video

Descriere apartament

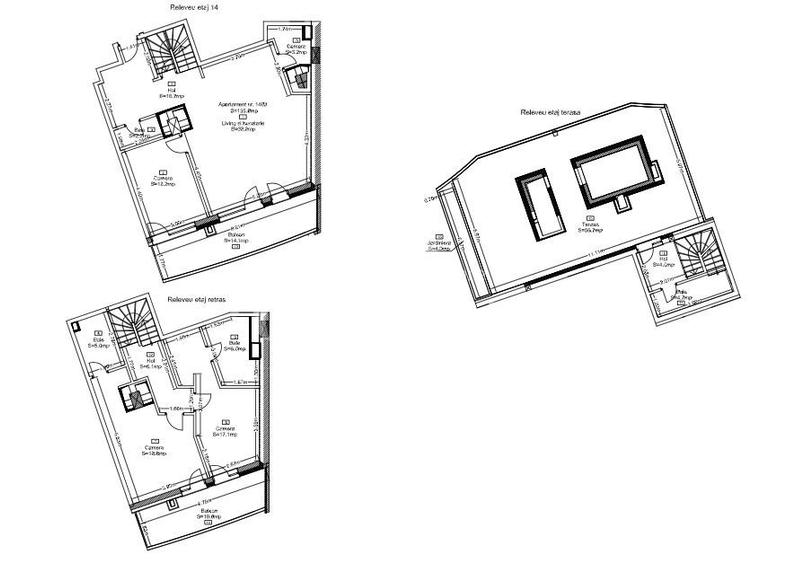
Vă propunem spre vânzare un penthouse spectaculos, dispus pe trei niveluri, destinat celor care își doresc un spațiu de locuire premium, cu suprafețe generoase și terase ample, situat în ansamblul rezidențial Wings din Cluj-Napoca. Achiziția se realizează cu 0% comision pentru cumpărător. Date tehnice ale proprietății: Suprafață utilă: 135,8 mp Suprafață terase: 85 mp + terasă panoramică 56 mp Regim de înălțime: Etaj 14 + etaj retras + nivel superior cu acces pe scară interioară Orientare: Vest Stadiu predare: semifinisat Confort termic asigurat prin centrală termică proprie pe gaz și încălzire în pardoseală Compartimentare: Etaj 14: Living cu bucătărie, Baie, Cămară de alimente, 1 cameră, Hol, 1 terasă Etaj retras: 2 camere, 2 băi, Hol, 1 terasă Nivel superior: Acces pe scară interioară către terasă panoramică de 56 mp, ideală pentru amenajarea unui spațiu de relaxare privat, dining exterior sau zonă lounge. Proprietatea se remarcă prin compartimentarea inteligentă pe niveluri, delimitând natural zona de zi de zona de noapte și oferind multiple spații exterioare ce permit amenajări diverse. Orientarea vestică asigură lumină naturală în a doua parte a zilei și apusuri spectaculoase, iar terasa superioară oferă un grad ridicat de intimitate și priveliști deschise asupra orașului. Ansamblul Wings este recunoscut pentru designul arhitectural modern, calitatea construcției și poziționarea excelentă, oferind un standard ridicat de confort urban și un potențial investițional solid. Aspecte financiare și logistice: Apartamentul deține extras cf. 0% comision pentru cumpărător Prețul afișat include TVA Parcare subterană inclusă. Pentru detalii suplimentare și programarea unei vizionări, vă stăm la dispoziție.
Citește mai mult Citește mai puțin
Confort lux Semidecomandat Nemobilat Centrală proprie Încălzire prin pardoseală 1 Garaj

Detalii apartament

ID anunț: XBA0106K7 Copiat! 274927302 Copiat!
Actualizat în: 16 Martie 2026
Suprafață construită: 221 mp
Nr. bucătării: 1
Nr. băi: 3
Structură rezistență: Cărămidă
Tip imobil: Bloc de apartamente
Regim înălțime: D+P+14E
Nr. terase: 5

Utilități

Destinație
Rezidențial
Ușă intrare
Metal
Izolații termice
Exterior
Ferestre cu geam termopan
Aluminiu
Contorizare
Apometre Contor căldură Contor gaz
Alte spații utile
Terasă
Facilități imobil
Interfon Lift
Utilități
Curent Apă Canalizare CATV Gaze Telefon
Internet
Cablu
Amenajare străzi
Iluminat stradal Mijloace de transport în comun Asfaltate
Comision
0%

Disponibilitate proprietate:

Imediat

Puncte de interes

Mijloace transport
bus-station
Varianta Zorilor
Stații autobuz aprox. 110 m
bus-station
Statia Post Zorilor, Linia 46, 50
Stații autobuz aprox. 398 m
tram-station
Statia Gr. Alexandrescu, Linia 6
Stații tramvai aprox. 1515 m
tram-station
Parang
Stații tramvai aprox. 1569 m
Școală
school
Liceul Waldorf
Școli aprox. 240 m
kindergarten
Gradinita Liceului Waldorf
Gradinițe aprox. 316 m
school
Liceul Edmond Nicolau
Școli aprox. 751 m
university
USAMV Cluj-Napoca
Universități aprox. 1114 m
Recreere
supermarket
Lidl
Supermarket aprox. 117 m
park
Parc
Parcuri aprox. 476 m
restaurant
Zucca
Restaurant aprox. 607 m
sports-ground
Teren sportiv
Terenuri sport aprox. 732 m

Detalii despre preț și costuri

Prețul pe piață

Preț cerut: 447.139 €

Preț min. zonă 205.000 €
Preț max. zonă 500.000 €

62% dintre proprietățile similare ca zonă și nr. camere au prețul cerut mai mic. mai multe...

Bine de știut: prețul unei proprietăți este influențat și de alte caracteristici, cum ar fi: vechime, localizare, vecinătăți, suprafață, compartimentare, amenajări, dotări, etc. mai puțin...

Costuri cu achiziția

Fără credit
18.261 RON
Credit ipotecar
21.273 RON
Noua casă
2.420 RON+ taxe notariale

i

Costuri adiționale mai puțin știute la achiziție: taxe notariale, comisioane etc.

Proprietăți recomandate

Detalii de contact

Comitat Imobiliare

Radu Sucila Manager

Comitat Imobiliare
PRO

Abonează-te la newsletter să fii primul care primește cele mai noi recomandări de proprietăți și sfaturi de la experți.

CONTACT

Creează alertă

Salvează căutarea ca să primești pe email ultimele anunțuri publicate

Apartamente noi cu 4+ camere de vânzare în zona Zorilor, Cluj-Napoca