2

3 camere Podu Roș (1001 Articole) | renovat | 2 balcoane | 10 min Palas

128.000 €

Podu Roș, Iași

Nr. cam.:
3
Sup. utilă:
72 mp
Etaj:
4 / 8
An constr.:
1971
  • • Comision 0%
  • • Locație exactă

Descriere apartament

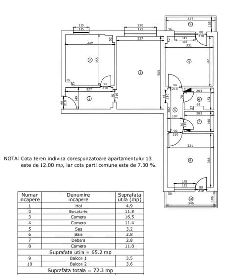
Apartament 3 camere, situat în Podu Roș – bloc 1001 Articole, la etajul 4 din 8. Suprafață utilă: 65.2 mp + 2 balcoane (72.3 mp total) Compartimentare practică, conform releveului atașat (refăcut în 2021). Apartamentul a fost complet renovat în urmă cu câțiva ani și se prezintă în stare foarte bună. Se vinde mobilat și utilat, exact ca în poze. • 2 balcoane închise cu termopan (vedere bulevard + spate) • bucătărie complet utilată • gresie, faianță, parchet • ușă metalică Localizare excelentă: • ~10 minute mers pe jos până la Palas Iași • acces rapid la mijloace de transport (Rond Podu Roș – autobuze 30, 30B; tramvaie 5, 11) • aproape de Colegiul „Emil Racoviță”, școli, bănci (ING, BRD), magazine Ideal atât pentru locuință personală, cât și pentru investiție (zonă cu cerere mare la închiriere). 📌 Acte la zi (cadastru, releveu actualizat) 📌 Tranzacție directă de la proprietar 📌 Nu se acceptă achiziție prin credit bancar
Citește mai mult Citește mai puțin
Confort 1 Semidecomandat Mobilat 2 Balcoane / Terase / Logii Termoficare Renovat

Detalii apartament

ID anunț: XV1000FN6 Copiat! 275421336 Copiat!
Actualizat în: 09 Aprilie 2026
Nr. băi: 1
Tip imobil: Bloc de apartamente
Regim înălțime: P+8E
Lift: Da

Utilități

Utilități
Apă Canalizare Gaze
Servicii imobil
Administrare Supraveghere video
Comision
0%

Puncte de interes

Mijloace transport
bus-station
Podul Ros
Stații autobuz aprox. 52 m
bus-station
Statia "Podu Rosu", linia 28,41,41b
Stații autobuz aprox. 93 m
tram-station
Statia "Podu Rosu", linia 2,5
Stații tramvai aprox. 179 m
train-station
Gara Internațională Nicolina
Stații tren aprox. 729 m
Școală
university
Facultatea de Constructii Iasi
Universități aprox. 243 m
university
Facultatea de Constructii si Instalatii
Universități aprox. 243 m
kindergarten
Gradinita cu program prelungit nr.3
Gradinițe aprox. 245 m
school
Scoala Titu Maiorescu
Școli aprox. 265 m
Recreere
park
Parcul Podu Ros-Zona fostului magazin 1001Articole
Parcuri aprox. 35 m
public-square
Podul Ros
Piețe publice aprox. 113 m
supermarket
Minimarket Cidma
Supermarket aprox. 450 m
mall
Shopping Center on Shopping Street(Palas) (en)
Mall aprox. 556 m

Detalii despre preț și costuri

Prețul pe piață

Preț cerut: 128.000 €

Preț min. zonă
Preț max. zonă

55% dintre proprietățile similare ca zonă și nr. camere au prețul cerut mai mare. mai multe...

Bine de știut: prețul unei proprietăți este influențat și de alte caracteristici, cum ar fi: vechime, localizare, vecinătăți, suprafață, compartimentare, amenajări, dotări, etc. mai puțin...

Insight premium disponibil după login

Costuri cu achiziția

Fără credit
Credit ipotecar
Noua casă

i

Costuri adiționale mai puțin știute la achiziție: taxe notariale, comisioane etc.

Insight premium disponibil după login

Proprietăți similare

Apartament cu 3 camere semidecomandat, mobilat în Podu Roș
128.000 €
Iași, Podu Roș
3 camere
72 mp
Etaj 4
Apartament cu 3 camere semidecomandat, mobilat în Podu Roș
119.500 €
Iași, Podu Roș
3 camere
60 mp
Etaj 2 / 4
Apartament cu 3 camere semidecomandat în Podu Roș
135.000 €
Iași, Podu Roș
3 camere
67 mp
Etaj 1 / 4

Detalii de contact

Abonează-te la newsletter să fii primul care primește cele mai noi recomandări de proprietăți și sfaturi de la experți.

CONTACT

Creează alertă

Salvează căutarea ca să primești pe email ultimele anunțuri publicate

Apartamente cu 3 camere de vânzare în zona Podu Roș, Iași