Apartament 3 camere lângă Verita International School

342.500 € + TVA

Aviației, București

Nr. cam.:
3
Sup. utilă:
85 mp
Etaj:
2 / 5
An constr.:
2025 (Finalizată)
  • • Locație exactă

Descriere apartament

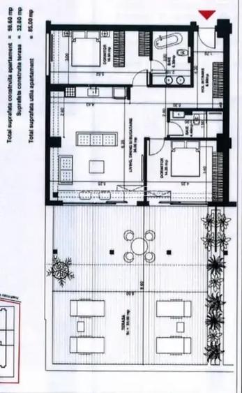
APARTAMENTE CU TERASĂ Ultra-Lux cu 3 Camere – 171 mp Preț:342.500 € + TVA Descoperiți un APARTAMENT VU TERASĂ exclusivist, conceput pentru un stil de viață modern și rafinat, situat într-un imobil premium. Proprietatea impresionează prin suprafața generoasă, finisajele de înaltă calitate și terasa spectaculoasă, ideală pentru relaxare sau socializare. Caracteristici principale: 3 camere spațioase, compartimentare eficientă Suprafață totală:171 mp Living amplu cu zonă de dining și acces direct către terasă Bucătărie modernă, integrată armonios în zona de zi 2 dormitoare confortabile, dintre care unul matrimonial 2 băi elegant amenajate Spații de depozitare bine optimizate Terasă: Terasă generoasă, amenajabilă ca zonă de lounge și dining exterior Ideală pentru petrecerea timpului liber, cu intimitate și deschidere panoramică Avantaje: Concept Ultra-Lux APARTAMENT CU TERASĂ Lumină naturală din abundență datorită suprafețelor vitrate mari Design contemporan și materiale premium Potrivit atât pentru rezidență personală, cât și pentru investiție. Acest tip de penthouse oferă un echilibru perfect între confort, eleganță și funcționalitate, fiind alegerea ideală pentru cei care își doresc un stil de viață exclusivist. VAUNT ID: 108696
Citește mai mult Citește mai puțin
Confort lux Decomandat Nemobilat Curte Calorifere Centrală imobil Încălzire prin pardoseală Termoficare Bine întreținut (Bună)

Detalii apartament

ID anunț: X7QH201DP Copiat! 275212288 Copiat!
Actualizat în: 06 Martie 2026
Suprafață utilă totală: 85 mp
Suprafață construită: 98.6 mp
Nr. bucătării: 1
Nr. băi: 2
Structură rezistență: Beton
Tip imobil: Bloc de apartamente
Regim înălțime: P+5E

Utilități

Destinație
Rezidențial
Pereți
Vopsea lavabilă Faianță
Podele
Gresie Marmură
Ușă intrare
Parchet Metal
Uși interior
Celulare
Ferestre cu geam termopan
PVC
Contorizare
Apometre Contor căldură Contor gaz
Bucătărie
Parțial utilată
Diverse
Scară interioară Senzor de fum Sistem de alarmă Telecomandă poartă garaj
Facilități imobil
Videointerfon Spații agrement Saună Spa Acoperiș Interfon Lift
Utilități
Gaze CATV Telefon Curent Apă Canalizare
Internet
Fibră optică Cablu Wireless
Servicii imobil
Administrare Menaj Pază Supraveghere video
Amenajare străzi
Iluminat stradal Mijloace de transport în comun Asfaltate Betonate

Certificat energetic:

Clasa energetică: A

Puncte de interes

Mijloace transport
bus-station
Maguricea
Stații autobuz aprox. 253 m
tram-station
Maguricea
Stații tramvai aprox. 263 m
metro-station
Metrorex. Stația Aurel Vlaicu (M2)(1987)
Stații metrou aprox. 723 m
airport
Aeroportul Internațional Băneasa (Aurel Vlaicu) - LRBS (BBU)
Aeroporturi aprox. 1871 m
Școală
school
Scoala cu clasele I-VIII nr.12 "Herastrau"
Școli aprox. 483 m
school
Scoala Generala Nr. 12
Școli aprox. 505 m
kindergarten
Gradinita Miniterra
Gradinițe aprox. 509 m
university
Școala Superioară de Aviație Civilă - S.S.Av.C.
Universități aprox. 1750 m
Recreere
park
Parc
Parcuri aprox. 154 m
bar
Simbi's
Bar aprox. 366 m
supermarket
Lidl
Supermarket aprox. 497 m
sports-ground
Teren sportiv
Terenuri sport aprox. 578 m

Detalii despre preț și costuri

Prețul pe piață

Preț cerut: 342.500 €

Preț min. zonă 179.500 €
Preț max. zonă 425.000 €

91% dintre proprietățile similare ca zonă și nr. camere au prețul cerut mai mic. mai multe...

Bine de știut: prețul unei proprietăți este influențat și de alte caracteristici, cum ar fi: vechime, localizare, vecinătăți, suprafață, compartimentare, amenajări, dotări, etc. mai puțin...

Costuri cu achiziția

Fără credit
17.124 RON
Credit ipotecar
19.995 RON
Noua casă
2.251 RON+ taxe notariale

i

Costuri adiționale mai puțin știute la achiziție: taxe notariale, comisioane etc.

Proprietăți similare

Apartament cu 3 camere în Aviației
358.000 € + TVA
București, Aviației
3 camere
109 mp
Ultimele 2 etaje
Apartament cu 2 camere semidecomandat, mobilat în Aviației
310.000 €
București, Aviației
2 camere
53 mp
Etaj 7 / 9
Apartament cu 3 camere decomandat, mobilat în Aviației
339.900 €
București, Aviației
3 camere
83 mp
Etaj 10 / 11

Detalii de contact

R&D ADVISERS

Florian Nicolaescu

R&D ADVISERS
PRO

Abonează-te la newsletter să fii primul care primește cele mai noi recomandări de proprietăți și sfaturi de la experți.

CONTACT

Creează alertă

Salvează căutarea ca să primești pe email ultimele anunțuri publicate

Apartamente noi cu 3 camere de vânzare în zona Aviației, Sector 1