3

Apartament 3 Camere Lux | Complex Aviatiei Tower - Aviatiei - Pipera

417.450 €

Aviației, București

Nr. cam.:
3
Sup. utilă:
89,5 mp
Etaj:
5 / 11
An constr.:
2024 (Finalizată)
  • • Locație exactă

Descriere apartament

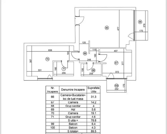
Situat în complexul Aviatiei Tower by Radacini, acest apartament de 3 camere este genul de proprietate care te convinge din prima – prin lumină, poziție și calitatea execuției. Amplasarea la etajul 5 oferă o priveliște deschisă și multă lumină naturală pe tot parcursul zilei, iar cele doua terase, una de 6,4 mp si cealalta de 4,3 mp devin spații ideale pentru relaxare. Interiorul este modern și bine echilibrat, cu finisaje premium atent alese: obiecte sanitare Hansgrohe, plăci ceramice Porcelanosa / Marazzi, parchet triplustratificat și uși filomuro, completate de tâmplărie din aluminiu Reynaers. Calitatea construcției se vede în detalii: fațadă ventilată din plăci ceramice, balustrade din sticlă, balcoane cu pardoseală flotantă și lift Schindler. Un plus important al complexului este curtea comună amenajată la etajul 9, destinată exclusiv locatarilor – un spațiu rar întâlnit, perfect pentru relaxare într-un cadru privat. 📍 Poziționare excelentă: - 5 minute de mers pe jos până la Stația de metrou Aurel Vlaicu - 8 minute de mers pe jos până la Stația de metrou Pipera - 5 minute de mers pe jos până la Promenada Mall - 1 minut de Muzeul Aviației - 2–3 minute de principalele clădiri de birouri din zona Barbu Văcărescu – Dimitrie Pompeiu Este un apartament care îmbină foarte bine locația, calitatea și funcționalitatea, potrivit atât pentru locuit, cât și pentru investiție într-una dintre cele mai active zone din nordul Bucureștiului. Suprafață utilă: 89,5 mp (inclusiv balconele-terase 6,4 mp + 4,3 mp) Etaj: 5 / 11 Preț: 345.000 + TVA Pentru mai multe detalii sau pentru programarea unei vizionari, nu ezitati sa ne contactati. Contact: Nicoleta Necula - VAUNT ID: 113130
Citește mai mult Citește mai puțin
Confort lux Decomandat Nemobilat 1 Balcon / Terasă / Logie Curte comună Aer condiționat Centrală imobil Încălzire prin pardoseală Bine întreținut (Bună)

Detalii apartament

ID anunț: X7QH20220 Copiat! 275363641 Copiat!
Actualizat în: 27 Martie 2026
Suprafață utilă totală: 89.5 mp
Nr. bucătării: 1
Nr. băi: 2
Structură rezistență: Beton
Tip imobil: Bloc de apartamente
Tip tranzacție: De vânzare prin agent
Regim înălțime: P+11E
Modalitate de plată: Cash sau Credit

Utilități

Destinație
Rezidențial
Pereți
Vopsea lavabilă Faianță
Podele
Gresie Marmură
Ușă intrare
Parchet Metal
Uși interior
Celulare
Izolații termice
Interior Exterior
Ferestre cu geam termopan
PVC
Contorizare
Apometre Contor gaz
Diverse
Senzor de fum
Alte spații utile
Terasă
Facilități imobil
Videointerfon Spații agrement Interfon Lift
Utilități
Gaze CATV Curent Apă Canalizare
Internet
Fibră optică Cablu
Servicii imobil
Administrare Menaj Pază Supraveghere video
Amenajare străzi
Iluminat stradal Mijloace de transport în comun Asfaltate

Certificat energetic:

Clasa energetică: A

Puncte de interes

Mijloace transport
bus-station
Rt 455 Pipera Tunari Maxi taxi Terminal (en)
Stații autobuz aprox. 181 m
bus-station
Statia Soseaua Fabrica de Glucoza, linia 135, N119
Stații autobuz aprox. 258 m
tram-station
Muzeul Aviatiei
Stații tramvai aprox. 288 m
metro-station
Aurel Vlaicu (M2)
Stații metrou aprox. 507 m
Școală
school
Grupul Scolar Industrial Constantin Brancusi (en)
Școli aprox. 123 m
school
Colegiul Tehnic Edmond Nicolau, fostul Electronica
Școli aprox. 223 m
kindergarten
Gradinita SOS Satul Copiilor
Gradinițe aprox. 429 m
university
Athenaeum University (en)
Universități aprox. 1831 m
Recreere
supermarket
Carrefour Market
Supermarket aprox. 194 m
restaurant
Chopshx Promenada
Restaurant aprox. 225 m
sports-ground
Teren sportiv
Terenuri sport aprox. 326 m
park
Parc
Parcuri aprox. 411 m

Detalii despre preț și costuri

Prețul pe piață

Preț cerut: 505.115 €

Preț min. zonă
Preț max. zonă

100% dintre proprietățile similare ca zonă și nr. camere au prețul cerut mai mic. mai multe...

Bine de știut: prețul unei proprietăți este influențat și de alte caracteristici, cum ar fi: vechime, localizare, vecinătăți, suprafață, compartimentare, amenajări, dotări, etc. mai puțin...

Acces la informații premium după autentificare
Login Gratuit

Costuri cu achiziția

Fără credit
Credit ipotecar
Noua casă

i

Costuri adiționale mai puțin știute la achiziție: taxe notariale, comisioane etc.

Acces la informații premium după autentificare
Login Gratuit

Proprietăți similare

Apartament cu 3 camere semidecomandat în Aviației
356.950 €
București, Aviației
3 camere
97,54 mp
Etaj 8
Apartament cu 4 camere, mobilat în Aviației
315.000 €
București, Aviației
4 camere
97 mp
Parter / 4
Apartament cu 2 camere decomandat, mobilat în Aviației
375.000 €
București, Aviației
2 camere
84 mp
Etaj 3

Detalii de contact

R&D ADVISERS

Nicoleta Necula

R&D ADVISERS
PRO

Abonează-te la newsletter să fii primul care primește cele mai noi recomandări de proprietăți și sfaturi de la experți.

CONTACT

Creează alertă

Salvează căutarea ca să primești pe email ultimele anunțuri publicate

Apartamente noi cu 3 camere de vânzare în zona Aviației, Sector 1