R.E.A. Imobiliare va ofera spre vanzare un apartament cu 3 camere in zona Floreasca/Barbu Vacarescu, semidecomandat, situat intr-un bloc bine intretinut.
Bloc construit in 1960, care nu este incadrat in nicio categorie de risc seismic, nefiind expertizat.
Aflat pe listele blocurilor de reabilitare termica.
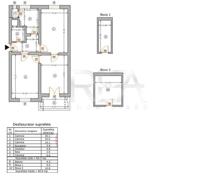
Se afla la parterul inalt al unui bloc cu 3 etaje si are o suprafata utila totala de 64 mp, din care 4 mp sunt reprezentati de balcon.
Compartimentare: living, doua dormitoare, bucatarie, baie si balcon.
Doua boxe (5 mp si 11 mp).
Confortul termic este asigurat prin reteaua edilitara de termoficare.
Zona pet-friendly.
In imediata apropiere se afla puncte comerciale, bancare, farmaceutice, medicale, educationale si de divertisment.
Acces facil la mijloacele de transport in comun: 10 minute pana la statia de metrou.
Se accepta toate modalitatile de plata. Informatiile tehnice au caracter orientativ, acestea fiind preluate de la proprietar.
Daca sunteti in cautarea unui apartament cu 3 camere in zona Floreasca – Barbu Vacarescu, nu ratati aceasta ocazie!
Comision standard, valabil doar la cumparare.
Pentru mai multe detalii si vizionari, nu ezitati sa ne contactati, specificand codul P6999.
88%dintre proprietățile similare ca zonă și nr. camere au prețul cerutmai mare.
mai multe...
Bine de știut: prețul unei proprietăți este influențat și de alte caracteristici, cum ar fi: vechime, localizare, vecinătăți, suprafață, compartimentare, amenajări, dotări, etc.
mai puțin...
Costuri cu achiziția
Fără credit
8.222 RON
Credit ipotecar
9.992 RON
Noua casă
930 RON+ taxe notariale
i
Costuri adiționale mai puțin știute la achiziție: taxe notariale, comisioane etc.
Calculul ipotecarului
Proprietăți recomandate
Pornind de la căutarea ta îți recomandăm următoarele anunțuri
Sediul central - Timișoara
Bulevardul Victor Babeș nr. 2, 300230, Timișoara, România
Tel: +40.374.40.44.98 / Fax: +40.256.401.179
Email: suport@imobiliare.ro
Luni - Vineri 08:00 - 20:00
Punct de lucru - București: Iride Business Park, Bld. Dimitrie
Pompeiu 9-9A, Clădirea B2B,
020335, Sector 2, București, România
CONTACT
Sediul central - Timișoara
Bulevardul Victor Babeș nr. 2, 300230, Timișoara, România
Tel: +40.374.40.44.98 / Fax: +40.256.401.179
Email: suport@imobiliare.ro
Luni - Vineri 08:00 - 20:00
Punct de lucru - București: Iride Business Park, Bld. Dimitrie
Pompeiu 9-9A, Clădirea B2B,
020335, Sector 2, București, România
Metrorex. Stația Obor (M1)(1989)(Fosta statie de tramvai subterana)
aprox.
1996 m
Statia Calea Dorobantilor; Liniile:79, 86,
aprox.
1522 m
Statia Piata Romana linii : 79,86
aprox.
1628 m
Statia Teiul Doamnei, linia 66
aprox.
1977 m
Universitatea Atenaeum
aprox.
89 m
Athenaeum University (en)
aprox.
89 m
CROS - Universitatea Alternativa
aprox.
1315 m
SNSPA
aprox.
1466 m
Scoala Nationala de Studii Politice si Administrative (SNSPA)
aprox.
1478 m
Scoala Nationala de Studii Politice si Administrative
aprox.
1478 m
ASE - Cibernetica
aprox.
1499 m
Facultatea de Hidrotehnica
aprox.
1514 m
ASE - Sala de sport
aprox.
1520 m
ASE Cibernetica (en)
aprox.
1523 m
ASE - Cladirea Cihoschi
aprox.
1537 m
UTCB-Laborator de Hidraulica si Protectia Mediului
aprox.
1540 m
ASE - Facultatea de Comert
aprox.
1557 m
ASE Cladirea Veche 1916 - 1926 (en)
aprox.
1563 m
Amfiteatrele ASE
aprox.
1568 m
Paradisul Copiilor
aprox.
341 m
Gradinita numarul 12 Albinuta
aprox.
367 m
Gradinita nr. 12 Albinuta
aprox.
379 m
Gradinita cu program normal si prelungit Happy Kids
aprox.
468 m
Gradinita nr. 138 cu program prelungit
aprox.
1038 m
Gradinita Numarul 7
aprox.
1092 m
Gradinita nr. 7
aprox.
1093 m
Gradinita nr. 7
aprox.
1161 m
Gradinita nr. 252 cu program prelungit
aprox.
1164 m
Gradinita de copii nr.251
aprox.
1201 m
Grădinița nr. 252
aprox.
1234 m
Gradinita Nr. 234 - Zori de zi
aprox.
1314 m
Gradinita nr. 85
aprox.
1379 m
Gradinita SOS Satul Copiilor
aprox.
1586 m
Ioanid
aprox.
1660 m
Gradinita Floreasca Rahmaninov
aprox.
349 m
ȘCOALA CU CLASELE I-VIII NR. 10
aprox.
423 m
Maria Rosetti
aprox.
423 m
Scoala nr. 15
aprox.
666 m
Liceul Teoretic "Alexandru Vlahuta"
aprox.
673 m
Colegiul Tehnic "Traian"
aprox.
687 m
Liceul Tehnic Traian
aprox.
694 m
Liceul Alexandru Vlahuta + Scoala 15 (en)
aprox.
715 m
LICEUL TEORETIC "C.A. ROSETTI"
aprox.
793 m
Liceul C.A. Rosetti
aprox.
793 m
Badulescu Aurelia (en)
aprox.
813 m
Clubul Sportiv Dinamo Bucuresti
aprox.
815 m
Colegiul National "Ion Luca Caragiale"
aprox.
825 m
Scoala Generala nr.28
aprox.
828 m
Scoala Generala nr. 28
aprox.
828 m
Kaufland Barbu Vacarescu
aprox.
574 m
BILLA - B. Vacarescu
aprox.
583 m
Mega Image
aprox.
690 m
Mega Image
aprox.
788 m
Mario Plaza
aprox.
793 m
Nic Dorobanti Non-Stop
aprox.
839 m
Mega Image - IANCU DE HUNEDOARA
aprox.
1077 m
Domino Plaza
aprox.
1089 m
Issa Supermarket
aprox.
1161 m
Mega Image Maica Domnului Non-Stop
aprox.
1249 m
Mega Image
aprox.
1386 m
BILLA - Dorobanti
aprox.
1444 m
Bila Supermarket
aprox.
1455 m
Stock Market
aprox.
1508 m
Mega Image Lizeanu Non-Stop
aprox.
1565 m
"METROPLIS CENTER"
aprox.
1104 m
Parcare
aprox.
375 m
Parcare
aprox.
407 m
Parcare
aprox.
454 m
Parcare
aprox.
490 m
Parcare privata
aprox.
516 m
Parcare
aprox.
567 m
Parcare
aprox.
648 m
Small parking
aprox.
671 m
Parcare
aprox.
702 m
Parcare spital
aprox.
710 m
Parcare
aprox.
710 m
Parcare
aprox.
739 m
Parcare Mario Plaza
aprox.
793 m
Parcare
aprox.
802 m
Parcare
aprox.
901 m
Parc
aprox.
194 m
Parcul Floreasca Cinema
aprox.
196 m
Parc
aprox.
397 m
Automatica Park (en)
aprox.
403 m
Parc
aprox.
539 m
Parcul Circului
aprox.
581 m
Parcul Circului(1961)
aprox.
632 m
Parc
aprox.
710 m
Parcul Floreasca(1963)
aprox.
738 m
Piata Dorobantilor
aprox.
865 m
Piata Dorobanti
aprox.
873 m
Parc
aprox.
892 m
George Calinescu Round (en)
aprox.
898 m
Parc
aprox.
898 m
Parc
aprox.
906 m
Teren sportiv
aprox.
267 m
Teren sportiv
aprox.
391 m
Teren sportiv
aprox.
413 m
Teren sportiv
aprox.
479 m
Teren sportiv
aprox.
496 m
Stadionul Dinamo
aprox.
657 m
Teren sportiv
aprox.
682 m
ICSIM
aprox.
720 m
Teren sportiv
aprox.
1162 m
Teren sportiv
aprox.
1217 m
Teren sportiv
aprox.
1238 m
Teren sportiv
aprox.
1241 m
Teren sportiv
aprox.
1249 m
Teren sportiv
aprox.
1251 m
Teren sportiv
aprox.
1251 m
Piața Aviatorilor
aprox.
1506 m
Piața Romană
aprox.
1651 m
Farmaplus
aprox.
320 m
Help Net Farma
aprox.
366 m
Farmacia Nr. 17
aprox.
392 m
Farmacia Tei
aprox.
473 m
Farmacia Richter
aprox.
524 m
Sensiblu
aprox.
679 m
Sante
aprox.
684 m
Catena Farmacie
aprox.
689 m
Farmacia 144
aprox.
702 m
Farmacia Tei
aprox.
716 m
Bebe Tei
aprox.
746 m
Catena Farmacia
aprox.
775 m
Depofarm
aprox.
778 m
Help Net Farma
aprox.
784 m
Farmacia HelpNet
aprox.
800 m
Dispensar floreasca
aprox.
442 m
ProEstetica
aprox.
562 m
Syromed+
aprox.
600 m
Spitalul Euroclinic - Regina Maria
aprox.
740 m
Spitalul de Pneumoftiziologie Sfantul Stefan
aprox.
746 m
Spitalul Euroclinic
aprox.
747 m
Spitalul de Urgenta Floreasca
aprox.
783 m
Spitalul de Urgență Floreasca
aprox.
796 m
Regina Maria Floreasca
aprox.
809 m
Camera de Garda - Spitalul de Urgenta Floreasca
aprox.
832 m
PROVITA
aprox.
902 m
Clinica Gral Medical
aprox.
916 m
Pavilonul J
aprox.
933 m
Clinica de Boli Profesionale
aprox.
948 m
PAVILIONUL I
aprox.
958 m
Bun si Tot
aprox.
302 m
Spring Time
aprox.
385 m
Restaurant arabesc
aprox.
387 m
Ganesha Garden
aprox.
415 m
McDonald's
aprox.
454 m
Don Carlos
aprox.
462 m
Kanpai
aprox.
485 m
Vivo Fusion Food Bar
aprox.
487 m
Circus Pub
aprox.
524 m
Trattoria Cavallino
aprox.
587 m
Restaurant Balbek
aprox.
619 m
Trattoria "As del Cuore"
aprox.
719 m
Genin Shaorma
aprox.
739 m
White Horse
aprox.
756 m
Restaurant Diesel
aprox.
774 m
Ganesha Cafe
aprox.
415 m
Fitto Cafe
aprox.
430 m
Randez Vous
aprox.
736 m
The Eatery
aprox.
811 m
High Heels
aprox.
813 m
Ambiance Caffe
aprox.
829 m
Nuba Cafe
aprox.
833 m
Reader's Cafe
aprox.
1108 m
Smart Change
aprox.
1301 m
Shiva
aprox.
1393 m
Cafe Centro
aprox.
1431 m
Tucano Coffee - Dorobanti
aprox.
1458 m
Tucano Coffee
aprox.
1477 m
Cafe Boheme
aprox.
1534 m
Mon Amour
aprox.
1562 m
Cup & Cake
aprox.
423 m
Sky Bar
aprox.
813 m
La Baraca
aprox.
990 m
ACAB Pub
aprox.
1316 m
Happy Pub
aprox.
1395 m
Lokal
aprox.
1414 m
Alan Dala
aprox.
1437 m
Zappa Rock & More
aprox.
1455 m
Frame
aprox.
1746 m
El Bistro
aprox.
1810 m
Piua Book Bar
aprox.
1828 m
Clubul Taranului
aprox.
1877 m
MIM Bistro
aprox.
1919 m
E... Varza
aprox.
1979 m
Restaurant-pizzerie BONA DA ELENA
aprox.
543 m
Doncafe Brasserie
aprox.
964 m
Studio Martin
aprox.
995 m
Open Pub
aprox.
1024 m
Barletto
aprox.
1492 m
Panik & Pub
aprox.
1498 m
Waldo's
aprox.
1602 m
OLD NICK PUB
aprox.
1756 m
Garanti Bank
aprox.
322 m
Raiffeisen Bank
aprox.
338 m
Garanti Bank
aprox.
371 m
Raiffaisen Bank
aprox.
387 m
Banca Romaneasca
aprox.
434 m
ING Kaufland Barbu Vacarescu
aprox.
522 m
CEC BANK
aprox.
576 m
Raiffeisen Bank
aprox.
759 m
Credit Europe Bank
aprox.
778 m
BRD
aprox.
810 m
ING Dorobanti
aprox.
810 m
Banca Transilvania - Ag. Dorobanti
aprox.
815 m
Raiffeisen Bank - Agentia Dorobanti
aprox.
817 m
Raiffeisen
aprox.
821 m
Raiffeisen Bank
aprox.
821 m
Dacă te vei muta în zona Tei, vei avea la dispoziție mai multe mijloace de transport în comun. Printre acestea se numără tramvaiele 16 și 36. Primul oferă o conexiune rapidă cu zona Pipera sau te poate ajuta să ajungi la doi pași de Piața Unirii. Cel de-al doilea merge până în cartierul Titan. Cu autobuzul 182 poți să te deplasezi până în zona Gării de Nord, iar cu autobuzul 282 până la Gara Basarab. Cele mai apropiate stații de metrou pe care le vei alea la dispoziție, dacă te vei muta în Tei, sunt Ștefan cel Mare și Obor, ambele aflate pe traseul magistralei 1 Dristor - Pantelimon. Este important de menționat și faptul că în zona Fabrica de Glucoză - Petricani de la marginea cartierului există autostrada urbană. Practic, ai o legătură directă cu A3 București-Ploiești. Consultă harta pentru a afla unde sunt poziționate stațiile mijloacelor de transport în comun.
În zona Tei găsești mai multe grădinițe și școli. Printre unitățile de învățământ din cartier se numără Școala Gimnazială nr. 28 din zona Parcului Circului și Școala Gimnazială nr. 31 de pe Bulevardul Lacul Tei. Tot aici se află și Liceul Teoretic Traian și Universitatea Tehnică de Construcții din București, una dintre cele mai importante instituții de învățământ superior din Capitală. Consultă harta pentru mai multe opțiuni.
Dacă te muți în cartierul Tei, cel mai ușor îți poi face cumpărăturile în zona Obor. Ai acolo atât magazinul Bucur Obor, cât și halele și piața Obor. Imediat lângă acestea se află mall-ul Veranda care include un hipermarket Carrefour. La doi pași găsești și magazinul Kaufland Colentina. O altă zonă comercială, care include un magazin Kaufland cu o mică galerie comercială și un Carrefour Market, este localizată pe Strada Barbu Văcărescu. De aici ajungi foarte repede și la mall-ul Promenada. Centrul comercial Pipera Plaza poate fi, de asemenea, o opțiune bună pentru tine, mai ales dacă lucrezi în zona Pipera. Cuprinde mai mulți retaileri, câteva restaurante și cafenele. Consultă harta și vezi unde poți să-ți faci cumpărăturile, dacă te muți în cartierul Tei.
Îți recomandăm să te interesezi dacă poți închiria un loc de parcare în apropierea locuinței dorite. Trebuie să apelezi în acest sens la Biroul Parcări din cadrul ADP Sector 2. Este important, totodată, să știi că dacă te deplasezi cu mașina vei întâlni aglomerație în trafic în zona Străzii Doamna Ghica, în special la intersecția dintre aceasta, Bulevardul Lacul Tei și Strada Petricani. Intersecția se află pe ruta directă spre polul de business Pipera. De menționat este și faptul că în zona Fabrica de Glucoză - Petricani de la marginea cartierului există autostrada urbană. Practic, ai o legătură directă cu A3 București - Ploiești. Trafic îngreunat apare și la intersecția dintre Șoseaua Ștefan cel Mare și Strada Lizeanu, iar în zona intersecției Doamna Ghica există un proiect extensiv în lucru pentru realizarea unui pasaj rutier suprateran.
Dacă te vei muta în zona Tei, vei avea în apropierea casei tale mai multe parcuri și locuri de joacă. Parcul Lacul Tei cuprinde numeroase atracții pentru cei mici și o roată mare de unde te poți bucura de priveliști frumoase ale orașului. În zona Parcului Studențesc Tei vei găsi săli de fitness, cluburi de lux, terenuri sportive și Stadionul Studențesc, iar în partea de sud a cartierului Parcul Circului și Circul Metropolitan București (fostul Globus). În vecinătatea lor se află Stadionul Dinamo. Parcul Plumbuita poate fi o altă opțiune pentru a petrece o după-amiază liniștită în aer liber. Cel mai apropiat mall la care vei avea acces este Veranda. Aici vei putea merge la un cinema VR sau îți vei putea duce copilul la un loc de joacă indoor. Ajungi destul de rapid și la mall-ul Promenada. Dacă nu te deranjează să mergi câteva minute cu mașina, atunci trebuie să știi că ajungi destul de rapid la mall-ul Promenda, dar și în Piața Victoriei unde găsești mai multe muzee. Îți poți lăsa mașina în parcarea publică aflată aici și poți face o mică plimbare pe Calea Victoriei. Găsești destul de multe obiective de vizitat în zonă și ai și unde să faci un popas la o cafea. Pentru o experiență inedită îți recomandăm o scurtă plimbare cu mașina până în cartierul Primăverii. Aici vei putea să vizitezi Palatul Primăverii, fosta reședință grandioasă a lui Nicolae Ceaușescu. Atenție, însă, ai nevoie de rezervare în avans. Află ce alte puncte de interes găsești în zona Tei și în împrejurimi de pe hartă.
Printre cele mai apropiate unități medicale la care vei putea apela, dacă te vei muta în zona Tei, se numără Spitalul Clinic Colentina și Institutul Național de Boli Infecțioase Prof. Dr. Matei Balș, ambele situate în vecinătatea Parcului Circului. La intersecția dintre Strada Barbu Văcărescu și Șoseaua Ștefan cel Mare vei găsi, totodată, Spitalul Sf. Ștefan. În imediata apropiere a acestuia se află și Spitalul Clinic de Urgență București și Spitalul Euroclinic din rețeaua privată Regina Maria. Consultă harta pentru a vedea unde sunt localizate clinicile private din cartier și din împrejurimi.
Găsești o serie de restaurante și baruri în zona Parcului Verdi și pe malul Lacului Tei. De altfel, există și mai multe săli de evenimente cu ieșire la lac sau situate în imediata sa vecinătate. Din zona Tei ajungi foarte rapid și la numeroasele terase, cafenele și restaurante aflate pe Calea Floreasca sau în Dorobanți. Restaurante de tip fast food găsești în zona Obor din apropiere. Ai câteva opțiuni pentru o gustare și în incinta Veranda Mall. Iar dacă îți dorești mai multă diversitate, poți oricând să mergi cu mașina până la Promenada Mall. Ajungi în doar câteva minute. Consultă harta. Află care este cel mai apropiat local de viitoarea ta locuință din zona Tei.
Găsești mai multe sucursale bancare în zona intersecției Doamna Ghica, lângă intrarea în Parcul Plumbuita. Altele pe Bulevardul Lacul Tei care traversează cartierul. Consultă harta și află unde găsești cel mai apropiat bancomat.
Înainte să pleci...
Ești sigur că ai văzut și aceste proprietăți?
155.000 €
București, Barbu Văcărescu
3 camere
60 mp
Parter / 3
145.000 €
București, Barbu Văcărescu
2 camere
44,3 mp
Etaj 1
155.000 €
București, Floreasca
3 camere
60,3 mp
Parter
187.000 €
București, Floreasca
3 camere
66 mp
Etaj 1 / 3
187.000 €
București, Floreasca
3 camere
66 mp
Etaj 1 / 3
136.000 €
București, Floreasca
2 camere
56 mp
Demisol / 2
Creează alertă
Salvează căutarea ca să primești pe email ultimele anunțuri publicate
Apartamente cu 3 camere de vânzare în zona Barbu Văcărescu, Sector 2
Cere detalii prin email
*
*
*
*
Detaliile tale de contact vor fi partajate cu R.e.a. Imobiliare
Statistici proprietate
Apartamente 3 camere de vânzare
- București
- Zona Barbu Văcărescu
Asigurare de viață/lună Costul este variabil. În funcție de banca aleasă, procentul variază între 0.0259% și 0.035% din soldul creditului.
Costuri cu achiziția9.992 RON
Comision agenție Întreabă agenţia
Onorariu notarial7.038 RON
Taxă întabulare OCPI1.184 RON
Autentificare contract credit1.770 RON
Preț de achiziție789.534 RON
Preț locuință789.534 RON
TVA 0%Inclus în prețul cerut
Preț de achiziție789.534 RON
Preț locuință789.534 RON
TVA 0%
Inclus în prețul cerut
Avans minim183.337 RON
Credit pe 30 de ani606.198 RON
Cost achitat în prima lună
Taxa evaluare imobil(până la)
575 RON
Rata lunară (variabilă)4.259 RON
Depozit colateral12.777 RON
Comision de garantare FNGCIMM66 RON
Asigurare anuală imobil790 RON
Poliță PAD130 RON
Tarif arhivă electronică102 RON
Costuri adiționale930 RON + taxe notariale
Asigurare viață și complexă (opțională)Costul este variabil. În funcție de banca aleasă, procentul variază între 0.0259% și 0.035% din soldul creditului
Onorariu notarialconform tarif notarial
Taxă întabulare OCPI930 RON
i
Toate valorile de mai sus sunt estimative și nu reprezintă în mod obligatoriu costurile exacte pe care le veți primi de la companiile/instituțiile prin care veți încheia tranzacția.