3

Vanzare apartament cu 3 camere rond Baba Novac - Mihai Bravu

240.000 €

Baba Novac, București

Nr. cam.:
3
Sup. utilă:
81 mp
Etaj:
1 / 10
An constr.:
1987 (Finalizată)
  • • Locație aproximativă
  • • Vizionare prin apel video

Descriere apartament

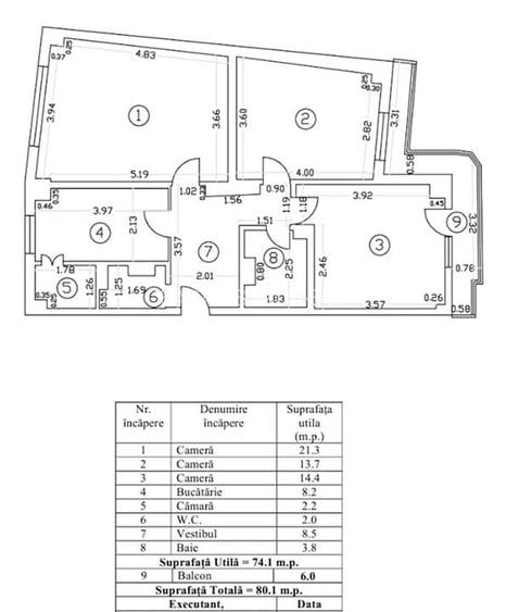
Apartament 3 Camere Decomandat - Rond Baba Novac - 5 min. Metrou Dristor Winner Imob vă propune spre vânzare un apartament cu 3 camere, spațios și luminos, situat în zona căutată a Rondului Baba Novac. Proprietatea reprezintă o soluție ideală pentru o familie care pune accent pe confort, siguranță și acces rapid către punctele de interes major din Sectorul 3. Detalii Tehnice și Compartimentare Tip locuință: Apartament 3 camere, confort 1, decomandat Suprafață utilă: 81 mp Etaj: 1 din 10 An construcție bloc: 1987 (structură solidă, post-cutremur) Dotări și Finisaje Apartamentul se vinde mobilat complet și echipat cu electrocasnice, fiind gata pentru mutare imediată. Printre dotări se numără: Tâmplărie geam termopan de calitate Sistem de aer condiționat Ușă metalică la intrare Finisaje întreținute Localizare și Vecinătăți Poziționarea strategică oferă acces facil către toate punctele de interes urban: Transport: Stația de metrou Dristor la aproximativ 500 metri distanță Recreere: Parcul Titan (IOR) în proximitate Facilități: Mega Image, farmacii, școli și grădinițe în imediata vecinătate Condiții de Vânzare Preț solicitat: 240.000 Euro
Citește mai mult Citește mai puțin
Confort 1 Decomandat Mobilat 1 Balcon / Terasă / Logie Termoficare 1 Parcare

Detalii apartament

ID anunț: XCD0100GC Copiat! 275289701 Copiat!
Actualizat în: 16 Martie 2026
Suprafață utilă totală: 81 mp
Suprafață construită: 90 mp
Nr. bucătării: 1
Nr. băi: 2
Structură rezistență: Altele
Tip imobil: Bloc de apartamente
Regim înălțime: P+10E

Utilități

Destinație
Rezidențial
Pereți
Faianță Vopsea lavabilă
Podele
Parchet Gresie
Ușă intrare
Metal
Izolații termice
Exterior
Ferestre cu geam termopan
Aluminiu
Bucătărie
Utilată Mobilată
Electrocasnice
Aragaz Frigider Mașină de spălat
Alte spații utile
WC Serviciu
Facilități imobil
Lift
Utilități
Apă Curent Gaze Canalizare
Internet
Fibră optică
Servicii imobil
Administrare
Amenajare străzi
Asfaltate
Comision
2%

Vecinătăți:

Supermarket, Banca, Autobuz, Metrou

Puncte de interes

Mijloace transport
tram-station
Baba Novac
Stații tramvai aprox. 84 m
bus-station
Statia Baba Novac / Soseaua Mihai Bravu, linia 135, 311, 330, 634, N104 ,1 ,70, 79, 92
Stații autobuz aprox. 99 m
metro-station
Metrorex. Stația Dristor 2 (M1)(1989).
Stații metrou aprox. 470 m
trolleybus-station
statie troleu 70,92,79 (en)
Stații troleibuz aprox. 1583 m
Școală
kindergarten
Gradinita Era
Gradinițe aprox. 262 m
school
Sala de sport
Școli aprox. 351 m
kindergarten
Gradinita nr. 239
Gradinițe aprox. 443 m
university
Universitatea Hyperion
Universități aprox. 1300 m
Recreere
park
Parc
Parcuri aprox. 95 m
supermarket
Radcom 2001
Supermarket aprox. 207 m
sports-ground
Teren sportiv
Terenuri sport aprox. 375 m
mall
Bucharest, Calea Vitan nr. 8, Bl V51, near VITAN Mall
Mall aprox. 1108 m

Detalii despre preț și costuri

Prețul pe piață

Preț cerut: 240.000 €

Preț min. zonă 93.000 €
Preț max. zonă 199.000 €

i

Proprietate cu prețul cerut în afara intervalului mai multe...

Posibile explicații pentru faptul că prețul proprietății este peste cel maxim: imobil nou cu suprafață mare, are dotări și finisaje de lux.
Bine de știut: prețul unei proprietăți este influențat și de alte caracteristici, cum ar fi: vechime, localizare, vecinătăți, suprafață, compartimentare, amenajări, dotări, etc.

Costuri cu achiziția

Fără credit
35.596 RON
Credit ipotecar
37.727 RON
Noua casă
1.363 RON+ taxe notariale

i

Costuri adiționale mai puțin știute la achiziție: taxe notariale, comisioane etc.

Proprietăți similare

Apartament cu 3 camere decomandat în Theodor Pallady
230.000 €
București, Theodor Pallady
3 camere
67,24 mp
Etaj 2 / 3
Apartament cu 3 camere decomandat, mobilat în Calea Călărașilor
234.900 €
București, Calea Călărașilor
3 camere
72 mp
Etaj 4 / 7
Apartament cu 2 camere decomandat, mobilat în Nerva Traian
219.000 €
București, Nerva Traian
2 camere
55,51 mp
Etaj 1 / 8

Detalii de contact

KARADIS IMOB SRL

Adi Piciu Broker Imobiliar

4.50(4 review-uri)

KARADIS IMOB SRL
PRO

Abonează-te la newsletter să fii primul care primește cele mai noi recomandări de proprietăți și sfaturi de la experți.

CONTACT

Creează alertă

Salvează căutarea ca să primești pe email ultimele anunțuri publicate

Apartamente cu 3 camere de vânzare în zona Baba Novac, Sector 3