13

Apartamente de vanzare cu 3 camere in One Cotroceni Park

245.000 €

Cotroceni, București

Nr. cam.:
3
Sup. utilă:
72 mp
Etaj:
10 / 12
An constr.:
2023 (Finalizată)
  • • Comision 0%
  • • Locație exactă

Descriere apartament

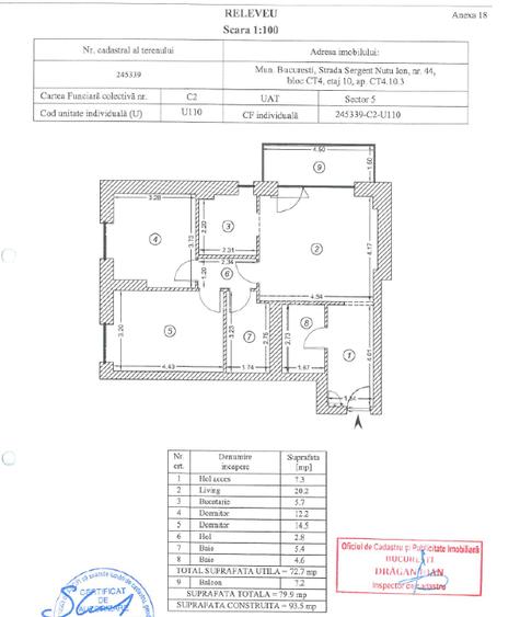
Descopera apartamente de vanzare cu 3 camere, noi, situate în prestigiosul ansamblu rezidențial One Cotroceni Park, o zonă de top din București, cu acces rapid la metrou, mijloace de transport în comun, centre comerciale, parcuri și instituții de învățământ. Toate apartamentele dispun de o compartimentare eficientă și luminoasă, cu living generos, dormitor spațios, bucătărie (open-space sau separată), baie modernă și, în funcție de variantă, balcon sau terasă. Clădirile sunt noi, dotate cu infrastructură modernă și facilități premium. Finisajele sunt de calitate superioară, iar apartamentele beneficiază de încălzire prin pardoseală și aer condiționat încorporat pentru un confort sporit în orice sezon. Se vând nemobilate, oferind libertatea de a fi amenajate după propriul gust. ✅ Disponibile mai multe variante de apartamente cu 3 camere, în funcție de preferințe: etaj, orientare, suprafață și vedere. ✅ Ideal atât pentru locuință personală, cât și pentru investiție. ✅ Ansamblu rezidențial modern, securizat, cu spații verzi, parcare subterană (opțională) și facilități urbane de top. Indicativ apartament CT4 10.3 , etaj 10, model cu 3 camere la pretul de 245000 euro + tva Locul de parcare se vinde separat la pretul de 18.000 euro+ tva subsol -3 19.000 euro + tva subsol -2 21.000 euro + tva subsol -1 Pentru mai multe informații despre opțiunile disponibile sau pentru a programa o vizionare, mă puteți contacta la nr de telefon din anunt sau la adresa de email
Citește mai mult Citește mai puțin
Confort lux

Detalii apartament

ID anunț: XVB800SP2 Copiat! 263621612 Copiat!
Actualizat în: 07 Aprilie 2026
Nr. băi: 2
Tip imobil: Bloc de apartamente
Tip tranzacție: De vânzare de către proprietar
Regim înălțime: P+12E
Modalitate de plată: Cash sau Credit

Utilități

Comision
0%

Puncte de interes

Mijloace transport
tram-station
Piata Danny Huwe
Stații tramvai aprox. 204 m
bus-station
Statie RATB 122, 226
Stații autobuz aprox. 218 m
metro-station
Academia Militară (M5)
Stații metrou aprox. 410 m
train-station
Fosta Gara Regala Cotroceni (en)
Stații tren aprox. 829 m
Școală
school
Cladirea centrala Universitatea Nationala de Aparare Carol I
Școli aprox. 290 m
kindergarten
Gradinita Adnan
Gradinițe aprox. 314 m
university
Camin
Universități aprox. 336 m
school
Facultatea de Administratie si Afaceri (Universitatea din Bucuresti)
Școli aprox. 370 m
Recreere
supermarket
Lidl
Supermarket aprox. 240 m
park
Parc
Parcuri aprox. 356 m
sports-ground
Teren sportiv
Terenuri sport aprox. 426 m
hypermarket
Intrarea in caminele C si D din grozavesti
Hipermarket aprox. 1837 m

Detalii despre preț și costuri

Prețul pe piață

Preț cerut: 245.000 €

Preț min. zonă
Preț max. zonă

68% dintre proprietățile similare ca zonă și nr. camere au prețul cerut mai mic. mai multe...

Bine de știut: prețul unei proprietăți este influențat și de alte caracteristici, cum ar fi: vechime, localizare, vecinătăți, suprafață, compartimentare, amenajări, dotări, etc. mai puțin...

Acces la informații premium după autentificare
Login Gratuit

Costuri cu achiziția

Fără credit
Credit ipotecar
Noua casă

i

Costuri adiționale mai puțin știute la achiziție: taxe notariale, comisioane etc.

Acces la informații premium după autentificare
Login Gratuit

Proprietăți similare

Apartament cu 4 camere în Cotroceni
228.000 €
București, Cotroceni
4 camere
75 mp
Etaj 1
Apartament cu 2 camere semidecomandat în Cotroceni
265.000 €
București, Cotroceni
2 camere
58 mp
Etaj 2 / 10
Apartament cu 3 camere semidecomandat, mobilat în Cotroceni
225.000 €
București, Cotroceni
3 camere
60 mp
Etaj 3

Detalii de contact

DLB LIVING

DLB LIVING

Proprietar

Abonează-te la newsletter să fii primul care primește cele mai noi recomandări de proprietăți și sfaturi de la experți.

CONTACT

Creează alertă

Salvează căutarea ca să primești pe email ultimele anunțuri publicate

Apartamente noi cu 3 camere de vânzare în zona Cotroceni, Sector 5