VANZARE PENTHOUSE//ONE COTROCENI PARK

566.500 € + TVA

Cotroceni, București

Nr. cam.:
4
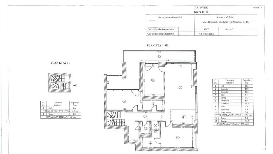
Sup. utilă:
127,4 mp
Etaj:
11 / 11
An constr.:
2023 (Finalizată)
  • • Comision 0%
  • • Locație exactă
  • • Proprietate nelocuită
  • • Vizionare prin apel video

Descriere apartament

Descoperă un apartament deosebit, tip penthouse, situat în One Cotroceni Park. Acest apartament oferă o combinație perfectă între design modern, confort și priveliște spectaculoasă asupra orașului. Detalii: 4 camere luminoase, compartimentare optimă Living spațios cu acces pe terasă Bucătărie open-space 3 dormitoare și 3 băi moderne Finisaje premium, încălzire în pardoseală Parcare subterană Proiectul este perfect ancorat in oras, aproape de Statia de metrou Academia Militara, Palatul Cotroceni, Gradina Botanica, ce reprezinta un mix de rezidential, office si comercial, un proiect de regenerare urbana, cu cafenele, restaurante, sala de fitness cu bazin de inot semiolimpic, spatii de joaca pentru copii.
Citește mai mult Citește mai puțin
Confort lux Semidecomandat Nemobilat 1 Balcon / Terasă / Logie Piscină Ventiloconvectoare Centrală imobil Încălzire prin pardoseală Bine întreținut (Bună)

Detalii apartament

ID anunț: XE4K0002V Copiat! 275224822 Copiat!
Actualizat în: 09 Martie 2026
Suprafață utilă totală: 166.6 mp
Suprafață construită: 194 mp
Nr. bucătării: 1
Nr. băi: 3
Structură rezistență: Beton
Tip imobil: Bloc de apartamente
Regim înălțime: S+P+11E

Utilități

Destinație
Rezidențial
Pereți
Faianță Vopsea lavabilă
Podele
Gresie Parchet
Ușă intrare
Metal
Uși interior
Lemn
Izolații termice
Exterior Interior
Ferestre cu geam termopan
Aluminiu
Contorizare
Apometre Contor căldură
Diverse
Telecomandă poartă acces auto
Alte spații utile
WC Serviciu
Facilități imobil
Spații agrement Lift Interfon
Utilități
CATV Gaze Curent Canalizare Apă
Internet
Fibră optică
Amenajare străzi
Asfaltate Iluminat stradal Mijloace de transport în comun
Servicii imobil
Administrare Pază Supraveghere video

Certificat energetic:

Clasa energetică: A

Vicii:

nu are vicii

Vecinătăți:

Metrou Academia Militara
Palatul Cotroceni
Parc Romniceanu
Afi Cotroceni
Gradina Botanica
Facultatea de Psihologie

Disponibilitate proprietate:

disponibil imediat

Puncte de interes

Mijloace transport
tram-station
Piata Danny Huwe
Stații tramvai aprox. 237 m
bus-station
Statie RATB 139, 96
Stații autobuz aprox. 250 m
metro-station
Orizont (M5)
Stații metrou aprox. 444 m
train-station
Fosta Gara Regala Cotroceni (en)
Stații tren aprox. 861 m
Școală
kindergarten
Gradinita Adnan
Gradinițe aprox. 339 m
school
Cladirea centrala Universitatea Nationala de Aparare Carol I
Școli aprox. 344 m
university
Camin
Universități aprox. 387 m
kindergarten
GRĂDINIȚA DE COPII NR. 75
Gradinițe aprox. 662 m
Recreere
supermarket
Lidl
Supermarket aprox. 217 m
park
Parc
Parcuri aprox. 312 m
sports-ground
Teren sportiv
Terenuri sport aprox. 462 m
hypermarket
Intrarea in caminele C si D din grozavesti
Hipermarket aprox. 1881 m

Detalii despre preț și costuri

Prețul pe piață

Preț cerut: 566.500 €

Preț min. zonă 169.000 €
Preț max. zonă 779.990 €

93% dintre proprietățile similare ca zonă și nr. camere au prețul cerut mai mic. mai multe...

Bine de știut: prețul unei proprietăți este influențat și de alte caracteristici, cum ar fi: vechime, localizare, vecinătăți, suprafață, compartimentare, amenajări, dotări, etc. mai puțin...

Costuri cu achiziția

Fără credit
26.442 RON
Credit ipotecar
30.466 RON
Noua casă
3.634 RON+ taxe notariale

i

Costuri adiționale mai puțin știute la achiziție: taxe notariale, comisioane etc.

ONE Cotroceni Park

ONE Cotroceni Park

One Cotroceni Park este un proiect multifuncțional destinat să găzduiască o comunitate de peste 12.000 de oameni care trăiesc și lucrează împreună .

Vezi detalii ansamblu

Proprietăți similare

Apartament cu 4 camere în Cotroceni
577.233 € + TVA
București, Cotroceni
4 camere
192,1 mp
Etaj 12 / 12
Apartament cu 5 camere decomandat în Cotroceni
545.000 €
București, Cotroceni
5 camere
140 mp
Etaj 1
Apartament cu 5 camere decomandat, mobilat în Cotroceni
550.000 €
București, Cotroceni
5 camere
133 mp
Etaj 1 / 1

Detalii de contact

SKIA Real Estate

Dana Vladimirov Senior Property Advisor

SKIA Real Estate
PRO

Abonează-te la newsletter să fii primul care primește cele mai noi recomandări de proprietăți și sfaturi de la experți.

CONTACT

Creează alertă

Salvează căutarea ca să primești pe email ultimele anunțuri publicate

Apartamente noi cu 4+ camere de vânzare în zona Cotroceni, Sector 5