2

Penthouse de revista. Panorama incredibila! COMISION ZERO!

174.900 €

Buziașului, Timișoara

Nr. cam.:
3
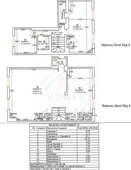
Sup. utilă:
126,16 mp
Etaj:
4 / 5
An constr.:
1990 (Finalizată)
  • • Comision 0%
  • • Exclusivitate
  • • Locație exactă

Descriere apartament

Visezi sa locuiesti intr-un apartament ca in filme, cu o priveliste care iti taie rasuflarea, excelent conectat cu orasul, aproape de tot ceea ce conteaza pentru un stil de viata modern? Grabestet-te, ofera-ti sansa! Penthousul (aproape 130 mpu!) cu vedere pe doua parti, detinut de catre un cuplu din Elvetia care activeaza in domeniul aeronautic si in domeniul artelor, configurat pe doua nivele, aflat la etajele 4 si 5 ale unui bloc cu trecut, prezent fabulous si viitor de poveste, a fost integral renovat (inclusiv instalatiile electrice si sanitare) utilizand materiale premium (de exemplu parchet din lemn de tec) si reinventat cu sprijinul unui designer din Tara Cantoanelor astfel incat sa ofere intregul confort pe care o familie moderna si-l doreste, avand la indemana tot ceea ce este important pentru stilul de viata contemporan. Cea mai mare surpriza este… pretul pe care, aproape sigur, ti-l poti permite! Imobilul se vinde mobilat foarte estetic, practic/ eficient si utilat ca in poze (proprietarii vor pastra unele obiecte de mobilier care au valoare sentimentala, precum si unele eloctronice cum ar fi, de exemplu, sistemele HI FI). Bucataria unica este dotata atat cu plita electrica, cat si cu plita pe gaz, combina frigorifica de mare capacitate “side by side”, masa ca in reviste si (bineinteles) cu masina de spalat vase. Livingul extrem de generos (peste 50 mp) iti ofera mai mult decat te-ai astepta iar panorama asupra orasului te va lasa fara cuvinte, asa cum se va intampla si in zilele senine, cand te vei bucura de imaginea muntelui Tarcu care se va dezvalui chiar de la ferestrele tale! Pentru ca totul sa fie la indemana, te vei bucura de 3 dressinguri si trei bai (cate una pentru fiecare camera). Confortul termic este asigurat cu centrala eficienta pe gaz si prin intermediul instalatiilor de climatizare (cea din living fiind instalata foarte recent). Confortul termic se realizeaza cu centrala proprie pe gaz si cu instalatiile de aer conditionat (sistemul de climatizare din living fiind din generatia 2025). Apartamentul beneficiaza de toate aventajele clasei B de eficienta energetica (pierderi reduse de caldura, implicit consumuri si coaturi mici cu asigurarea temperaturilor optime in toate incaperile). La cativa pasi (la propriu) vei avea magazine (Auchan, Lidl, Profi/ Mega, Kaufland, Jysk, Altex), Sali de sport (inclusiv World Class), bazin de inot, medic de familie, farmcie non stop, clinica, spitale, scoli si gradinite, staiile mijloacelor de transport care in scurt timp te vor lasa in centrul orasului. Masina ta isi va gasi locul de parcare fara taxa chiar in fata sau in spatele blocului. Greu de gasit cuvintele care sa reflecte visul pe care il poti trai in acest apartament. Hai sa iti vezi visul cu ochii! Trebuie doar sa crezi! Pentru mai multe informatii, inclusiv pentru planurile apartamentului, suna-ne fara ezitare! Vom raspunde oricand cu placere!
Citește mai mult Citește mai puțin
Confort lux Decomandat Mobilat Complet Lux Aer condiționat Calorifere Centrală proprie

Detalii apartament

ID anunț: XAJD0007R Copiat! 274934794 Copiat!
Actualizat în: 13 Februarie 2026
Suprafață construită: 160 mp
Nr. bucătării: 1
Nr. băi: 1
Structură rezistență: Beton
Tip imobil: Bloc de apartamente
Regim înălțime: P+5E

Utilități

Destinație
Rezidențial
Jaluzele
Orizontale Verticale
Pereți
Faianță Vopsea lavabilă
Podele
Gresie Parchet
Rulouri/Obloane
Aluminiu
Ușă intrare
Metal
Uși interior
Celulare Sticlă
Ferestre cu geam termopan
PVC
Contorizare
Apometre Contor gaz
Bucătărie
Mobilată Utilată
Electrocasnice
Aragaz Frigider Hotă Mașină de spălat rufe Mașină de spălat vase TV
Diverse
Jacuzzi Scară interioară Șemineu Senzor de fum
Alte spații utile
Debara WC Serviciu
Dotări imobil
Interfon
Utilități
Curent Apă Canalizare CATV Gaze Telefon
Acces internet
Cablu Wireless
Amenajare străzi
Iluminat stradal Mijloace de transport în comun Asfaltate
Comision
0%

Vecinătăți:

Continental (Siemens), Spitalul Judetean, Stadionul
Lidl, Auchan, Jysk
Scoli si gradinite
Mijloace transport
Medic de familie, clinica.

Disponibilitate proprietate:

Imediat

Puncte de interes

Mijloace transport
bus-station
Statie Piata Gheorghe Domasneanu E2
Stații autobuz aprox. 60 m
bus-station
Piata Gheorghe Domasnean
Stații autobuz aprox. 106 m
tram-station
Statie Grup Scolar Electrotimis Tv4
Stații tramvai aprox. 128 m
trolleybus-station
Statie B-dul Sudului T16
Stații troleibuz aprox. 857 m
Școală
kindergarten
Gradinita Program Prelungit nr.38
Gradinițe aprox. 195 m
school
COLEGIUL TEHNIC "ELECTROTIMIS"
Școli aprox. 264 m
kindergarten
Piticii din Vest
Gradinițe aprox. 357 m
school
Campus scolar Colegiul Tehnic Electrotimis
Școli aprox. 432 m
Recreere
supermarket
Nova Tim
Supermarket aprox. 36 m
bar
Club As
Bar aprox. 195 m
park
Parc
Parcuri aprox. 344 m
sports-ground
Teren sportiv
Terenuri sport aprox. 414 m

Detalii despre preț și costuri

Prețul pe piață

Preț cerut: 174.900 €

Preț min. zonă 79.000 €
Preț max. zonă 152.900 €

i

Proprietate cu prețul cerut în afara intervalului mai multe...

Posibile explicații pentru faptul că prețul proprietății este peste cel maxim: imobil nou cu suprafață mare, are dotări și finisaje de lux.
Bine de știut: prețul unei proprietăți este influențat și de alte caracteristici, cum ar fi: vechime, localizare, vecinătăți, suprafață, compartimentare, amenajări, dotări, etc.

Costuri cu achiziția

Fără credit
8.905 RON
Credit ipotecar
10.760 RON
Noua casă
1.031 RON+ taxe notariale

i

Costuri adiționale mai puțin știute la achiziție: taxe notariale, comisioane etc.

Proprietăți recomandate

Detalii de contact

G HOMES

Gherman Mihai Senior Consultant

4.83(3 review-uri)

G HOMES
PRO

Abonează-te la newsletter să fii primul care primește cele mai noi recomandări de proprietăți și sfaturi de la experți.

CONTACT

Creează alertă

Salvează căutarea ca să primești pe email ultimele anunțuri publicate

Apartamente cu 3 camere de vânzare în zona Buziașului, Timișoara