Vila 4 camere, spatioasa, teren 510 mp, Balotesti

295.000 €

Balotești, Județul Ilfov

Nr. cam.:
4
Sup. utilă:
114 mp
Sup. teren:
510 mp
Tip prop.:
Altele
  • • Comision 0%
  • • Locație exactă

Descriere casă

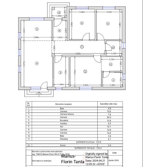
Va propunem spre achizitie o vila spatioasa si luminoasa situata in zona de nord, in Balotesti. Vila a fost construită în 2024 pe un teren de 510 mp, intr-un complex rezidențial de ultimă generație. Vila se vinde complet echipată și mobilată, cu dotări și finisaje premium, curte generoasă și amenajată integral. Totul este nou-nouț, pregătit pentru locuit și complet funcțional. Toate etapele consumatoare de timp și energie au fost deja bifate: selecția materialelor, instalarea sistemelor, mobilarea, decorarea la interior, amenajarea exterioară. - suprafață utilă: 114 mp - teren: 510 mp - terasa 18 mp acoperita cu pergola - 4 camere si 2 băi + pod, cameră tehnică - izolație: polistiren 15 cm - tâmplărie PVC cu geam tripan, plase insecte - acoperiș din țiglă metalică, placă de beton peste parter - pod pe toată suprafața casei, accesibil prin scară retractabilă, ideal ca spațiu suplimentar de depozitare - 2 locuri de parcare în fața casei + alee acces pietonal - terasă cu pergolă acoperită, cu sistem preluare ape pluviale - gazon rulouri + gard viu din chiparoși Leylandii pe tot perimetrul - amenajare peisagistică la fațadă - sistem de irigație Hunter wireless, cu zone separate (aspersoare + picurare) - gard refăcut - magazie de grădină pentru depozitare Pentru detalii suplimentare sau organizarea unei vizionari echipa noastra va sta la dispozitie.
Citește mai mult Citește mai puțin
2 Parcări

Detalii casă

ID anunț: XFR901003 Copiat! 270722980 Copiat!
Actualizat în: 23 Ianuarie 2026
Nr. bucătării: 1
Nr. băi: 2
Învelitoare acoperiș: Tabla
An construcție: 2024 (Finalizată)
Structură rezistență: Beton
Regim înălțime: P

Detalii despre preț și costuri

Costuri cu achiziția

Fără credit
Credit ipotecar
Noua casă

i

Costuri adiționale mai puțin știute la achiziție: taxe notariale, comisioane etc.

Insight premium disponibil după login

Proprietăți similare

Casă cu 5 camere în Balotești
310.000 €
Județul Ilfov, Balotești
5 camere
171,95 mp
530 mp teren
Casă cu 4 camere în Balotești
295.000 €
Județul Ilfov, Balotești
4 camere
223 mp
550 mp teren
Casă cu 5 camere în Corbeanca
310.000 €
Județul Ilfov, Corbeanca
5 camere
180 mp
450 mp teren

Detalii de contact

SMG Imobiliare

Alex Cristian Tomescu

4.42(8 review-uri)

SMG Imobiliare
PRO

Abonează-te la newsletter să fii primul care primește cele mai noi recomandări de proprietăți și sfaturi de la experți.

CONTACT

Creează alertă

Salvează căutarea ca să primești pe email ultimele anunțuri publicate

Case și vile cu 4+ camere de vânzare în Balotești, Județul Ilfov