2

Casa unifamiliala/Teren 505 mp/CF.

220.000 €

Chinteni, Județul Cluj

Nr. cam.:
5
Sup. utilă:
120 mp
Sup. teren:
505 mp
Tip prop.:
Individuală
  • • Locație aproximativă

Descriere casă

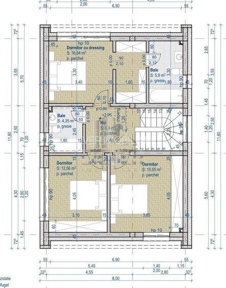
Silver Imobiliare ofera spre vanzare o casa unifamiliala, situata in prima parte a comunei Chinteni cu panorama deosebita. Casa este construita pe un teren de 505 mp, dispusa pe 2 niveluri , front de 31 m cu suprafata utila de 120 mp, fiind compartimentata foarte util dupa cum urmeaza: P= camera de zi impreuna cu bucataria (posibilitate separare bucatarie) dormitor/birou, baie, sp.dep, terasa, hol acces. E= 3 dormitoare, 2 bai, dressing, hol+casa scarilor ( dormitorul principal beneficiaza de dressing si baie proprie) La nivel de finisaje casa se vinde la stadiul de semifinisat, cu materiale de calitate superioara dupa cum urmeaza: - fundatii stalpi si plansee din beton armat; - hidroizolatii cu membrana si polistiren; - zidarie din caramida de 25 cm/cemacon evoceramic; - termosistem cu polistiren de 15 cm/eps 80+tencuiala si piatra decorativa; - acoperis placat cu scandura, folie anticondens si tigla ceramica; - pod circulabil placat cu scandura; - termoizolatie peste etaj cu vata minerala de 20 cm; - glafuri din piatra; - geamuri si usi principale termoizolante din Pvc cu 3 foi de sticla/5 camere de tip Salamander; - pereti interiori tencuiti+1 strat de glet; - instalatiile sanitare si electrice trase pe pozitii; - sapa de egalizare; - curtea ingradita si amenajata cu pavaj, trotuare perimetrale; - sistem de incalzire este in pardoseala atat la parter cat si la etaj+centrala termica in condensare. Casa va fi racordata la toate utilitatile necesare si contoare montate. PRETUL MENTIONAT IN ANUNT CONTINE TVA. Pentru alte detalii sau programarea unei vizionari contactati-ne cu incredere!
Citește mai mult Citește mai puțin
Nemobilat Grădină Curte Centrală proprie Încălzire prin pardoseală 2 Parcări Zonă de deal / munte Zonă rurală

Detalii casă

ID anunț: XF6T1102E Copiat! 271615336 Copiat!
Actualizat în: 28 Aprilie 2026
Tip tranzacție: De vânzare prin agent
Suprafață construită: 88.9 mp
Suprafață desfășurată: 173.7 mp
Nr. bucătării: 1
Nr. băi: 3
Nr. terase: 1
Suprafață terase: 29 mp
Front stradal: 31.0 m
Învelitoare acoperiș: Țiglă
An construcție: 2024 (Finalizată)
Structură rezistență: Cărămidă
Regim înălțime: P+1E
Modalitate de plată: Cash sau Credit

Utilități

Ușă intrare
PVC
Izolații termice
Exterior
Ferestre cu geam termopan
PVC
Contorizare
Apometre Contor gaz
Diverse
Scară interioară
Utilități
Curent Apă Canalizare CATV Gaze
Internet
Cablu
Amenajare străzi
Iluminat stradal Mijloace de transport în comun Asfaltate Pietruite
Comision
standard

Certificat energetic:

Clasa energetică: B

Disponibilitate proprietate:

Imediat

Puncte de interes

Mijloace transport
bus-station
M-Chinteni E
Stații autobuz aprox. 295 m
bus-station
M-Chinteni Lac
Stații autobuz aprox. 295 m
bus-station
M-Chinteni
Stații autobuz aprox. 301 m
bus-station
M-Chinteni V
Stații autobuz aprox. 301 m

Istoricul prețurilor

Acces la informații premium după autentificare
Login Gratuit

Detalii despre preț și costuri

Costuri cu achiziția

Fără credit
Credit ipotecar
Noua casă

i

Costuri adiționale mai puțin știute la achiziție: taxe notariale, comisioane etc.

Acces la informații premium după autentificare
Login Gratuit

Proprietăți similare

Casă individuală cu 4 camere în Chinteni
237.000 €
Județul Cluj, Chinteni
4 camere
105 mp
465 mp teren
Casă individuală cu 4 camere în Chinteni
199.900 €
Județul Cluj, Chinteni
4 camere
169 mp
500 mp teren
Casă individuală cu 4 camere în Chinteni
235.950 €
Județul Cluj, Chinteni
4 camere
148 mp
538 mp teren

Detalii de contact

SILVER IMOBILIARE

Dorel Lacatus Senior Broker

SILVER IMOBILIARE
PRO

Abonează-te la newsletter să fii primul care primește cele mai noi recomandări de proprietăți și sfaturi de la experți.

CONTACT

Creează alertă

Salvează căutarea ca să primești pe email ultimele anunțuri publicate

Case individuale cu 4+ camere de vânzare în Chinteni, Județul Cluj