2

Casa moderna cu 4 camere de vanzare - Zona Ganeasa - Moara Domnesca

159.900 €

Găneasa, Județul Ilfov

Nr. cam.:
4
Sup. utilă:
134,5 mp
Sup. teren:
432 mp
Tip prop.:
Individuală
  • • Comision 0%
  • • Exclusivitate
  • • Locație exactă

Descriere casă

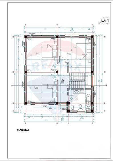
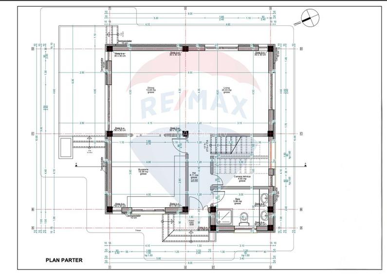
Descoperă o casă modernă, spațioasă și luminoasă, amplasată într-o zonă liniștită, aflată în plină dezvoltare, între comuna Găneasa și Moara Domnească. Proprietatea beneficiază de acces facil din DJ300, drum ce va asigura conexiunea directă cu Autostrada A0 – un avantaj important pentru cei care caută confort și accesibilitate rapidă către oraș. Casa este individuală, amplasată pe un teren generos de 432 mp, cu o curte liberă de aproximativ 300 mp, ideală pentru amenajarea unei grădini, zone de relaxare sau foișor. Construcția nouă are o suprafață utilă de 134,5 mp, compartimentată inteligent pe două niveluri: Parter (70.2 mp): bucătărie open-space cu posibilitatea de închidere cu geamuri decorative, living spațios cu zonă de dining, baie și cameră tehnică. Din zona de dining se face accesul către terasa de 8,5 mp, perfectă pentru momentele petrecute în aer liber; Etaj (60.5 mp): trei dormitoare luminoase, două dintre ele cu acces la un balcon comun, o baie și un al treilea balcon, poziționat la capătul holului. Casa se vinde în stadiul semifinisat, oferind viitorilor proprietari libertatea de a-și personaliza locuința după propriul gust. Printre finisajele deja realizate se numără: pardoseli placate cu gresie și parchet, tâmplărie PVC, uși interioare și exterioare montate, instalațiile electrice și sanitare trase (prizele și întrerupătoarele urmează să fie montate), sistem de încălzire cu radiatoare. Balcoanele urmează să fie, de asemenea, finalizate, completând aspectul elegant al etajului. Locuința se vinde cu băile nefinisate, oferind proprietarului libertatea de a alege mobilierul, gresia și faianța în funcție de propriul stil. Utilități disponibile: apă și fosă septică. Gaze și curent electric se află pe stradă, astfel că racordarea lor este posibilă rapid. Drumul de acces este pietruit, prevăzut cu stâlpi de iluminat, iar primăria are în plan asfaltarea zonei în perioada următoare. Această proprietate este alegerea potrivită pentru cei care își doresc liniște, confort și un spațiu modern pe care să-l personalizeze complet. Vă așteptăm la vizionare!
Citește mai mult Citește mai puțin
Nemobilat Calorifere

Detalii casă

ID anunț: XEAG1103Q Copiat! 271840861 Copiat!
Actualizat în: 01 Aprilie 2026
Suprafață construită: 100 mp
Nr. băi: 2
Nr. balcoane / Terase / Logii: 2
An construcție: 2025
Structură rezistență: BCA
Regim înălțime: P+2E

Utilități

Pereți
Vopsea lavabilă
Podele
Gresie Parchet
Ușă intrare
Metal
Uși interior
Lemn
Izolații termice
Exterior Interior
Ferestre cu geam termopan
PVC
Facilități imobil
Acoperiș
Amenajare străzi
Iluminat stradal
Comision
0%

Detalii despre preț și costuri

Costuri cu achiziția

Fără credit
8.396 RON
Credit ipotecar
10.188 RON
Noua casă
955 RON+ taxe notariale

i

Costuri adiționale mai puțin știute la achiziție: taxe notariale, comisioane etc.

Proprietăți recomandate

Detalii de contact

RE/MAX Quality

Andrei Bica Sales Associate

RE/MAX Quality
PRO

Abonează-te la newsletter să fii primul care primește cele mai noi recomandări de proprietăți și sfaturi de la experți.

CONTACT

Creează alertă

Salvează căutarea ca să primești pe email ultimele anunțuri publicate

Case individuale cu 4+ camere de vânzare în Găneasa, Județul Ilfov