Se oferă spre vânzare o proprietate spațioasă, situată în Timișoara, pe Strada Ulpia Traiana nr. 78, ideală pentru o familie numeroasă, sediu de firmă, cabinet, birouri, activitate mixtă sau investiție imobiliară.
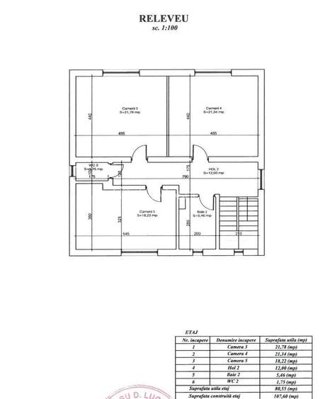
Imobilul principal are regim de înălțime parter + etaj și este amplasat pe un teren intravilan de 666 mp, împărțit în zonă de curte/construcții și grădină. Conform documentației cadastrale, casa are aproximativ 191 mp suprafață utilă totală și 244 mp suprafață construită totală. Proprietatea dispune, de asemenea, de anexă și garaj, cu o suprafață utilă totală de aproximativ 97 mp și suprafață construită de aproximativ 118 mp.
Casa are o compartimentare generoasă, cu încăperi mari și luminoase, holuri ample, bucătărie separată, băi pe fiecare nivel și spații multiple care pot fi reamenajate în funcție de necesitățile viitorului proprietar. Interiorul păstrează elemente clasice cu farmec aparte: parchet din lemn masiv tip chevron, tavane înalte, ancadramente decorative, camere aerisite și lumină naturală din abundență.
Proprietatea necesită renovare, oferind astfel viitorului proprietar posibilitatea de a o amenaja după propriul gust. Datorită suprafeței, terenului, anexei, garajului și poziționării, imobilul este potrivit atât ca locuință de familie, cât și pentru sediu de firmă, cabinet, birouri, activitate mixtă sau investiție imobiliară.
Curtea este generoasă și permite parcare, zonă de relaxare, grădină, spații verzi sau alte amenajări exterioare. Anexa și garajul adaugă un plus important de funcționalitate, fiind utile pentru depozitare, atelier, garare auto sau alte destinații.
Detalii principale:
Preț: 295.000 €
Teren: 666 mp
Casă cu regim de înălțime P+1
Suprafață utilă casă: aprox. 191 mp
Suprafață construită casă: aprox. 244 mp
Anexă + garaj: aprox. 97 mp utili
Suprafață construită anexă: aprox. 118 mp
Curte și grădină
Camere spațioase și luminoase
Parchet din lemn masiv
Potențial excelent de renovare și recompartimentare
Potrivită pentru locuință, birouri, cabinet sau investiție
O proprietate cu mult potențial, teren generos și spații versatile, ideală pentru cei care doresc să transforme o casă solidă într-o locuință reprezentativă sau într-un proiect imobiliar valoros.
Iluminat stradal
Mijloace de transport în comun
Asfaltate
Comision
0%
Vecinătăți:
Piata Balcescu, Facultatea de Mecanica, Universitatea de Vest, Groupama, Restaurant Valahia, Scoala nr. 9, Observator, Colegiul Economic Victor Babes, Parcul Carmen Silva si Piata Biserici,
Sediul central - Timișoara
Bulevardul Victor Babeș nr. 2, 300230, Timișoara, România
Tel: +40.374.40.44.98 / Fax: +40.256.401.179
Email: suport@imobiliare.ro
Luni - Vineri 08:00 - 20:00
Punct de lucru - București: Iride Business Park, Bld. Dimitrie
Pompeiu 9-9A, Clădirea B2B,
020335, Sector 2, București, România
CONTACT
Sediul central - Timișoara
Bulevardul Victor Babeș nr. 2, 300230, Timișoara, România
Tel: +40.374.40.44.98 / Fax: +40.256.401.179
Email: suport@imobiliare.ro
Luni - Vineri 08:00 - 20:00
Punct de lucru - București: Iride Business Park, Bld. Dimitrie
Pompeiu 9-9A, Clădirea B2B,
020335, Sector 2, București, România
Facultatea de Chimie Industriala si Ingineria Mediului
aprox.
230 m
Facultatea de Muzica (UVT)
aprox.
296 m
Facultatea de Muzica
aprox.
299 m
Facultatea de Hidrotehnica
aprox.
595 m
ExperimentariumTM
aprox.
626 m
U.M.F. Medicină Dentară
aprox.
684 m
Universitatea de Medicina si Farmacie Victor Babes
aprox.
695 m
Facultatea de Arte Plastice
aprox.
707 m
Facultatea de Arte
aprox.
707 m
Universitatea de Medicina si Farmacie Victor Babes
aprox.
707 m
Universitatea de Medicina si Farmacie Vicotr Babes
aprox.
713 m
Corpul B (en)
aprox.
727 m
Corpul A (en)
aprox.
733 m
UPT Electro
aprox.
734 m
Facultatea de Electronica si Telecomunicatii
aprox.
742 m
Gradinita Program Normal Nr. 22 (Lenau)
aprox.
509 m
Gradinita Program Prelungit Nr. 6
aprox.
625 m
Gradinita Program Prelungit Nr. 33
aprox.
823 m
Gradinita Program Prelungit Posta
aprox.
835 m
Gradinita Bunul Pastor
aprox.
974 m
Gradinita Program Prelungit Nr. 19
aprox.
993 m
Gradinita Biancaneve
aprox.
1174 m
Gradinita Program Prelungit Nr. 22
aprox.
1186 m
Gradinita nr. 26
aprox.
1187 m
Gradinita Program Prelungit Nr. 25
aprox.
1196 m
Grădinița nr. 26 Timișoara
aprox.
1197 m
Gradinita Program Prelungit Nr. 36
aprox.
1209 m
Gradinita nr. 22 / Cresa nr. 7
aprox.
1224 m
Gradinita Program Normal Nr. 9
aprox.
1233 m
Gradinita nr. 36
aprox.
1237 m
Materna-Modern
aprox.
65 m
Carrefour Market
aprox.
370 m
Carrefour
aprox.
410 m
Carrefour Market
aprox.
417 m
Bega Shopping Center
aprox.
422 m
Profi City
aprox.
828 m
DM
aprox.
853 m
Kaufland
aprox.
872 m
Billa
aprox.
956 m
Penny Market
aprox.
973 m
Profi
aprox.
1198 m
Profi Piata Sinaia
aprox.
1212 m
Carrefour Market
aprox.
1387 m
Profi City
aprox.
1388 m
Carrefour Market
aprox.
1396 m
Kappa Centrul Comercial
aprox.
1699 m
Parcare cu plata
aprox.
97 m
Parcare
aprox.
113 m
Parcare privata
aprox.
135 m
Parcare cu plata
aprox.
139 m
Parcare
aprox.
145 m
Parcare cu plata
aprox.
160 m
Parcare
aprox.
222 m
Parcare privata
aprox.
279 m
Parcare cu plata
aprox.
340 m
Parcare
aprox.
363 m
Parcare
aprox.
373 m
Parcare Piata 700
aprox.
374 m
Parcare
aprox.
377 m
Parcare
aprox.
451 m
Parcare City Business Center
aprox.
456 m
Park (en)
aprox.
134 m
Parcul Castelului
aprox.
134 m
Piata Iancu Huniade
aprox.
219 m
Parc
aprox.
257 m
Parc
aprox.
266 m
Parc
aprox.
287 m
Piata Sfantul Gheorghe
aprox.
308 m
Parc
aprox.
349 m
Parc
aprox.
402 m
Parcul Ion C. Bratianu
aprox.
409 m
Parcul I.C. Brătianu (en)
aprox.
412 m
Parcul Civic
aprox.
414 m
Parc
aprox.
437 m
Parcul Catedralei
aprox.
454 m
Parcul Catedralei
aprox.
454 m
Piata Mircea Eliade
aprox.
145 m
Piata Victoriei
aprox.
146 m
Piata Libertatii
aprox.
226 m
Piata Unirii
aprox.
518 m
Piata Tepes Voda
aprox.
597 m
Piața Maria
aprox.
813 m
Piata Leonardo Da Vinci
aprox.
935 m
Piata Sinaia
aprox.
1144 m
Piata Corneliu Micloși
aprox.
1515 m
Piata Romanilor
aprox.
1739 m
Piata Aurel Vlaicu
aprox.
1859 m
Piata Traian
aprox.
1925 m
Teren sportiv
aprox.
279 m
Teren sportiv
aprox.
381 m
Teren sportiv
aprox.
539 m
Teren sportiv
aprox.
548 m
Teren sportiv
aprox.
573 m
Teren sportiv
aprox.
576 m
Teren sportiv
aprox.
585 m
Teren sportiv
aprox.
656 m
Teren sportiv
aprox.
661 m
Teren sportiv
aprox.
666 m
Teren sportiv
aprox.
684 m
Teren sportiv
aprox.
752 m
Teren sportiv
aprox.
760 m
Teren sportiv
aprox.
768 m
Teren sportiv
aprox.
775 m
Farmado
aprox.
133 m
Sensiblu
aprox.
158 m
Sensiblu
aprox.
218 m
Dianthus Farmacia
aprox.
284 m
Farmacia Dona
aprox.
365 m
Vlad
aprox.
442 m
Sf. Maria
aprox.
866 m
Mihai Viteazul
aprox.
1073 m
Remedio
aprox.
1160 m
Farmacia Dacia
aprox.
1209 m
Dacia
aprox.
1270 m
Helpnet
aprox.
1290 m
Richter
aprox.
1295 m
Richter
aprox.
1343 m
Farmacia Dona
aprox.
1354 m
Oftalmologie
aprox.
202 m
Spitalul Clinic Municipal
aprox.
210 m
Spitalul Clinic de Urgenta pentru Copii Louis Turcanu
aprox.
284 m
Louis Èšurcanu Hospital (en)
aprox.
314 m
Clinica de Chirurgie si Ortopedie Pediatrica Dr. Trestianu Viorel
aprox.
326 m
Spitalul Militar de Urgenta Dr. Victor Popescu
aprox.
341 m
Spitalul militar
aprox.
342 m
Policlinica de Copii
aprox.
374 m
Clinica de Neonatologie - Prematuri
aprox.
396 m
Spitalul Municipal Clinicile Noi
aprox.
622 m
Clinicile Noi (en)
aprox.
633 m
Spitalul Clinic Cai Ferate
aprox.
755 m
Spitalul CFR timisoara
aprox.
767 m
Clinica de Recuperare
aprox.
771 m
Clinica de Oto-Rino-Laringologie
aprox.
789 m
McDonald's
aprox.
42 m
Lloyd
aprox.
57 m
Timisoarana
aprox.
57 m
Club XXI
aprox.
64 m
Casa cu flori
aprox.
126 m
KFC
aprox.
169 m
Restaurant Pasha Maestro
aprox.
182 m
Central
aprox.
199 m
Little Hanoi Bistro
aprox.
204 m
Cina-Banatul
aprox.
206 m
Casa Armatei
aprox.
218 m
Cofetaria Violeta
aprox.
253 m
Ieftin si bun
aprox.
293 m
Restaurant Marele Zid Chinezesc
aprox.
316 m
Cora
aprox.
330 m
Starbucks
aprox.
45 m
Galto di Bruno
aprox.
87 m
Tempo
aprox.
115 m
Massimo
aprox.
193 m
WellPlayed Gaming Lounge
aprox.
320 m
Tucano Coffee Mexico
aprox.
338 m
Spirit
aprox.
366 m
Musetti
aprox.
393 m
1740 Music Cafe
aprox.
426 m
Cuib d'Arte
aprox.
498 m
Reciproc
aprox.
498 m
Terasa D'Arc
aprox.
538 m
Papillon
aprox.
637 m
Van Graf KFe
aprox.
670 m
Orlovi
aprox.
737 m
Alt Club
aprox.
166 m
Art Club Cafe
aprox.
320 m
Enoteca de Savoya
aprox.
375 m
Arqa
aprox.
379 m
Freshious
aprox.
389 m
Nouveau
aprox.
424 m
Cafe Colt
aprox.
446 m
Eclipse
aprox.
467 m
Curtea Berarilor
aprox.
495 m
Mode
aprox.
529 m
D'arc
aprox.
537 m
Bunker
aprox.
542 m
Swiss House Club
aprox.
623 m
MGM Bastion
aprox.
626 m
Manufactura
aprox.
654 m
Beraria 700
aprox.
319 m
Bibliotheka 2
aprox.
342 m
Molly Malone's
aprox.
423 m
Grinette
aprox.
464 m
Rock House
aprox.
475 m
Irish Pub
aprox.
510 m
Jarvis
aprox.
528 m
Bierhaus
aprox.
540 m
Drunken Rat
aprox.
610 m
Vineri15
aprox.
710 m
La Capite
aprox.
725 m
Orlovi
aprox.
730 m
Habitat
aprox.
752 m
Daos Club
aprox.
805 m
Casino El Dorado
aprox.
841 m
UniCredit Bank
aprox.
58 m
OTP Bank
aprox.
75 m
ING Office Timisoara
aprox.
105 m
ING
aprox.
120 m
BCR
aprox.
133 m
Leumi Bank
aprox.
189 m
Raiffeisen Bank
aprox.
199 m
OTP Bank
aprox.
296 m
CEC Bank
aprox.
309 m
Banca Transilvania
aprox.
358 m
Bancpost
aprox.
370 m
Banca Romaneasca
aprox.
414 m
UniCredit Bank
aprox.
445 m
UniCredit Bank
aprox.
452 m
Banca Transilvania
aprox.
468 m
Dată fiind apropierea sa de zona centrală, acest cartier este bine deservit la capitolul mijloace de transport în comun "“ astfel, locuitorii săi au la dispoziție atât tramvaie (liniile 6, 7, 8, dar și 10), cât și mai multe autobuze (printre care linia E8, care circulă pe Strada Ciprian Porumbescu). Și amatorii mersului cu bicicleta sunt avantajați, aceștia având acces la mai multe piste special amenajate, pe străzi precum Bulevardul Mihai Viteazu, Bulevardul Victor Babeș sau Strada Cluj.
Dintre unitățile de învățământ existente strict între granițele cartierului, de menționat ar fi Școala primară "Sf. Antim Ivireanul" (de pe Bulevardul Liviu Rebreanu, nr. 35), Liceul Teoretic "Grigore Moisil" (de pe Strada Ghirlandei, nr. 4), dar și Colegiul Economic "Francesco Severio Nitti" (de pe Strada Corbului, nr. 7C). Zona beneficiază, în plus, de proximitatea a două cartiere în care pot fi găsite atât licee, cât și reputate instituții de învățământ superior. În Cetate se află, astfel, Universitatea de Medicină și Farmacie "Victor Babeș" (pe Strada Eftimie Murgu, nr. 2), dar și Facultatea de Management în Producție și Transporturi (pe Strada Remus, nr. 14), în apropiere de Parcul "Carmen Sylva"). În Complex-Stadion, pe de altă parte, se găsește Universitatea de Vest, de care aparțin peste zece facultăți importante (printre care Arte și Design, Litere, Istorie și Teologie, dar și cea de Matematică și Informatică). Mai jos poți vedea în detaliu ce unități de învățământ există în Elisabetin-Odobescu:
În ceea ce privește oportunitățile de cumpărături, de precizat este că locuitorii zonei Elisabetin-Odobescu sunt deserviți, strict între granițele cartierului, de magazine de mici dimensiuni. Cu toate acestea, însă, timișorenii de aici au acces la facilitățile comerciale oferite de centrul orașului "“ de menționat aici fiind, desigur, magazinul Bega Shopping Center, situat în apropiere de Parcul Civic. Un alt avantaj al celor care locuiesc în această parte a orașului este reprezentat de proximitatea zonei Calea Șagului, în contextul în care aici pot găsi și un hipermarket "“ este vorba despre o unitate din rețeaua Kaufland, amplasată aproape de "granița" dintre cele două cartiere, mai exact pe Strada Damaschin Bojinca, nr. 4. De asemenea Mall-ul Shopping City Mall este o opțiune pentru locuitorii acestei zone.
Una dintre principalele artere de circulație din zona Elisabetin-Odobescu este Bulevardul Mihai Viteazu, care face legătura cu zona Cetate; acesteia i se adaugă Strada Ciprian Porumbescu, care ajunge și în învecinatul Șagului, dar și Bulevardul Liviu Rebreanu, la limita cu Calea Șagului și Girocului. De menționat este, desigur, și Strada Alexandru Odobescu, care dă, cel puțin în parte, și numele cartierului. Deși Elisabetin-Odobescu nu poate fi considerat un cartier prea aglomerat, cei interesați de închirierea unui loc de parcare de la autoritățile locale se pot adresa reprezentanților Primăriei (al cărei sediu se găsește în zona Cetate, mai exact pe Bulevardul Constantin Diaconovici Loga, nr. 1).
Pe lângă spațiile verzi din cartier, în Elisabetin-Odobescu se găsesc și parcuri, de menționat aici fiind Parcul "Carmen Sylva", situat aproape de granița cu zona Cetate, dar și parcul din jurul Observatorului Astronomic. Cei care locuiesc aici au acces, bineînțeles, și la multitudinea de opțiuni oferite din acest punct de vedere de centrul orașului (precum Parcul Botanic, Parcul Catedralei, Parcul Civic, Parcul "I.C. Brătianu", Parcul "Regina Maria", Parcul Rozelor, Parcul Copiilor "Ion Creangă"). Lista obiectivelor de interes cultural și turistic din zona Cetate, la care au acces timișorenii din Elisabetin-Odobescu, este completată de Muzeul Consumatorului Comunist "“ acesta își are sediul chiar în cartier, pe Strada Arhitect Laszlo Szekely, nr. 1. Nu în ultimul rând, această zonă a Timișoarei are de câștigat de pe urma proximității zonei Complex-Stadion, unde se găsește, alături de alte facilități sportive, și Stadionul "Dan Păltinișanu". Află, mai jos, ce alte opțiuni de petrecere a timpului liber mai ai în Elisabetin-Odobescu:
În ceea ce privește accesul la servicii medicale, zona Elisabetin-Odobescu este destul de bine deservită chiar de unitățile medicale existente în interiorul său. Astfel, pe Bulevardul Victor Babeș, la limita cu Complex-Stadion, se află Maternitatea Bega dar și Clinica de Oncologie Medicală. În plus, pe Strada Corbului, nr. 7, se află Clinica de Neuropsihiatrie Infantilă, ce ține de Spitalul Clinic de Urgență pentru Copii "Louis Țurcanu". Locuitorii acestei zone al capitalei Banatului au la dispoziție, pe lângă spitalele din zona centrală, și o serie de cabinete medicale particulare în propriul cartier. Aceștia se pot înscrie, astfel, la un medic de familie, dar pot beneficia și de diverse consultații specializate (dermatologie, stomatologie etc.). Pe harta de mai jos găsești localizarea exactă a spitalelor și clinicilor din zonă:
Găsim aici câteva restaurante și pizzerii, amenajate în vilele istorice ale zonei, între care Pizza La Maria, de pe strada Emanoil Gojdu, nr. 6, Restaurant Ambasador, de pe strada Mangalia nr. 3, sau restaurantul Valahia de pe strada Vadul Călugăreni, nr. 1. În cazul în care dorești un prânz business, există și opțiunea de a alege restaurantul din cadrul clădirii Nokia, care se află în vecinătate. Cu mașina, cu bicicleta, sau chiar pe jos, poți să ajungi repede în Piața Victoriei, iar dacă nici localurile de aici nu te satisfac, cu siguranță vei găsi ceva pe gustul tău mergând în Piața Sfântul Gheorghe sau Unirii. Aruncă o privire pe hartă și vezi unde vei găsi cel mai apropiat restaurant de viitoarea ta locuință.
Găsești un bancomat BRD pe Bulevardul Regele Carol, nr. 28, respectiv pe strada 16 decembrie 1989, nr. 71. O sucursala Banca Transilvania ai pe Bulevardul Regele Carol I, la nr. 36, dar și în apropierea Gării de Nord, unde se mai află și o sucursală ING Bank. Datorită proximității cu zona centrală a orașului, vei avea mai multe opțiuni să găsești și alte bancomate și sucursale bancare la care poți ajunge relativ ușor, pe jos sau cu mașina. Consultă harta și află unde sunt localizate și alte bănci sau ATM-uri în zona de care ești interesat.
Înainte să pleci...
Ești sigur că ai văzut și aceste proprietăți?
300.000 €
Timișoara, Elisabetin
4 camere
100 mp
Casă individuală
300.000 €
Timișoara, Elisabetin
6 camere
220 mp
827 mp teren
320.000 €
Timișoara, Elisabetin
4 camere
170 mp
802 mp teren
Creează alertă
Salvează căutarea ca să primești pe email ultimele anunțuri publicate
Case individuale cu 4+ camere de vânzare în zona Elisabetin, Timișoara
Cere detalii prin email
*
*
*
*
Detaliile tale de contact vor fi partajate cu Hitch&mosher;