"HousR" propune spre vanzare o vila spatioasa si excelent compartimentata, cu arhitectura moderna, in zona Elisabetin, pe parter si etaj, cu suprafata utila de 220 mp si teren de 523 mp.
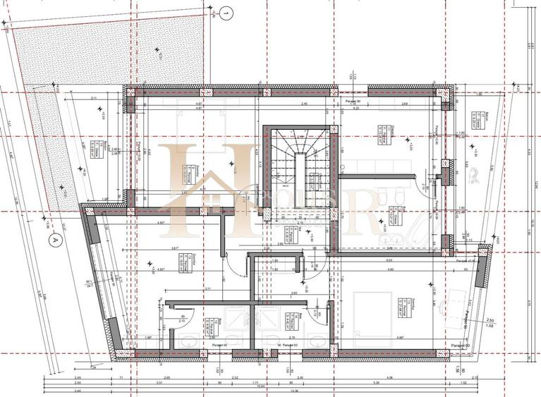
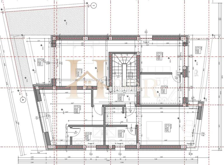
DETALII CONSTRUCTIE:
- ziduri din caramida porotherm
- termoizolatie exterioara cu polistiren grafitat de 15 cm
- placă de beton peste etaj și izolație
- acoperis tip terasa cu membrana izolatoare
- terasă construită din beton
COMPARTIMENTARE:
PARTER:
- hol
- baie de serviciu
- camera tehnica
- scară acces etaj
- living generos
- bucătărie separata cu zona de dinning
- garaj dublu cu acces din casa
- terasă cu structură de beton
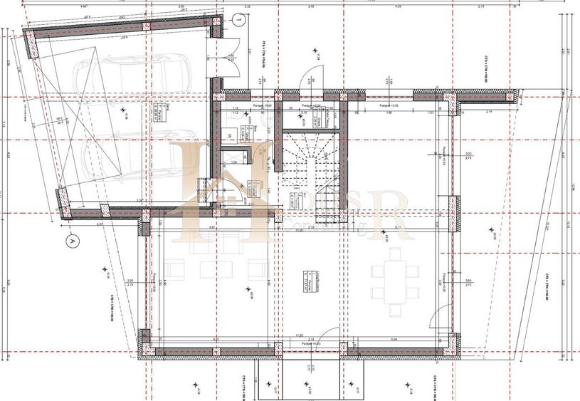
ETAJ:
- hol
- dormitor matrimonial cu dressing, baie proprie si balcon
- dormitor cu baie proprie si balcon
- dormitor cu baie proprie
AMENAJARE INTERIOARA SI DOTARI:
- parchet laminat, gresie, faianta, ferestre cu tamplarie PVC geamuri termopan, usa PVC la intrare, usi interioare noi, vopsea lavabila, corpuri sanitare noi
- CENTRALA termica PROPRIE cu incalzire in PARDOSEALA pe ambele niveluri si Termostate de Ambient in fiecare camera.
- 3 Aparate de Aer Conditionat
- Se Vinde Mobilata si Utilata cum este in poze
AMENAJARE EXTERIOARA:
- împrejmuire cu gard din beton si metal
- porți de fier forjat
- curte cu trotuare
- gazon
- sistem de irigatie automatizat cu aspersoare
- sistem de supraveghere video
UTILITATI: CURENT, GAZ, APĂ, CANALIZARE, ILUMINAT STRADAL, INTERNET.
Detalii pret:
Pretul solicitat de proprietar este de 590.000 Euro negociabil. Pretul include mobilierul si electrocasnicele.
Se accepta si varianta de achizitionare prin intermediul unui credit bancar.
* Solutii financiar-bancare si consultanta juridica pana la finalul tranzactiei, oferite prin intermediul colaboratorilor “HousR Consulting”.
Sediul central - Timișoara
Bulevardul Victor Babeș nr. 2, 300230, Timișoara, România
Tel: +40.374.40.44.98 / Fax: +40.256.401.179
Email: suport@imobiliare.ro
Luni - Vineri 08:00 - 20:00
Punct de lucru - București: Iride Business Park, Bld. Dimitrie
Pompeiu 9-9A, Clădirea B2B,
020335, Sector 2, București, România
CONTACT
Sediul central - Timișoara
Bulevardul Victor Babeș nr. 2, 300230, Timișoara, România
Tel: +40.374.40.44.98 / Fax: +40.256.401.179
Email: suport@imobiliare.ro
Luni - Vineri 08:00 - 20:00
Punct de lucru - București: Iride Business Park, Bld. Dimitrie
Pompeiu 9-9A, Clădirea B2B,
020335, Sector 2, București, România
Sună acum și cere detalii sau programează o vizionare.
Cere detalii prin email
*
*
*
*
Stații tramvai
Stații autobuz
Stații troleibuz
Școli
Gradinițe
Universități
Supermarket
Parcări
Parcuri
Terenuri sport
Piețe publice
Spital
Farmacie
Restaurant
Pub
Bar
Cafenea
Bancă
Statie Salcamilor Tv9
aprox.
227 m
Calea Martirilor
aprox.
384 m
Calea Martirilor
aprox.
438 m
Statie Calea martirilor Tv9
aprox.
463 m
Statie Spitalul judetean Tv9
aprox.
523 m
Statie Drubeta Tv9
aprox.
533 m
Spitalul Judetean
aprox.
544 m
Drubeta
aprox.
584 m
Spitalul Judetean
aprox.
602 m
Statie Spitalul judetean Tv9
aprox.
638 m
Statie Piata Crucii Tv5, Tv6, Tv8
aprox.
645 m
Statie Lidia Tv7
aprox.
684 m
Statie Memorandului Tv7
aprox.
767 m
Statie Cluj Tram 6 si 8
aprox.
837 m
Cluj
aprox.
851 m
Statie Martir Ioan Stanciu T15, T19, E3
aprox.
312 m
Calea Martirilor
aprox.
374 m
Statie Calea martirilor T15, T19, E3
aprox.
394 m
Calea Martirilor
aprox.
448 m
Statie Calea martirilor T15, T19, E3
aprox.
475 m
Statie Spitalul judetean T16, E2
aprox.
587 m
Spitalul Judetean
aprox.
594 m
Statie Spitalul judetean T16, E2
aprox.
656 m
Spitalul Judetean
aprox.
663 m
Bucla Versului
aprox.
723 m
Statie Mures E3
aprox.
829 m
Mures
aprox.
831 m
Statie Cluj T15, T16, T19, E2, E3
aprox.
842 m
Mures
aprox.
921 m
Piata Nicolae Balcescu
aprox.
931 m
Statie Maresal C-tin Prezan T15, T19
aprox.
600 m
Statie Maresal C-tin Prezan bucla T15, T19
aprox.
708 m
Statie Sudului bucla T16
aprox.
1109 m
Statie B-dul Sudului T16
aprox.
1212 m
Statie B-dul Mihai Eminescu T19
aprox.
1857 m
Cresa Nr.18
aprox.
135 m
Scoala Iris
aprox.
248 m
Liceul Teoretic Iris
aprox.
248 m
Palatul Copiilor
aprox.
267 m
Campus scolar Colegiul Tehnic Azur
aprox.
324 m
Scoala Generala nr. 25
aprox.
347 m
Scoala Gimnaziala nr. 25
aprox.
347 m
COLEGIUL TEHNIC "AZUR"
aprox.
357 m
Colegiul Tehnic Azur
aprox.
367 m
Sediul ligii islamice si culturale din timisoara
aprox.
437 m
Gradinita lui Larisa
aprox.
512 m
LICEUL "GRIGORE MOISIL"
aprox.
791 m
Corp Liceu
aprox.
791 m
Liceul Teoretic Grigore Moisil
aprox.
828 m
Sala de sport
aprox.
834 m
Gradinita nr. 32
aprox.
140 m
Gradinita nr. 12
aprox.
443 m
Gradinita Program Prelungit Nr. 12
aprox.
450 m
Gradinita nr. 11
aprox.
504 m
Gradinita Program Prelungit Nr. 11
aprox.
597 m
Gradinita Broscuta Fermecata
aprox.
609 m
Gradinita Program Prelungit Nr. 28
aprox.
676 m
Gradinita Barbie
aprox.
695 m
Gradinita particulara Chip & Dale
aprox.
737 m
Gradinita Program Normal Nr. 8
aprox.
791 m
Gradinita Program Normal Nr. 7
aprox.
803 m
Gradinita Goghita
aprox.
1042 m
Gradinita Waldorf
aprox.
1089 m
Gradinita Program Saptamanal Nr. 1
aprox.
1211 m
Gradinita Baby's Land
aprox.
1213 m
Centrul de Igiena U.M.F.
aprox.
950 m
Departamentul de Constructii Metalice si Mecanica Constructiilor
aprox.
1060 m
Catedra de Constructii Metalice (en)
aprox.
1065 m
Laboratorul de gradul I de Gerotehnică și Căi de Comunicație Terestre
aprox.
1067 m
Facultatea de Construcții și Arhitectură a Universitatii Politehnica Timisoara
aprox.
1098 m
Atelier Scolar pentru Proiectare si Cercetare
aprox.
1103 m
Facultatea de Constructii si Arhitectura
aprox.
1105 m
SPM (en)
aprox.
1180 m
Aula Magna (en)
aprox.
1190 m
Universitatea Politehnica Timisoara
aprox.
1219 m
Universitatea de Vest
aprox.
1238 m
Universitatea de Vest din Timisoara
aprox.
1249 m
Academia Romana - filiala Timisoara
aprox.
1251 m
Facultatea de Chimie Industriala si Ingineria Mediului
aprox.
1263 m
Facultatea de Mecanica
aprox.
1265 m
Profi
aprox.
519 m
Profi
aprox.
764 m
Billa
aprox.
817 m
Lidl
aprox.
872 m
Carrefour Market
aprox.
956 m
Profi
aprox.
1068 m
Carrefour Market
aprox.
1194 m
Profi City
aprox.
1278 m
Profi
aprox.
1464 m
Profi City
aprox.
1648 m
Kaufland
aprox.
1690 m
Billa
aprox.
1716 m
Profi Piata Sinaia
aprox.
1822 m
Profi City
aprox.
1845 m
Lidl
aprox.
1849 m
Parcare
aprox.
289 m
Parcare
aprox.
303 m
Parcare
aprox.
315 m
Parcare
aprox.
332 m
Parcare
aprox.
348 m
Parcare
aprox.
355 m
Parcare
aprox.
363 m
Parcare
aprox.
369 m
Parcare
aprox.
384 m
Parcare
aprox.
387 m
Parcare
aprox.
425 m
Parcare
aprox.
479 m
Parcare
aprox.
540 m
Parcare
aprox.
561 m
Parcare
aprox.
604 m
Parc
aprox.
263 m
Parcul Adolescentei/ Scuarul Elevilor
aprox.
307 m
Parcul Adolescentei
aprox.
330 m
Parc
aprox.
334 m
Piata Aron Cotrus
aprox.
340 m
Observatorul Astronomic
aprox.
371 m
Institutul Astronomic Observatorul Timisoara
aprox.
372 m
Piața Vasile Adamachi (Hunedoara)
aprox.
444 m
Piata Vasile Adamachi
aprox.
458 m
Parc
aprox.
585 m
Parcul Tineretului
aprox.
616 m
Parc
aprox.
637 m
Piata Crucii
aprox.
681 m
Piata Crucii
aprox.
683 m
Parcul Stadion
aprox.
699 m
Teren sportiv
aprox.
320 m
Teren sportiv
aprox.
346 m
Teren sportiv
aprox.
361 m
Teren sportiv
aprox.
362 m
Teren sportiv
aprox.
687 m
Teren sportiv
aprox.
758 m
Teren Tenis
aprox.
780 m
Teren Tenis
aprox.
799 m
Teren sportiv
aprox.
802 m
Teren Fotbal
aprox.
802 m
Teren sportiv
aprox.
815 m
Teren Tenis
aprox.
818 m
Teren sportiv
aprox.
835 m
Teren sportiv
aprox.
839 m
Teren sportiv
aprox.
879 m
Piata Aron Cotrus
aprox.
326 m
Piata Leonardo Da Vinci
aprox.
1445 m
Piața Maria
aprox.
1798 m
Piata Sinaia
aprox.
1825 m
Piata Victoriei
aprox.
1960 m
Neuromed
aprox.
113 m
CLINICA DE ORTODONTIE DR. OGODESCU
aprox.
595 m
Spitalul Județean (en)
aprox.
619 m
Casa Austria Hospital (en)
aprox.
724 m
Centrul Medical Profilaxia
aprox.
836 m
Cabinet Acupunctura - Dr. Claici
aprox.
842 m
Clinica Universitara de Obstetrica Ginecologie Bega
aprox.
935 m
Clinica BEGA Obstetrica Ginecologie
aprox.
939 m
Spitalul de neurospihiatrie infantila
aprox.
1176 m
Policlinica Nr. 3
aprox.
1210 m
Policlinica Studenteasca
aprox.
1547 m
Profilaxis
aprox.
1648 m
Neuromed
aprox.
1733 m
BRAUN
aprox.
1751 m
Maternitate Spital Odobescu
aprox.
1817 m
Farmacia Catena
aprox.
311 m
Farmacia Dona
aprox.
352 m
Farmacia HelpNet
aprox.
361 m
Farmacia Dona
aprox.
464 m
Farmacia Granathalma
aprox.
625 m
Sensiblu
aprox.
1066 m
Mihai Viteazul
aprox.
1139 m
Dona
aprox.
1179 m
Help Net
aprox.
1282 m
Imedas
aprox.
1806 m
Vlad
aprox.
1845 m
Sf. Maria
aprox.
1850 m
Sensiblu
aprox.
1882 m
Catena
aprox.
1968 m
Farmado
aprox.
1987 m
Restaurant Dorna
aprox.
380 m
Cantina DORNA
aprox.
393 m
Al Caminetto
aprox.
415 m
Restaurant Valahia
aprox.
486 m
Cantina La Dama (en)
aprox.
490 m
McDonalds Timisoara McDrive (en)
aprox.
605 m
McDonald's
aprox.
612 m
Hotel Reghina
aprox.
622 m
Restaurant Sabres
aprox.
775 m
La Residenza
aprox.
789 m
Sabres
aprox.
789 m
Restaurant Yugoslavia
aprox.
808 m
Il Peperoncino
aprox.
817 m
Pomo d'Oro
aprox.
828 m
Hotel Perla 3
aprox.
836 m
The 80's Pub
aprox.
700 m
Charlie's Pub
aprox.
1201 m
Vineri15
aprox.
1384 m
La Capite
aprox.
1386 m
Habitat
aprox.
1455 m
Oxford Pub & Restaurant
aprox.
1721 m
Porky's
aprox.
1729 m
Zone Cafe
aprox.
1012 m
PAGO
aprox.
1081 m
Scart Loc Lejer
aprox.
1099 m
Zanoni
aprox.
1100 m
Cafe Saloon
aprox.
1187 m
Swiss House Club
aprox.
1461 m
Atu
aprox.
1580 m
WakeUp
aprox.
1600 m
Club Fratelli
aprox.
1602 m
Manufactura
aprox.
1658 m
DUGA CLUB
aprox.
1867 m
Amore
aprox.
1894 m
Mateo Cafe
aprox.
1989 m
BiblioTech Cafe
aprox.
1306 m
Barista
aprox.
1522 m
Terasa D'Arc
aprox.
1580 m
Viniloteca
aprox.
1727 m
COPA Caffe
aprox.
1835 m
Massimo
aprox.
1944 m
Tempo
aprox.
1965 m
BCR
aprox.
305 m
Piraeus Bank
aprox.
323 m
BRD
aprox.
337 m
Banca Transilvania
aprox.
344 m
Raiffeisen Bank
aprox.
559 m
Garanti Bank
aprox.
567 m
Bancpost
aprox.
570 m
ING
aprox.
577 m
Banca Romaneasca
aprox.
579 m
Alpha Bank
aprox.
582 m
BRD
aprox.
651 m
Sucursală CEC
aprox.
655 m
CEC Bank
aprox.
659 m
UniCredit Bank
aprox.
870 m
Banca Transilvania
aprox.
946 m
Dată fiind apropierea sa de zona centrală, acest cartier este bine deservit la capitolul mijloace de transport în comun "“ astfel, locuitorii săi au la dispoziție atât tramvaie (liniile 6, 7, 8, dar și 10), cât și mai multe autobuze (printre care linia E8, care circulă pe Strada Ciprian Porumbescu). Și amatorii mersului cu bicicleta sunt avantajați, aceștia având acces la mai multe piste special amenajate, pe străzi precum Bulevardul Mihai Viteazu, Bulevardul Victor Babeș sau Strada Cluj.
Dintre unitățile de învățământ existente strict între granițele cartierului, de menționat ar fi Școala primară "Sf. Antim Ivireanul" (de pe Bulevardul Liviu Rebreanu, nr. 35), Liceul Teoretic "Grigore Moisil" (de pe Strada Ghirlandei, nr. 4), dar și Colegiul Economic "Francesco Severio Nitti" (de pe Strada Corbului, nr. 7C). Zona beneficiază, în plus, de proximitatea a două cartiere în care pot fi găsite atât licee, cât și reputate instituții de învățământ superior. În Cetate se află, astfel, Universitatea de Medicină și Farmacie "Victor Babeș" (pe Strada Eftimie Murgu, nr. 2), dar și Facultatea de Management în Producție și Transporturi (pe Strada Remus, nr. 14), în apropiere de Parcul "Carmen Sylva"). În Complex-Stadion, pe de altă parte, se găsește Universitatea de Vest, de care aparțin peste zece facultăți importante (printre care Arte și Design, Litere, Istorie și Teologie, dar și cea de Matematică și Informatică). Mai jos poți vedea în detaliu ce unități de învățământ există în Elisabetin-Odobescu:
În ceea ce privește oportunitățile de cumpărături, de precizat este că locuitorii zonei Elisabetin-Odobescu sunt deserviți, strict între granițele cartierului, de magazine de mici dimensiuni. Cu toate acestea, însă, timișorenii de aici au acces la facilitățile comerciale oferite de centrul orașului "“ de menționat aici fiind, desigur, magazinul Bega Shopping Center, situat în apropiere de Parcul Civic. Un alt avantaj al celor care locuiesc în această parte a orașului este reprezentat de proximitatea zonei Calea Șagului, în contextul în care aici pot găsi și un hipermarket "“ este vorba despre o unitate din rețeaua Kaufland, amplasată aproape de "granița" dintre cele două cartiere, mai exact pe Strada Damaschin Bojinca, nr. 4. De asemenea Mall-ul Shopping City Mall este o opțiune pentru locuitorii acestei zone.
Una dintre principalele artere de circulație din zona Elisabetin-Odobescu este Bulevardul Mihai Viteazu, care face legătura cu zona Cetate; acesteia i se adaugă Strada Ciprian Porumbescu, care ajunge și în învecinatul Șagului, dar și Bulevardul Liviu Rebreanu, la limita cu Calea Șagului și Girocului. De menționat este, desigur, și Strada Alexandru Odobescu, care dă, cel puțin în parte, și numele cartierului. Deși Elisabetin-Odobescu nu poate fi considerat un cartier prea aglomerat, cei interesați de închirierea unui loc de parcare de la autoritățile locale se pot adresa reprezentanților Primăriei (al cărei sediu se găsește în zona Cetate, mai exact pe Bulevardul Constantin Diaconovici Loga, nr. 1).
Pe lângă spațiile verzi din cartier, în Elisabetin-Odobescu se găsesc și parcuri, de menționat aici fiind Parcul "Carmen Sylva", situat aproape de granița cu zona Cetate, dar și parcul din jurul Observatorului Astronomic. Cei care locuiesc aici au acces, bineînțeles, și la multitudinea de opțiuni oferite din acest punct de vedere de centrul orașului (precum Parcul Botanic, Parcul Catedralei, Parcul Civic, Parcul "I.C. Brătianu", Parcul "Regina Maria", Parcul Rozelor, Parcul Copiilor "Ion Creangă"). Lista obiectivelor de interes cultural și turistic din zona Cetate, la care au acces timișorenii din Elisabetin-Odobescu, este completată de Muzeul Consumatorului Comunist "“ acesta își are sediul chiar în cartier, pe Strada Arhitect Laszlo Szekely, nr. 1. Nu în ultimul rând, această zonă a Timișoarei are de câștigat de pe urma proximității zonei Complex-Stadion, unde se găsește, alături de alte facilități sportive, și Stadionul "Dan Păltinișanu". Află, mai jos, ce alte opțiuni de petrecere a timpului liber mai ai în Elisabetin-Odobescu:
În ceea ce privește accesul la servicii medicale, zona Elisabetin-Odobescu este destul de bine deservită chiar de unitățile medicale existente în interiorul său. Astfel, pe Bulevardul Victor Babeș, la limita cu Complex-Stadion, se află Maternitatea Bega dar și Clinica de Oncologie Medicală. În plus, pe Strada Corbului, nr. 7, se află Clinica de Neuropsihiatrie Infantilă, ce ține de Spitalul Clinic de Urgență pentru Copii "Louis Țurcanu". Locuitorii acestei zone al capitalei Banatului au la dispoziție, pe lângă spitalele din zona centrală, și o serie de cabinete medicale particulare în propriul cartier. Aceștia se pot înscrie, astfel, la un medic de familie, dar pot beneficia și de diverse consultații specializate (dermatologie, stomatologie etc.). Pe harta de mai jos găsești localizarea exactă a spitalelor și clinicilor din zonă:
Găsim aici câteva restaurante și pizzerii, amenajate în vilele istorice ale zonei, între care Pizza La Maria, de pe strada Emanoil Gojdu, nr. 6, Restaurant Ambasador, de pe strada Mangalia nr. 3, sau restaurantul Valahia de pe strada Vadul Călugăreni, nr. 1. În cazul în care dorești un prânz business, există și opțiunea de a alege restaurantul din cadrul clădirii Nokia, care se află în vecinătate. Cu mașina, cu bicicleta, sau chiar pe jos, poți să ajungi repede în Piața Victoriei, iar dacă nici localurile de aici nu te satisfac, cu siguranță vei găsi ceva pe gustul tău mergând în Piața Sfântul Gheorghe sau Unirii. Aruncă o privire pe hartă și vezi unde vei găsi cel mai apropiat restaurant de viitoarea ta locuință.
Găsești un bancomat BRD pe Bulevardul Regele Carol, nr. 28, respectiv pe strada 16 decembrie 1989, nr. 71. O sucursala Banca Transilvania ai pe Bulevardul Regele Carol I, la nr. 36, dar și în apropierea Gării de Nord, unde se mai află și o sucursală ING Bank. Datorită proximității cu zona centrală a orașului, vei avea mai multe opțiuni să găsești și alte bancomate și sucursale bancare la care poți ajunge relativ ușor, pe jos sau cu mașina. Consultă harta și află unde sunt localizate și alte bănci sau ATM-uri în zona de care ești interesat.
Înainte să pleci...
Ești sigur că ai văzut și aceste proprietăți?
550.000 €
Timișoara, Elisabetin
7 camere
700 mp
2.030 mp teren
590.000 €
Timișoara, Elisabetin
4 camere
240 mp
523 mp teren
630.000 €
Timișoara, Elisabetin
12 camere
406 mp
694 mp teren
Creează alertă
Salvează căutarea ca să primești pe email ultimele anunțuri publicate
Case individuale cu 4+ camere de vânzare în zona Elisabetin, Timișoara
Cere detalii prin email
*
*
*
*
Detaliile tale de contact vor fi partajate cu Housr
Preț total3.029.737 RON (594.544 €)
Costuri cu achiziția23.156 RON
Preț de achiziție3.006.581 RON
Costuri cu achiziția23.156 RON
Comision agenție Întreabă agenţia
Onorariu notarial18.646 RON
Taxă înscriere OCPI4.510 RON
Preț de achiziție3.006.581 RON
Preț locuință3.006.581 RON
TVA 0%Inclus în prețul cerut
Cost total482.549 RON (94.693 €)
Avans (15%)450.987 RON
Cost achitat în prima lună4.789 RON
Costuri cu achiziția26.773 RON
Cost achitat în prima lună4.789 RON
Comision analiză dosar
400 RON - 900 RON
Taxă evaluare imobil(până la)
900 RON
Rata lunară (variabilă)13.393 RON
Asigurare anuală imobil3.007 RON
Arhivă electronică102 RON
Poliță PAD130 RON
Asigurare de viață/lună Costul este variabil. În funcție de banca aleasă, procentul variază între 0.0259% și 0.035% din soldul creditului.
Costuri cu achiziția26.773 RON
Comision agenție Întreabă agenţia
Onorariu notarial18.646 RON
Taxă întabulare OCPI4.510 RON
Autentificare contract credit3.617 RON
Preț de achiziție3.006.581 RON
Preț locuință3.006.581 RON
TVA 0%Inclus în prețul cerut
Preț de achiziție3.006.581 RON
Preț locuință3.006.581 RON
TVA 0%
Inclus în prețul cerut
Avans minim2.400.169 RON
Credit pe 30 de ani606.412 RON
Cost achitat în prima lună
Taxa evaluare imobil(până la)
900 RON
Rata lunară (variabilă)4.261 RON
Depozit colateral12.783 RON
Comision de garantare FNGCIMM251 RON
Asigurare anuală imobil3.007 RON
Poliță PAD130 RON
Tarif arhivă electronică102 RON
Costuri adiționale3.147 RON + taxe notariale
Asigurare viață și complexă (opțională)Costul este variabil. În funcție de banca aleasă, procentul variază între 0.0259% și 0.035% din soldul creditului
Onorariu notarialconform tarif notarial
Taxă întabulare OCPI3.147 RON
i
Toate valorile de mai sus sunt estimative și nu reprezintă în mod obligatoriu costurile exacte pe care le veți primi de la companiile/instituțiile prin care veți încheia tranzacția.