ImoWest Imobiliare va ofera spre vanzare direct de la proprietar, comision 0%, casa S+P+E+M construita in anul 2006, dispusa pe colt cu doua fronturi stradale pe un teren cu suprafata de 241 mp cu posibilitatea de a parca 5 masini in zona Fabric, cu acces rapid catre calea Stan Vidrighin, la 2 minute de Lidl si de complexul de magazine FunShop Buziasului, unde regasim nenumerate magazine printre care si Kaufland, KFC, etc..
Se preteaza pentru investitie avand in total: 10 camere, 3 bucatarii, 4 bai, garaj, atelier, subsol, poate fi ideala pentru sediu de firma, clinica, pensiune, inchiriere/ apartament/ camera
Casa are o suprafata utila totala de 605 mp din care: suprafata utila de 346 mp + 39 mp terase + 95 mp Subsol + 35 mp atelier + 90 mp terasa atelierului si este structurata in 3 apartamente de 3 camere, cate 1 apartament pe fiecare etaj cu intrari separate si contorizari separate.
Subsol: 95 mp compus din din 3 incaperi si coridor
Parter: 115 mp compus din: hol, living, bucatarie, 2 dormitoare + 1 camera cu baie proprie si chicineta + garaj.
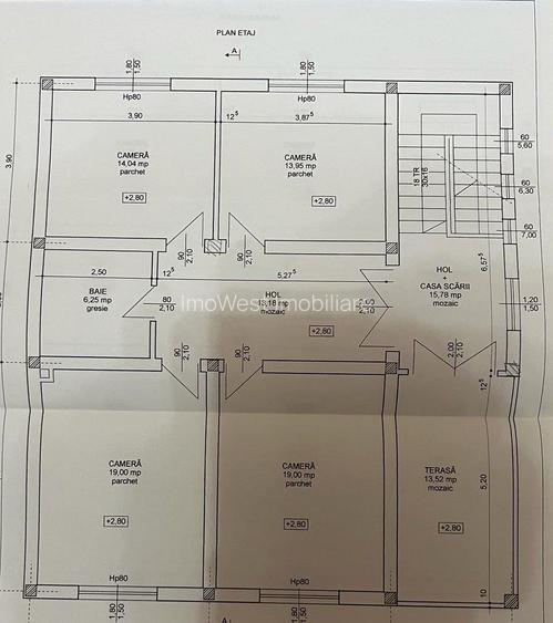
Etaj 1: 115 mp compus din: hol, living, 2 dormitoare, baie, terasa + iesire pe terasa atelierului de 90 mp
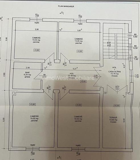
Mansarda: 115 mp compus din: hol, living, bucatarie, 2 dormitoare, baie, spatiu depozitare pe casa scarii si terasa
Dispune de:
-subsol cu suprafata de 100 mp,
-1 garaj,
-1 atelier de 35 mp cu incalzire in pardoseala
-pod de 50 mp,
-3 centrale pe gaz, cate 1/etaj
-4 clime : 1 la parter, 1 la etaj si 2 la mansarda
-placa de beton peste fiecare etaj
-acoperis din tabla + sindrila betuminoasa + izolatie de vata
-partial tamplarie pvc
Se vinde partial mobilata si utilata
Pret 350.000€
Comision 0%
Sediul central - Timișoara
Bulevardul Victor Babeș nr. 2, 300230, Timișoara, România
Tel: +40.374.40.44.98 / Fax: +40.256.401.179
Email: suport@imobiliare.ro
Luni - Vineri 08:00 - 20:00
Punct de lucru - București: Iride Business Park, Bld. Dimitrie
Pompeiu 9-9A, Clădirea B2B,
020335, Sector 2, București, România
CONTACT
Sediul central - Timișoara
Bulevardul Victor Babeș nr. 2, 300230, Timișoara, România
Tel: +40.374.40.44.98 / Fax: +40.256.401.179
Email: suport@imobiliare.ro
Luni - Vineri 08:00 - 20:00
Punct de lucru - București: Iride Business Park, Bld. Dimitrie
Pompeiu 9-9A, Clădirea B2B,
020335, Sector 2, București, România
Sună acum și cere detalii sau programează o vizionare.
Cere detalii prin email
*
*
*
*
Stații autobuz
Stații tramvai
Stații troleibuz
Gradinițe
Școli
Universități
Supermarket
Parcări
Parcuri
Terenuri sport
Piețe publice
Spital
Farmacie
Bar
Restaurant
Pub
Cafenea
Bancă
Statie Pindului A21
aprox.
95 m
Statie Torac A21
aprox.
161 m
Statie Apateu A21
aprox.
287 m
Apateu
aprox.
308 m
Autogara Normandia
aprox.
498 m
Statie Stefan cel Mare A21
aprox.
516 m
Statie Fabrica de detergenti Tv4, Tv8
aprox.
517 m
Statie Levantica A21
aprox.
565 m
Statie Caprioarei A21
aprox.
732 m
Iepurelui
aprox.
971 m
Baba Dochia
aprox.
987 m
Statie Baba Dochia E8, A21
aprox.
999 m
Statie Iepurelui E8, A21
aprox.
1003 m
Iepurelui
aprox.
1027 m
Vasile Carlova
aprox.
1054 m
Statie Banatim Tv4, Tv8
aprox.
451 m
Statie Banatim Tv5, Tv6 retur
aprox.
514 m
Banatim
aprox.
544 m
Statie Mecatim Tv4, Tv8
aprox.
931 m
Statie Abator Tv6, Tv8 si Tv5
aprox.
1003 m
Statie Spumotim Tv4, Tv8
aprox.
1228 m
Statie Sarmisegetuza Tv1, Tv2
aprox.
1272 m
Statie B-dul Sudului Tv9
aprox.
1324 m
Bulevardul Sudului
aprox.
1330 m
Bulevardul Sudului
aprox.
1360 m
Statie Piata Traian Tv1, Tv2, Tv4, Tv5
aprox.
1360 m
Statie Piata Traian Tv1, Tv2, Tv4, Tv6
aprox.
1369 m
Statie Sala Olimpia Tv 6, Tv8, Tv5
aprox.
1439 m
Statie Ghe. Domasneanu Tv4, Tv8
aprox.
1502 m
Statie 3 August 1919 Tv1, Tv2, Tv4, Tv5
aprox.
1513 m
Statie B-dul Sudului T16
aprox.
1463 m
Statie Renasterii T11
aprox.
1826 m
Statie Samuil Micu T11
aprox.
1878 m
Statie Politia Jud. Timis T11, T17
aprox.
1986 m
Gradinita Program Normal Nr. 20
aprox.
287 m
Gradinita Program Saptamanal Rudolf Walther
aprox.
1024 m
Gradinita Program Normal Nr. 5
aprox.
1107 m
Gradinita Program Prelungit Nr. 44
aprox.
1267 m
Gradinita cu program prelungit nr. 44
aprox.
1267 m
Gradinita Program Prelungit Nr. 5
aprox.
1445 m
Gradinita Program Prelungit Nr. 45
aprox.
1449 m
Gradinita Program Prelungit Nr. 53
aprox.
1505 m
Gradinita Program Prelungit Nr. 16
aprox.
1588 m
Gradinita Program Prelungit Nr. 28
aprox.
1654 m
Grădinița Program Normal Nr. 16
aprox.
1723 m
Gradinita Program Prelungit Nr. 19
aprox.
1821 m
Gradinita Program Normal Nr. 19
aprox.
1893 m
Gradinita Program Prelungit nr.38
aprox.
1914 m
Gradinita nr. 22 / Cresa nr. 7
aprox.
1940 m
Scoala Gimnaziala nr. 1
aprox.
947 m
ȘCOALA GIMNAZIALĂ NR.1
aprox.
961 m
LICEUL TEORETIC "VLAD TEPES"
aprox.
1012 m
Scoala Cu Clasele I - VIII Rudolf Walther
aprox.
1013 m
Scoala Generala nr. 5
aprox.
1143 m
Scoala Gimnaziala nr. 5
aprox.
1171 m
Centrul de Zi pentru Copii cu Dizabilitati Podul Lung
aprox.
1283 m
Liceul Teoretic William Shakespeare
aprox.
1345 m
LICEUL TEORETIC "J.L.CALDERON" TIMISOARA
aprox.
1425 m
Liceul Teoretic Jean-Louis Calderon
aprox.
1433 m
Scoala generala nr. 28
aprox.
1437 m
Scoala Generala nr. 4 - Plopi
aprox.
1566 m
Scoala gimnaziala nr. 4
aprox.
1568 m
Scoala Gimnaziala Plopi
aprox.
1583 m
COLEGIUL TEHNIC "ELECTROTIMIS"
aprox.
1642 m
Facultatea de Economie și de Administrare a Afacerilor
aprox.
1306 m
Facultatea de Economie si de Administrarea a Afacerilor
aprox.
1312 m
Universitatea Tibiscus
aprox.
1403 m
Universitatea Dimitrie Cantemir
aprox.
1643 m
Universitatea Mihai Eminescu
aprox.
1852 m
Facultatea de Chimie Industriala si Ingineria Mediului
aprox.
1986 m
Cladire a UMF Timisoara
aprox.
1999 m
Profi
aprox.
1109 m
Profi City
aprox.
1244 m
Profi
aprox.
1327 m
Lidl
aprox.
1450 m
Carrefour Market
aprox.
1477 m
Profi
aprox.
1542 m
Profi
aprox.
1587 m
Profi str. Dacilor
aprox.
1590 m
Profi City Dorobantilor
aprox.
1613 m
Profi
aprox.
1675 m
Profi City
aprox.
1683 m
Billa
aprox.
1687 m
Nova Tim
aprox.
1713 m
Carrefour Market
aprox.
1759 m
Profi
aprox.
1773 m
Parcare
aprox.
713 m
Parcare
aprox.
719 m
Parcare
aprox.
923 m
Parcare
aprox.
1052 m
Parcare Baba Dochia
aprox.
1054 m
Parcare
aprox.
1112 m
Parcare pentru clienti
aprox.
1116 m
Parcare
aprox.
1124 m
Parcare
aprox.
1170 m
Parcare
aprox.
1254 m
Parcare
aprox.
1254 m
Parcare privata
aprox.
1255 m
Parcare
aprox.
1259 m
Parcare
aprox.
1259 m
Parcare
aprox.
1296 m
Parc
aprox.
415 m
recreational park
aprox.
614 m
Rabbit's Park (en)
aprox.
889 m
Parc
aprox.
889 m
Parcul Iepurelui
aprox.
889 m
Parc
aprox.
935 m
Parc
aprox.
949 m
Parcul Karlsruhe
aprox.
1096 m
Parc
aprox.
1100 m
Piata Iosif cel Nou / Bihor
aprox.
1104 m
Parcul Constructorilor
aprox.
1122 m
Parc pentru copii (en)
aprox.
1137 m
Parc
aprox.
1137 m
Complex Heaven
aprox.
1169 m
Parc
aprox.
1177 m
Teren sportiv
aprox.
988 m
Teren sportiv
aprox.
1002 m
Teren sportiv
aprox.
1009 m
Teren sportiv
aprox.
1039 m
Teren sportiv
aprox.
1041 m
Teren sportiv
aprox.
1044 m
Teren sportiv
aprox.
1052 m
Teren sportiv
aprox.
1059 m
Teren sportiv
aprox.
1063 m
Teren Fotbal
aprox.
1116 m
Teren sportiv
aprox.
1147 m
Teren sportiv
aprox.
1156 m
Teren Sintetic Fotbal
aprox.
1185 m
Teren Fotbal
aprox.
1234 m
Teren Fotbal
aprox.
1245 m
Piata Aurel Vlaicu
aprox.
1143 m
Piata Sarmisegetuza
aprox.
1317 m
Piata Traian
aprox.
1344 m
Piata Romanilor
aprox.
1374 m
Piata Corneliu Micloși
aprox.
1543 m
Piata Leonardo Da Vinci
aprox.
1831 m
Piata General Virgil Economu
aprox.
1947 m
Policlinica Sanatatea
aprox.
731 m
Profilaxis
aprox.
869 m
Ambulatoriu Integrat Policlinica 3
aprox.
1395 m
Policlinica Studenteasca
aprox.
1520 m
Casa Austria Hospital (en)
aprox.
1669 m
Dispensar Giratoriu Buziasului. Centru de permanenta
aprox.
1713 m
Centrul Medical Profilaxia
aprox.
1750 m
Spitalul Județean (en)
aprox.
1790 m
Telescan
aprox.
1831 m
Clinica de Recuperare
aprox.
1923 m
Medici's
aprox.
1928 m
Cabinet Radiografie Dentara
aprox.
1956 m
Clinica analize medicale
aprox.
1990 m
Cabinet Dr. Iana Elena Cristina
aprox.
1997 m
Farmacie
aprox.
984 m
Farmacia Dona
aprox.
1030 m
Sensiblu
aprox.
1337 m
Dona
aprox.
1353 m
Kovacs
aprox.
1508 m
Farmacie
aprox.
1638 m
Help Net
aprox.
1660 m
Apothecaria
aprox.
1713 m
Catena
aprox.
1713 m
Help Net
aprox.
1713 m
Farmacie
aprox.
1806 m
Farmacia Dona
aprox.
1842 m
Imedas
aprox.
1849 m
Farmacia Catena
aprox.
1856 m
Orizont Club
aprox.
869 m
PAGO
aprox.
1464 m
Atu
aprox.
1613 m
WakeUp
aprox.
1624 m
Club Fratelli
aprox.
1735 m
Bar Davinci
aprox.
1805 m
Club As
aprox.
1842 m
Mateo Cafe
aprox.
1925 m
Curtea Berarilor "La Fabrică"
aprox.
1028 m
Restaurant Cactus
aprox.
1048 m
Valentina
aprox.
1157 m
Pizzeria Mamma Mia
aprox.
1171 m
Eurohotel
aprox.
1179 m
Pizza Nuova Mamma Mia
aprox.
1186 m
DaToni
aprox.
1215 m
Da Toni
aprox.
1230 m
Casa Romaneasca
aprox.
1253 m
Restaurant Chic
aprox.
1253 m
Pizzeria Da Toni - Pizza Taxi
aprox.
1290 m
Leonardo da Vinci
aprox.
1315 m
Carina
aprox.
1351 m
Restaurant Oxford Timisoara (en)
aprox.
1358 m
ROMA
aprox.
1376 m
Factory Pub
aprox.
1077 m
Porky's
aprox.
1262 m
Oxford Pub & Restaurant
aprox.
1368 m
Charlie's Pub
aprox.
1395 m
The 80's Pub
aprox.
1659 m
Barista
aprox.
1492 m
Raiffeisen Bank
aprox.
668 m
BRD
aprox.
861 m
Banca Transilvania
aprox.
1327 m
Banca Transilvania
aprox.
1343 m
BRD
aprox.
1491 m
BRD
aprox.
1614 m
BRD, sediul principal Timisoara
aprox.
1675 m
BRD
aprox.
1675 m
BCR
aprox.
1713 m
ING
aprox.
1757 m
Banca Romaneasca
aprox.
1758 m
Alpha Bank
aprox.
1759 m
Garanti Bank
aprox.
1760 m
Bancpost
aprox.
1762 m
Raiffeisen Bank
aprox.
1765 m
La capitolul mijloace de transport în comun, locuitorii acestui cartier timișorean au la dispoziție atât tramvaie (liniile 1, 2, 5, 10), cât și autobuze (liniile 21, 22 și E8). Deși amatorii de ciclism din Fabric nu beneficiază de o rețea de piste dedicate, aceștia au acces facil atât la amenajările existente în zona Cetate (dintre care cea mai apropiată ar fi pe Bulevardul Take Ionescu), în Simion Bărnuțiu-Dorobanților (pe Strada Simion Bărnuțiu) sau în Complex-Stadion (pe Bulevardul Eroilor de la Tisa sau pe Strada Johann Heinrich Pestalozzi).
Din punctul de vedere al oportunităților de educație, Fabric oferă multiple opțiuni locuitorilor săi. Astfel, dintre instituțiile de profil existente în cartier, de menționat ar fi Școala Gimnazială Nr. 1 (amplasată pe Strada Comănești, nr. 3), dar și Școala Gimnazială Nr. 6 (pe Strada Moise Nicoară), care include clase de învățământ preșcolar, primar și gimnazial. Zona este avantajată, însă, atât de proximitatea zonei centrale a orașului, unde se găsesc Universitatea de Medicină și Farmacie "Victor Babeș" și o serie de licee de prestigiu (Colegiul Tehnic "Emanuil Ungureanu", Colegiul Pedagogic "Carmen Sylva", Colegiul Național "Constantin Diaconovici Loga"), cât și de cea a cartierului Complex-Stadion, unde se află Universitatea de Vest, care include peste zece facultăți reputate (precum Arte și Design, Litere, Istorie și Teologie, dar și cea de Matematică și Informatică). Mai jos poți vedea în detaliu ce unități de învățământ există în Fabric:
La fel ca timișorenii din Crișan-Modern și din Complex-Stadion, cei din Fabric au la dispoziție, strict între granițele propriului cartier, doar magazine de mici dimensiuni, de tip supermarket; de menționat la acest capitol ar fi un magazin Profi, amplasat la limita cu zona Cetate, mai exact pe Strada Dacilor, nr. 25. Ca și în alte domenii, locuitorii acestei zone sunt avantajați de proximitatea centrului orașului, care este mult mai ofertant din acest punct de vedere. În Cetate poate fi găsit, astfel, chiar magazinul Bega Shopping Center, localizat în apropiere de Parcul Civic. Pe lângă numeroasele magazine din sfera de fashion (dar nu numai), vizitatorii săi pot găsi aici și un Carrefour Market. În Simion Bărnuțiu-Dorobanților se află și un hipermarket Kaufland (pe Strada Mihail Kogălniceanu, nr. 11-15).
În Fabric, una dintre principalele artere de circulație ar fi Strada Dacilor, care face legătura cu zona Cetate, dar și cu Simion Bărnuțiu-Dorobanților; aceasta se continuă cu Strada Ștefan cel Mare, care ajunge la limita dintre Complex-Stadion și Buziașului (după care se continuă cu Calea Stan Vidrighin). De menționat este și Strada Andrei Șaguna, care se continuă cu Calea Dorobanților în zona ce-i poartă numele. Dat fiind numărul relativ ridicat de clădiri rezidențiale multifamiliale, găsirea unui loc permanent de parcare în Fabric poate fi dificilă uneori "“ în special în vestul cartierului, în apropiere de centru. Despre închirierea unui asemenea spațiu posesorii de autovehicule pot afla mai multe la sediul Primăriei (din zona Cetate, pe Bulevardul Constantin Diaconovici Loga, nr. 1).
Pe lângă parcurile de mici dimensiuni pe care le au la dispoziție în propriul cartier, timișorenii de aici pot ajunge cu ușurință la multitudinea de parcuri existente în zona centrală a orașului, printre care se numără Parcul "Regina Maria", Parcul Rozelor, Parcul Copiilor "Ion Creangă", dar și Parcul Botanic. De asemenea, un centru de interes cu o multitudine de activități culturale și de divertisment au loc la Faber "“ o reconversie a vechii Fabrici Azur, ce schimbă cartierul într-un mod pozitiv. Un avantaj al locuitorilor săi este că în Fabric se găsesc și obiective de interes cultural și turistic, cum ar fi Palatul Nagele (de pe Strada Dacilor, nr. 10), dar și Palatul Mercur (Piața Traian, nr. 4-3). Atractive sunt, desigur, și punctele de interes din aceeași categorie amplasate în zona Cetate, cum ar fi Bastionul Maria Theresia, Palatul Dicasterial, Muzeul de Artă etc. Iubitorii de sport sin această zonă a orașului de pe Bega pot ajunge cu ușurință în Complex-Stadion, unde pot găsi mai multe facilități sportive. Astfel, în partea de sud a cartierului învecinat se găsește Stadionul "Dan Păltinișanu", alături de o serie de terenuri de sport ce aparțin Bazei Sportive Politehnica Nr. 2, dar și de două ștranduri publice. Află, mai jos, ce alte opțiuni de petrecere a timpului liber mai ai în Fabric:
În special datorită vecinătăților sale, locuitorii zonei Fabric se pot considera bine deserviți când vine vorba de sănătate. Astfel, pe lângă cabinetele medicale individuale la care au acces în propriul cartier, aceștia pot ajunge cu ușurință și la spitalele din centrul orașului (Spitalul Clinic Municipal de Urgență Timișoara, Spitalul Militar de Urgență "Dr. Victor Popescu", Spitalul Clinic de Urgență pentru Copii "Louis Țurcanu"). De asemenea, în Simion Bărnuțiu-Dorobanților se află alte două spitale de stat, anume Institutul de Boli Cardiovasculare Timișoara (pe Strada Gheorghe Adam, nr. 13A) și, respectiv, Spitalul Clinic de Boli Infecțioase și Pneumoftiziologie "Dr. Victor Babeș" (pe Strada Gheorghe Adam, nr. 13). La capitolul servicii medicale particulare, de menționat este faptul că în Complex-Stadion se găsește și o clinică din rețeaua Medlife, situată pe Bulevardul Eroilor de la Tisa, nr. 28. De asemenea, în Crișan-Modern se află o unitate medicală privată de dimensiuni mai mari, specializată în tratamente destinate exclusiv copiilor, anume Centrul "Dr. Bacos Cosma" (de pe Strada Frederic Mistral, nr. 22). Pe harta de mai jos găsești localizarea exactă a spitalelor și clinicilor din zonă:
Pe lângă fast food-uri, localuri și pizzerii de cartier, găsim aici restaurante, pizzerii și cafenele la granița cu cartierele învecinate. Între acestea amintim: restaurantul din cadrul Hotelului Vanilla (de pe Bulevardul Eroilor de la Tisa nr. 57), Dinar Restaurant (de pe strada Barbu Iscovescu nr 2) și Restaurantul Merlot (Splaiul Nistrului 1). Cu mașina, cu bicicleta, sau chiar pe jos, poți să ajungi repede în Piața Victoriei, în Piața Sfântul Gheorghe sau Unirii. Aruncă o privire pe hartă și vezi unde vei găsi cel mai apropiat restaurant de viitoarea ta locuință.
În acest cartier găsești un bancomat BRD pe strada Timocului, nr. 2. Totuși, mai multe bancomate și sucursale bancare găsești în zonele învecinate. Consultă harta și află unde sunt localizate și alte bănci sau ATM-uri în zona de care ești interesat.
Înainte să pleci...
Ești sigur că ai văzut și aceste proprietăți?
494.990 €
Timișoara, Brâncoveanu
12 camere
444 mp
520 mp teren
389.000 €
Timișoara, Complex Studențesc
2 camere
187 mp
671 mp teren
494.990 €
Timișoara, Brâncoveanu
12 camere
444 mp
520 mp teren
398.000 €
Timișoara, Lunei
10 camere
333 mp
410 mp teren
289.000 €
Timișoara, Iosefin
7 camere
170 mp
426 mp teren
305.000 €
Timișoara, Plopi
5 camere
191 mp
440 mp teren
Creează alertă
Salvează căutarea ca să primești pe email ultimele anunțuri publicate
Case individuale cu 4+ camere de vânzare în zona Fabric, Timișoara
Cere detalii prin email
*
*
*
*
Detaliile tale de contact vor fi partajate cu Imowest Imobiliare
Preț total1.797.918 RON (352.927 €)
Costuri cu achiziția14.914 RON
Preț de achiziție1.783.004 RON
Costuri cu achiziția14.914 RON
Comision agenție Întreabă agenţia
Onorariu notarial12.239 RON
Taxă înscriere OCPI2.675 RON
Preț de achiziție1.783.004 RON
Preț locuință1.783.004 RON
TVA 0%Inclus în prețul cerut
Cost total288.528 RON (56.637 €)
Avans (15%)267.451 RON
Cost achitat în prima lună3.565 RON
Costuri cu achiziția17.512 RON
Cost achitat în prima lună3.565 RON
Comision analiză dosar
400 RON - 900 RON
Taxă evaluare imobil(până la)
900 RON
Rata lunară (variabilă)7.942 RON
Asigurare anuală imobil1.783 RON
Arhivă electronică102 RON
Poliță PAD130 RON
Asigurare de viață/lună Costul este variabil. În funcție de banca aleasă, procentul variază între 0.0259% și 0.035% din soldul creditului.
Costuri cu achiziția17.512 RON
Comision agenție Întreabă agenţia
Onorariu notarial12.239 RON
Taxă întabulare OCPI2.675 RON
Autentificare contract credit2.598 RON
Preț de achiziție1.783.004 RON
Preț locuință1.783.004 RON
TVA 0%Inclus în prețul cerut
Preț de achiziție1.783.004 RON
Preț locuință1.783.004 RON
TVA 0%
Inclus în prețul cerut
Avans minim1.176.783 RON
Credit pe 30 de ani606.222 RON
Cost achitat în prima lună
Taxa evaluare imobil(până la)
900 RON
Rata lunară (variabilă)4.260 RON
Depozit colateral12.780 RON
Comision de garantare FNGCIMM149 RON
Asigurare anuală imobil1.783 RON
Poliță PAD130 RON
Tarif arhivă electronică102 RON
Costuri adiționale1.923 RON + taxe notariale
Asigurare viață și complexă (opțională)Costul este variabil. În funcție de banca aleasă, procentul variază între 0.0259% și 0.035% din soldul creditului
Onorariu notarialconform tarif notarial
Taxă întabulare OCPI1.923 RON
i
Toate valorile de mai sus sunt estimative și nu reprezintă în mod obligatoriu costurile exacte pe care le veți primi de la companiile/instituțiile prin care veți încheia tranzacția.