2

Imobil in zona Bucovina -pretabil sediu firma/clinica/etc

445.000 €

Torontalului, Timișoara

Nr. cam.:
10
Sup. utilă:
298,7 mp
Sup. teren:
807 mp
Tip prop.:
Individuală
  • • Locație aproximativă

Descriere casă

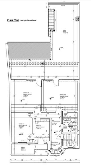
Imobilul are destinatia actuala de birouri, este situat in zona Torontalului/ Matei Basarab, intr-o zona usor accesibila a orasului. Constructia are regim de inaltime P+E, suprafata desfasurata de 471mp si suprafata utila de 298.7mp plus terase in suprafata de 85mp si teren de 807mp suprafata masurata, cu frontul stradal de 11,21mp.. Imobilul este pretabil pentru diverse activitati: birouri, sediu firma, locuinta, centru spa, clinica si cabinete medicale, gradinita, after school, etc. Compartimentare: PARTER - S utila= 190,43mp - hol acces, zona receptie, casa scarii, 6 birouri, un grup sanitar, hol, bucatarie, spatiu tehnic ETAJ - S utila= 108,27mp - hol de nivel, chicineta, 4 birouri, terasa, balcon si grup sanitar. Link tur virtual: https:// /e8e11852-b962-43ea-8654-fe4e15bc58d5
Citește mai mult Citește mai puțin
Grădină Aer condiționat Calorifere Centrală proprie 4 Parcări

Detalii casă

ID anunț: X47N11167 Copiat! 240334026 Copiat!
Actualizat în: 19 Aprilie 2026
Suprafață desfășurată: 471 mp
Nr. bucătării: 1
Nr. băi: 2
Nr. balcoane / Terase / Logii: 1
Nr. terase: 1
Suprafață terase: 84.99 mp
Front stradal: 11.2 m
Învelitoare acoperiș: Țiglă
An construcție: 2004 (Finalizată)
Structură rezistență: Cărămidă
Regim înălțime: P+1E

Utilități

Destinație
Birouri Comercial Rezidențial
Pereți
Faianță Vopsea lavabilă
Podele
Gresie
Ușă intrare
PVC
Uși interior
Lemn
Izolații termice
Exterior
Ferestre cu geam termopan
PVC
Contorizare
Apometre Contor gaz
Facilități imobil
Acoperiș
Utilități
Curent Apă Canalizare CATV Gaze Telefon
Internet
Cablu
Amenajare străzi
Iluminat stradal Mijloace de transport în comun Asfaltate
Comision
standard

Disponibilitate proprietate:

Imediat

Puncte de interes

Mijloace transport
trolleybus-station
Statie Miresei E6
Stații troleibuz aprox. 41 m
bus-station
Miresei
Stații autobuz aprox. 46 m
tram-station
Torontalului
Stații tramvai aprox. 141 m
train-station
Gara de Est
Stații tren aprox. 1821 m
Școală
kindergarten
Gradinita nr. 27
Gradinițe aprox. 119 m
kindergarten
Gradinita Program Prelungit Nr. 27
Gradinițe aprox. 124 m
school
Scoala Gimnaziala nr. 24
Școli aprox. 289 m
university
Facultatea de Arte Plastice
Universități aprox. 1170 m
Recreere
park
Parc
Parcuri aprox. 46 m
supermarket
Lidl Miresei
Supermarket aprox. 53 m
sports-ground
Teren sportiv
Terenuri sport aprox. 364 m
mall
Kappa Centrul Comercial
Mall aprox. 922 m

Detalii despre preț și costuri

Costuri cu achiziția

Fără credit
Credit ipotecar
Noua casă

i

Costuri adiționale mai puțin știute la achiziție: taxe notariale, comisioane etc.

Insight premium disponibil după login

Proprietăți recomandate

Detalii de contact

Sodolescu Imobiliare si Constructii Srl

Miriana Ionescu Consultant Imobiliar

Sodolescu Imobiliare si Constructii Srl
PRO

Abonează-te la newsletter să fii primul care primește cele mai noi recomandări de proprietăți și sfaturi de la experți.

Feedback apel

CONTACT

Creează alertă

Salvează căutarea ca să primești pe email ultimele anunțuri publicate

Case individuale cu 4+ camere de vânzare în zona Torontalului, Timișoara