Proiect nou! Duplex de vanzare, 5 camere, Buna Ziua

570.000 €

Bună Ziua, Cluj-Napoca

Nr. cam.:
5
Sup. utilă:
176 mp
Sup. teren:
272 mp
Tip prop.:
Duplex
  • • Comision 0%
  • • Exclusivitate
  • • Locație exactă

Descriere casă

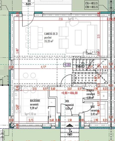
REMS Imobiliare va propune spre vanzare, in reprezentare exclusiva si comision 0% de la cumparator, un duplex amplasat in cartierul Buna Ziua, pe o alee privata, cu acces restrictionat, exclusiv pentru riverani. Casa este realizata pe o parcela de 272 mp, are suprafata utila de 176 mp si este desfasurata pe 3 nivele: - la parter regasim un hol la intrare cu spatiu de depozitare, bucataria deschisa cu camera de zi, baie si accesul pe terasa. - la etaj sunt 3 dormitoare, din care unul cu baie proprie si o a doua baie care deserveste celelalte doua dormitoare; - la mansarda este un open space, cu spatiu vitrat mare, foarte util pentru a fi amenajat ca birou, camera de oaspeti, camera de joaca, etc. Predarea imobilului se va realiza la stadiul semifinisat la interior, cu peretii tencuiti si gletuiti, usa intrare antiefractie, tamplaria PVC cu geam termopan, centrala termica proprie, sistem de incalzire prin pardoseala, utilitati pe pozitie. La exterior casa se va preda finisata la cheie. Cladirea este construita la standarde NZEB, pentru o eficienta maxima, incalzirea se face cu pompa de caldura suplimentata de centrala termica pe gaz. Pentru detalii suplimentare si pentru programarea unei vizionari nu ezitati sa ne contactati.
Citește mai mult Citește mai puțin
Grădină Curte Centrală proprie Încălzire prin pardoseală 2 Parcări 2 Parcări / Garaje / Parcări subterane

Detalii casă

ID anunț: X4V31101S Copiat! 275309748 Copiat!
Actualizat în: 18 Martie 2026
Suprafață construită: 205 mp
Nr. bucătării: 1
Nr. băi: 3
Front stradal: 15 m
An construcție: 2026 (Finalizată)
Structură rezistență: Beton
Regim înălțime: P+1E+M

Utilități

Utilități
Curent Apă Canalizare Gaze
Ușă intrare
PVC
Izolații termice
Exterior
Ferestre cu geam termopan
PVC
Diverse
Scară interioară
Amenajare străzi
Asfaltate Iluminat stradal Mijloace de transport în comun

Disponibilitate proprietate:

imediat

Puncte de interes

Mijloace transport
bus-station
Stație Alverna, liniile 32, 32B (ultima stație)
Stații autobuz aprox. 323 m
bus-station
Alverna Vest
Stații autobuz aprox. 350 m
bus-station
Alverna Est
Stații autobuz aprox. 363 m
bus-station
Statia Becas, Linia 21
Stații autobuz aprox. 401 m
Școală
university
Casa Agronomului (en)
Universități aprox. 99 m
kindergarten
Gradinita Poenita
Gradinițe aprox. 222 m
school
Gradinița Bethania
Școli aprox. 580 m
university
Cladirea Observator a Universitatii Tehnice din Cluj-Napoca
Universități aprox. 1516 m
Recreere
sports-ground
Teren sportiv
Terenuri sport aprox. 392 m
park
Parc
Parcuri aprox. 403 m
supermarket
Carrefour
Supermarket aprox. 483 m
pub
Ancuta
Pub aprox. 580 m

Detalii despre preț și costuri

Costuri cu achiziția

Fără credit
22.469 RON
Credit ipotecar
26.001 RON
Noua casă
3.045 RON+ taxe notariale

i

Costuri adiționale mai puțin știute la achiziție: taxe notariale, comisioane etc.

Proprietăți similare

Duplex cu 5 camere decomandat în Bună Ziua
545.000 €
Cluj-Napoca, Bună Ziua
5 camere
160 mp
200 mp teren
Duplex cu 4 camere în Bună Ziua
595.000 €
Cluj-Napoca, Bună Ziua
4 camere
130 mp
500 mp teren
Duplex cu 4 camere în Bună Ziua
579.000 €
Cluj-Napoca, Bună Ziua
4 camere
136 mp
118 mp teren

Detalii de contact

REMS imobiliare

Claudiu Truta Senior broker

REMS imobiliare
PRO

Abonează-te la newsletter să fii primul care primește cele mai noi recomandări de proprietăți și sfaturi de la experți.

CONTACT

Creează alertă

Salvează căutarea ca să primești pe email ultimele anunțuri publicate

Duplexuri cu 4+ camere de vânzare în zona Bună Ziua, Cluj-Napoca