Duplex cu 4 camere de vanzare in Timisoara, zona Lipovei
Descopera noul proiect de duplexuri moderne din zona de nord a orasului.
FOXFORT propune spre vanzare acest ansamblu de duplexuri insiruite, construite in 2025, care iti ofera oportunitatea perfecta de a-ti crea locuinta de vis, asa cum iti doresti. Cu un design modern si spatii generoase, ai posibilitatea de a achizitiona locuinta la stadiul de gri, avand libertatea de a alege finisajele care sa reflecte stilul tau propriu. Este vorba despre o casa tip duplex insiruit, cu un regim de inaltime Parter + Etaj + Mansarda, care are 4 camere, 2 bai, balcon, terasa, o suprafata utila de 118,68 mp si teren in suprafata de 186 mp. Structura este din beton, zidarie din caramida Porotherm, pereti de compartimentare din caramida de 15 cm, izolatie exterioara cu polistiren expandat de 15 cm. Imobilul dispune de urmatoarele utilitati: curent electric, apa, canalizare, gaz, CATV, telefon, acces internet, fibra optica. Terasa are suprafata de 12 mp. Lungimea frontului stradal este de 8 ml.
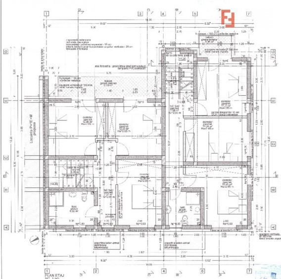
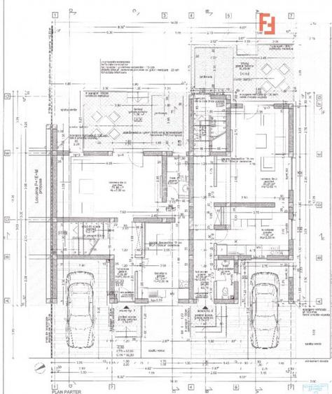
Compartimentare:
Parter: hol, living, baie, bucatarie, terasa;
Etaj: hol, 3 dormitoare, baie, balcon;
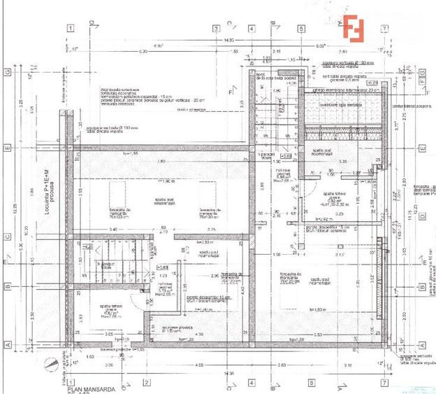
Mansarda: camera tehnica + spatiu neamenajat.
Finisaje interioare moderne:
Usa de la intrare: PVC;
Tamplarie: PVC, geam tripan cu strat termoizolant;
Podele: nefinisate.
Duplexul se preda la stadiul de gri: fara glet/lavabil, fara usi interioare, fara prize/intrerupatoare, fara obiecte sanitare, fara gresie/parchet. Se va preda cu instalatiile facute, 3 aparate de aer conditionat (AC) nemontate, cablare pentru sistem de monitorizare video si sistem de alarma, plus 1 loc de parcare.
Imobilul dispune de centrala proprie cu incalzire prin pardoseala.
Mansarda nu este inclusa in suprafata utila si se va preda la stadiul de gri, la pretul suplimentar de 15.000€.
Pret: 255.162€ – COMISION 0%.
Se accepta plata doar din surse proprii.
Daca visezi la o locuinta personalizata intr-o zona de top, acest proiect este alegerea ideala. Contacteaza-ne pentru mai multe detalii si programeaza o vizionare chiar astazi.
ID intern: V8133
Sediul central - Timișoara
Bulevardul Victor Babeș nr. 2, 300230, Timișoara, România
Tel: +40.374.40.44.98 / Fax: +40.256.401.179
Email: suport@imobiliare.ro
Luni - Vineri 08:00 - 20:00
Punct de lucru - București: Iride Business Park, Bld. Dimitrie
Pompeiu 9-9A, Clădirea B2B,
020335, Sector 2, București, România
CONTACT
Sediul central - Timișoara
Bulevardul Victor Babeș nr. 2, 300230, Timișoara, România
Tel: +40.374.40.44.98 / Fax: +40.256.401.179
Email: suport@imobiliare.ro
Luni - Vineri 08:00 - 20:00
Punct de lucru - București: Iride Business Park, Bld. Dimitrie
Pompeiu 9-9A, Clădirea B2B,
020335, Sector 2, București, România
Universitatea de Stiinte Agricole si Medicina Veterinara a Banatului
aprox.
467 m
Universitatea de Stiinte Agricole si Medicina Veterinara a Banatului, Timisoara
aprox.
634 m
Grup Scolar Agricol "Iulian Dracea" Timisoara
aprox.
471 m
Grup Scolar Agricol Iulian Dracea
aprox.
482 m
Facultatea de Agronomie
aprox.
508 m
Scoala Generala Nr. 7 "Sfanta Maria"
aprox.
1403 m
Scoala Gimnaziala nr. 7 Sfanta Maria
aprox.
1403 m
Scoala Generala 26
aprox.
1434 m
Scoala Gimnaziala nr. 26
aprox.
1445 m
Scoala Gimnaziala nr. 24
aprox.
1502 m
Scoala Generala 24
aprox.
1510 m
Scoala Generala Nr. 18
aprox.
1660 m
Scoala Gimnaziala nr. 18
aprox.
1680 m
SCOALA GIMNAZIALĂ NR.19 "AVRAM IANCU"
aprox.
1838 m
Clubul Sportiv Scolar Bega
aprox.
1854 m
Scoala Gimnaziala nr. 19 Avram Iancu
aprox.
1990 m
Sc.Gen.nr.19 "Avram Iancu"
aprox.
1994 m
Kids Club Allegria
aprox.
628 m
Gradinita Program Prelungit Nr. 37
aprox.
691 m
Gradinita Program Prelungit Nr. 27
aprox.
1293 m
Gradinita nr. 27
aprox.
1294 m
Gradinita Samariteanul Nr. 13
aprox.
1314 m
Gradinita cu program prelungit nr. 20
aprox.
1323 m
Gradinita Program Prelungit Nr. 20
aprox.
1366 m
Gradinita Program Normal Nr. 3
aprox.
1424 m
Gradinita Smart
aprox.
1580 m
Gradinita Winnie The Pooh
aprox.
1604 m
Gradinita Program Prelungit Nr. 36
aprox.
1700 m
Gradinita nr. 36
aprox.
1709 m
Gradinita Bambi
aprox.
1757 m
Gradinita nr. 26
aprox.
1835 m
Grădinița nr. 26 Timișoara
aprox.
1836 m
Penny market
aprox.
211 m
Penny Market
aprox.
352 m
Mini-Market
aprox.
505 m
Auchan
aprox.
780 m
Selgros
aprox.
1014 m
Profi City
aprox.
1210 m
Lidl Miresei
aprox.
1226 m
Etti
aprox.
1227 m
Profi City
aprox.
1229 m
Lidl
aprox.
1231 m
Auchan
aprox.
1516 m
Carrefour Market
aprox.
1532 m
Iulius Mall
aprox.
1591 m
Galeria 1
aprox.
1617 m
Kapa Shopping Center
aprox.
1640 m
Decathlon
aprox.
1004 m
Kappa Centrul Comercial
aprox.
1640 m
Parcare
aprox.
157 m
Parcare
aprox.
197 m
Parcare
aprox.
331 m
Parcare
aprox.
382 m
Parcare
aprox.
410 m
Parcare
aprox.
430 m
Parcare privata
aprox.
488 m
Parcare
aprox.
496 m
Parcare
aprox.
522 m
Parcare privata
aprox.
523 m
Parcare privata
aprox.
554 m
Parcare
aprox.
568 m
Parcare
aprox.
593 m
Parcare
aprox.
595 m
Parcare
aprox.
597 m
Parc de joaca copii
aprox.
290 m
Parc
aprox.
306 m
Parc
aprox.
392 m
Parc
aprox.
454 m
Parc
aprox.
538 m
Parc
aprox.
559 m
Parc
aprox.
573 m
Parc
aprox.
589 m
Parc de joaca copii
aprox.
590 m
Parc
aprox.
590 m
Parc de joaca copii
aprox.
952 m
Parc
aprox.
971 m
Parcul Matei Basarab
aprox.
1059 m
Parcul din zona Matei Basarab
aprox.
1060 m
Parc
aprox.
1098 m
Teren sportiv
aprox.
323 m
Teren sportiv
aprox.
539 m
Teren sportiv
aprox.
552 m
Teren sportiv
aprox.
563 m
Teren sportiv
aprox.
1034 m
Teren sportiv
aprox.
1189 m
Teren sportiv
aprox.
1216 m
Teren sportiv
aprox.
1356 m
Teren sportiv
aprox.
1396 m
Teren sportiv
aprox.
1411 m
Teren sportiv
aprox.
1422 m
Teren sportiv
aprox.
1434 m
Teren Minifotbal
aprox.
1580 m
Teren Tenis
aprox.
1593 m
Teren Tenis
aprox.
1602 m
Sensiblu
aprox.
572 m
Sensiblu
aprox.
976 m
Farmacie
aprox.
1130 m
Dona
aprox.
1257 m
Vlavar Med
aprox.
1383 m
Dona
aprox.
1510 m
Catena
aprox.
1543 m
Richter
aprox.
1566 m
Helpnet
aprox.
1611 m
Dacia
aprox.
1615 m
Farmacia Dacia
aprox.
1700 m
Farmacia Dona
aprox.
1894 m
Farmacia Richter
aprox.
1900 m
Municipal Hospital (under construction) (en)
aprox.
799 m
BioClinica (en)
aprox.
1428 m
Medicover
aprox.
1542 m
Sal-Vet
aprox.
1613 m
Cabinet Dr. Giurgiu Daniela
aprox.
1613 m
Centrul Medical DALMED
aprox.
1665 m
Policlinica Garleanu (en)
aprox.
1709 m
CABINETUL MEDICAL "BUNA VESTIRE"
aprox.
1810 m
Old House
aprox.
444 m
Club Bordeaux
aprox.
1253 m
Pizzeria Very Italian Pizza
aprox.
476 m
Filiberto Ristorante e Pizzeria
aprox.
484 m
NEON
aprox.
489 m
Restaurant Zorile
aprox.
525 m
Iris
aprox.
571 m
Pizzeria Rebecca
aprox.
600 m
Fornetti
aprox.
628 m
Franceasca
aprox.
701 m
Restaurant Tinecz
aprox.
934 m
Pizzeria Al Pacino
aprox.
939 m
Pizzeria Amedeea
aprox.
1060 m
Pizzaiolo
aprox.
1064 m
Pizzeria Giovanna
aprox.
1151 m
Giovana
aprox.
1151 m
Restaurant Chinezesc Song Du
aprox.
1223 m
Lounge Cafe Dielli
aprox.
563 m
Starbucks
aprox.
1572 m
Millenium Cafe
aprox.
1639 m
Capsali
aprox.
1756 m
Raiffeisen Bank
aprox.
246 m
BRD
aprox.
563 m
Banca Transilvania
aprox.
577 m
ING
aprox.
586 m
Alpha Bank
aprox.
595 m
Piraeus Bank
aprox.
605 m
Raiffeisen Bank
aprox.
618 m
BCR
aprox.
750 m
BCR
aprox.
942 m
Raiffeisen Bank
aprox.
1002 m
Alpha Bank
aprox.
1159 m
Raiffeisen Bank
aprox.
1160 m
UniCredit Bank
aprox.
1162 m
BRD
aprox.
1165 m
UniCredit Bank
aprox.
1227 m
În ceea ce privește rețeaua de transport în comun, de menționat ar fi linia de autobuz 40, care face legătura cu centrul orașului, dar și linia autobuzului de tip expres 2, care ajunge și în Aradului, străbătând capitala Banatului de la nord la sud. Pasionații de ciclism nu au la dispoziție o rețea compactă de piste amenajate (așa ceva există, totuși, pe Calea Sever Bocu), dar pot folosi și traseele destinate șoferilor (sau chiar pietonilor).
În ceea ce privește învățământul preșcolar, de menționat ar fi, totuși, grădinițele "Giminni" (de pe Strada Carol Davila) și "Buburuza Veselă" (de pe Strada Ion Roată), precum și Școala Gimnazială Nr. 7 "Sfânta Maria" (de pe Strada Ion Ionescu de la Brad). La capitolul învățământ superior, Lipovei nu oferă, practic, oportunități pentru cei care ar dori să studieze în cartier; zona beneficiază, însă, de vecinătatea cu Aradului, unde se găsește o importantă instituție de învățământ superior, anume Universitatea de Științe Agricole și Medicină Veterinară a Banatului (de care ține Facultatea de Medicină Veterinară, dar și Facultatea de Tehnologia Produselor Alimentare). Mai jos poți vedea în detaliu ce unități de învățământ există în Lipovei:
Lipovei este, cu siguranță, unul dintre cartierele timișorene cel mai bine reprezentate în ceea ce privește oportunitățile de cumpărături. Astfel, pe lângă magazinele "de cartier" de care dispune acesta (printre care se numără și un Profi City), un avantaj deosebit este dat de faptul că în extrema sa sudică s-a constituit, în timp, o zonă comercială în toată puterea cuvântului. Astfel, în arealul format de străzile Divizia 9 Cavalerie și Aristide Demetriade pot fi găsite multiple destinații de cumpărături, printre care se numără două magazine de bricolaj (Praktiker și Dedeman), dar și Iulius Mall. Acest din urmă centru comercial, având o vechime de peste zece ani, include, în afară de numeroasele magazine din sfera de fashion (dar nu numai), și un hipermarket Auchan.
Ca și posesorii de autovehicule din celelalte cartiere timișorene, cei din Lipovei se pot interesa la sediul central al Primăriei orașului (de pe Bulevardul Constantin Diaconovici Loga, nr. 1) cu privire la procedura de închiriere a unui loc de parcare de la autoritățile locale.
La fel ca timișorenii din Aradului, cei din Lipovei au la dispoziție câteva locuri de joacă pentru copii, însă nu prea au opțiuni în materie de parcuri propriu-zise (Parcul Silistra și Parcul Strada Constructorilor fiind exemple aflate oarecum la limită) "“ asta în ciuda faptului că în această subdiviziune a orașului există ample zone verzi pretabile pentru asemenea amenajări. Acest dezavantaj este contrabalansat, pe de o parte, de proximitatea pădurii din nordul cartierului, care constituie o interesantă oportunitate de relaxare, cel puțin pe timp de weekend. Pe de altă parte, locuitorii acestei zone pot ajunge cu relativă ușurință în zona Cetate, unde, foarte aproape de "granița" cu Lipovei, se găsește Grădina Botanică a orașului de pe Bega. Află, mai jos, ce alte opțiuni de petrecere a timpului liber mai ai în Lipovei:
Comparativ cu învecinatul Aradului, cartierul Lipovei este ceva mai slab reprezentat când vine vorba de servicii medicale. Și locuitorii acestei zone a capitalei Banatului au acces, desigur, la o serie de cabinete medicale private "de cartier", cu diverse specializări. Singurul centru medical de mai mari dimensiuni din cartier este însă Policlinica "Regina Maria", din cadrul centrului comercial Iulius Mall; ocupând o suprafață de 1.100 de metri pătrați, aceasta oferă acces la peste 20 de specialități medicale, pentru adulți, dar și pentru copii. De precizat este că, deși nici în Lipovei nu se găsește niciun spital de stat, locuitorii cartierului au de câștigat de pe urma proximității zonei centrale a orașului, unde se află mai multe asemenea instituții de profil (printre acestea numărându-se și Spitalul Militar de Urgență "Dr. Victor Popescu").
În cazul în care îți plac preparatele cu specific pescăresc, în acest cartier vei găsi unul dintre resturantele renumite pentru meniul variat pe care îl oferă. Astfel, mergând pe Calea Sever Bocu, nr. 74, vei găsi restaurantul Pescada. De asemenea, o serie de fast-food-uri și restaurante, dacă te vei îndrepta spre zona comercială - Galeria 1. În apropierea ta se află Mall-ul Iulius Mall și Iulius Town, unde, cu siguranță ai posibiliatea să găsești ceva pe gustul tău. Aruncă o privire pe hartă și vezi unde vei găsi cel mai apropiat restaurant de viitoarea ta locuință.
În cazul în care vei locui în acest cartier, te afli într-o zonă cu multiple variante în ceea ce privește sucursalele bancare și ATM-uri. Vei găsi un bancomat de OTP Bank (pe str. Sf. Apostol Petru și Pavel, nr. 13), iar pe Calea Sever Bocu ai trei variante: un bancomat de Raiffeisen Bank, unul de BRD și o sucursală Alpha Bank. Deplasându-te spre magazinul Dedeman vei găsi un bancomat BCR (Str. Divizie 9 Cavalerie, nr. 66). Ai șansa să găsești și mai multe bancomate și sucursale la Iulius Mall - centru comercial care se află în apropiere. Consultă harta și află unde sunt localizate și alte bănci sau ATM-uri în zona de care ești interesat:
Înainte să pleci...
Ești sigur că ai văzut și aceste proprietăți?
291.000 €
Timișoara, Lipovei
6 camere
118 mp
186 mp teren
272.964 €
Timișoara, Lipovei
4 camere
118,68 mp
186 mp teren
340.000 €
Timișoara, Lipovei
4 camere
144 mp
311 mp teren
284.999 €
Timișoara, Lipovei
5 camere
150 mp
380 mp teren
319.990 €
Timișoara, Lipovei
5 camere
158 mp
283 mp teren
320.000 €
Timișoara, Aradului
4 camere
126 mp
284 mp teren
Creează alertă
Salvează căutarea ca să primești pe email ultimele anunțuri publicate
Duplexuri cu 4+ camere de vânzare în zona Lipovei, Timișoara
Cere detalii prin email
*
*
*
*
Detaliile tale de contact vor fi partajate cu Foxfort
Preț total1.311.479 RON (257.450 €)
Costuri cu achiziția11.659 RON
Preț de achiziție1.299.820 RON
Costuri cu achiziția11.659 RON
Comision agenție Întreabă agenţia
Onorariu notarial9.709 RON
Taxă înscriere OCPI1.950 RON
Preț de achiziție1.299.820 RON
Preț locuință1.299.820 RON
TVA 0%Inclus în prețul cerut
Cost total211.909 RON (41.598 €)
Avans (15%)194.973 RON
Cost achitat în prima lună3.082 RON
Costuri cu achiziția13.854 RON
Cost achitat în prima lună3.082 RON
Comision analiză dosar
400 RON - 900 RON
Taxă evaluare imobil(până la)
900 RON
Rata lunară (variabilă)5.790 RON
Asigurare anuală imobil1.300 RON
Arhivă electronică102 RON
Poliță PAD130 RON
Asigurare de viață/lună Costul este variabil. În funcție de banca aleasă, procentul variază între 0.0259% și 0.035% din soldul creditului.
Costuri cu achiziția13.854 RON
Comision agenție Întreabă agenţia
Onorariu notarial9.709 RON
Taxă întabulare OCPI1.950 RON
Autentificare contract credit2.195 RON
Preț de achiziție1.299.820 RON
Preț locuință1.299.820 RON
TVA 0%Inclus în prețul cerut
Preț de achiziție1.299.820 RON
Preț locuință1.299.820 RON
TVA 0%
Inclus în prețul cerut
Avans minim693.623 RON
Credit pe 30 de ani606.198 RON
Cost achitat în prima lună
Taxa evaluare imobil(până la)
900 RON
Rata lunară (variabilă)4.259 RON
Depozit colateral12.777 RON
Comision de garantare FNGCIMM108 RON
Asigurare anuală imobil1.300 RON
Poliță PAD130 RON
Tarif arhivă electronică102 RON
Costuri adiționale1.440 RON + taxe notariale
Asigurare viață și complexă (opțională)Costul este variabil. În funcție de banca aleasă, procentul variază între 0.0259% și 0.035% din soldul creditului
Onorariu notarialconform tarif notarial
Taxă întabulare OCPI1.440 RON
i
Toate valorile de mai sus sunt estimative și nu reprezintă în mod obligatoriu costurile exacte pe care le veți primi de la companiile/instituțiile prin care veți încheia tranzacția.