9

Duplex 4 camere 372 mp - ONE Herastrau Towers

1.999.990 € + TVA

Herăstrău, București

Nr. cam.:
4
Sup. utilă:
301,21 mp
Etaj:
11 / 12
An constr.:
2021 (Finalizată)
  • • Locație exactă

Descriere apartament

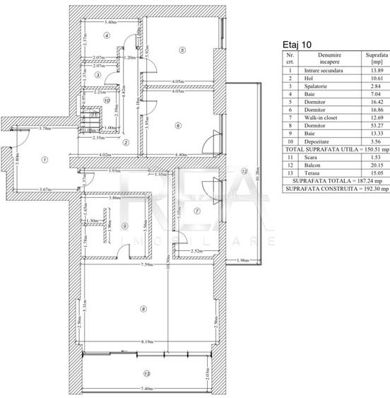
R.E.A. Imobiliare Duplex 4 camere, decomandat, la etajele 10 si 11 din 12, in complexul ONE Herastrau Towers, construit in anul 2021 pe Strada Nicolae G. Caranfil. - Suprafata totala de 372,84 mp: 301,21 mp utili+ 19,61 mp balcon+ 9,71 mp balcon+ 20,15 mp balcon+ 15,05 mp terasa+ 7,11 mp scara. - Configuratie: Nivel superior: foyer, living, grup sanitar, camara, bucatarie, scara si 2 balcoane; Nivel inferior: intrare secundara, hol, spalatorie, 2 bai, 3 dormitoare, walk-in closet, depozitare, scara, balcon si terasa. - Incalzire in pardoseala asigurata de centrala de imobil si climatizare prin ventiloconvectoare. - 3 locuri de parcare subterana disponibile spre achizitie. - Servicii de concierge si paza 24/7. Pret 2.000.000 EUR + TVA. Acces rapid la transport public: 2 minute pana la statiile STB, 13 minute pana la metrou Aurel Vlaicu. Localizare: la doar cativa pasi de Parcul Herastrau, Sky Tower si Promenada Mall, cu acces rapid la Aeroportul International Henri Coanda, restaurante, cluburi exclusive, scoli internationale si gradinite. Contacteaza-ne pentru detalii suplimentare si programarea unei vizionari private. Cod proprietate P8798
Citește mai mult Citește mai puțin
Confort lux Decomandat Nemobilat 3 Balcoane / Terase / Logii Curte comună Ventiloconvectoare Centrală imobil Încălzire prin pardoseală 3 Parcări 3 Parcări / Garaje / Parcări subterane

Detalii apartament

ID anunț: XDKS107M9 Copiat! 270999550 Copiat!
Actualizat în: 19 Februarie 2026
Suprafață construită: 381.5 mp
Nr. bucătării: 1
Nr. băi: 3
Structură rezistență: Beton
Tip imobil: Bloc de apartamente
Regim înălțime: S+P+12E

Utilități

Destinație
Rezidențial
Pereți
Vopsea lavabilă Faianță
Podele
Parchet Gresie
Ușă intrare
Metal
Uși interior
Lemn
Izolații termice
Exterior Interior Bloc izolat termic
Ferestre cu geam termopan
Aluminiu
Contorizare
Apometre Contor căldură Contor gaz
Diverse
Telecomandă poartă acces auto
Alte spații utile
Terasă WC Serviciu
Facilități imobil
Videointerfon Lift Spații agrement
Utilități
Curent Apă Canalizare Gaze Telefon
Amenajare străzi
Asfaltate Iluminat stradal Mijloace de transport în comun
Comision
standard

Certificat energetic:

Clasa energetică: A

Vecinătăți:

Herastrau, Bordei, Baneasa Shopping City, Promenada, SkyTower, Globalworth, Oracle, Afi Park Floreasca, Floreasca Cube, Casa di David, Ancora

Disponibilitate proprietate:

imediat

Puncte de interes

Mijloace transport
bus-station
Pasaj Baneasa statie 605, 5
Stații autobuz aprox. 123 m
tram-station
Maguricea
Stații tramvai aprox. 340 m
metro-station
Metrorex. Stația Aurel Vlaicu (M2)(1987)
Stații metrou aprox. 967 m
airport
Aeroportul Internațional Băneasa (Aurel Vlaicu) - LRBS (BBU)
Aeroporturi aprox. 1975 m
Școală
kindergarten
Grădinița Mary Poppins
Gradinițe aprox. 392 m
school
Scoala primara si gimnaziala MEA
Școli aprox. 436 m
kindergarten
Gradinita Miniterra
Gradinițe aprox. 500 m
university
Școala Superioară de Aviație Civilă - S.S.Av.C.
Universități aprox. 1326 m
Recreere
park
Parc
Parcuri aprox. 75 m
supermarket
Mega Image
Supermarket aprox. 151 m
restaurant
Le Club
Restaurant aprox. 431 m
sports-ground
Teren sportiv
Terenuri sport aprox. 845 m

Detalii despre preț și costuri

Prețul pe piață

Preț cerut: 1.999.990 €

Preț min. zonă 169.000 €
Preț max. zonă 779.990 €

i

Proprietate cu prețul cerut în afara intervalului mai multe...

Posibile explicații pentru faptul că prețul proprietății este peste cel maxim: imobil nou cu suprafață mare, are dotări și finisaje de lux.
Bine de știut: prețul unei proprietăți este influențat și de alte caracteristici, cum ar fi: vechime, localizare, vecinătăți, suprafață, compartimentare, amenajări, dotări, etc.

Proprietăți recomandate

Detalii de contact

R.E.A. Imobiliare

Vladislav Chirev Broker

4.93(5 review-uri)

R.E.A. Imobiliare
PRO

Abonează-te la newsletter să fii primul care primește cele mai noi recomandări de proprietăți și sfaturi de la experți.

CONTACT

Creează alertă

Salvează căutarea ca să primești pe email ultimele anunțuri publicate

Penthouses noi cu 4+ camere de vânzare în zona Herăstrău, Sector 1