Duplex 4 camere 372 mp în ONE Herastrau Towers

1.999.989 € + TVA

Herăstrău, București

Nr. cam.:
4
Sup. utilă:
301,21 mp
Etaj:
11 / 12
An constr.:
2021 (Finalizată)
  • • Locație aproximativă

Descriere apartament

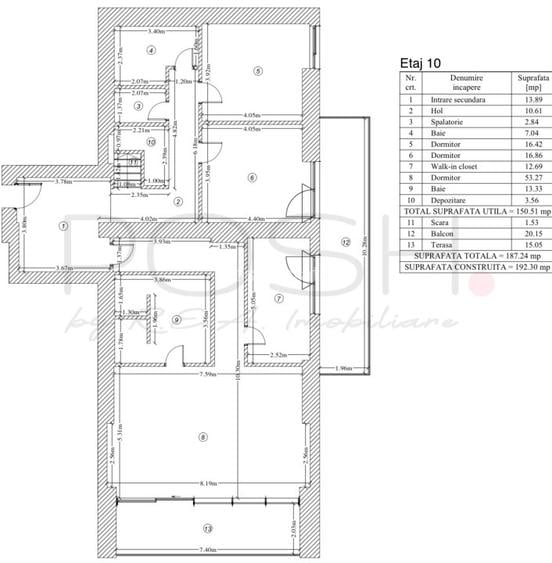
Posh Estate Duplex 4 camere, decomandat, la etajele 10 și 11 din 12, în complexul rezidențial ONE Herăstrău Towers, cu servicii de concierge și pază 24/7, construit în anul 2021 pe Strada Nicolae G. Caranfil. - Suprafață totală de 372,84 mp: 301,21 mp utili+ 19,61 mp balcon+ 9,71 mp balcon+ 20,15 mp balcon+ 15,05 mp terasă+ 7,11 mp scara. - Configurație: Nivel superior: foyer, living, grup sanitar, cămară, bucătărie, scară și 2 balcoane; Nivel inferior: intrare secundara, hol, spalătorie, 2 băi, 3 dormitoare, walk-in closet, depozitare, scară, balcon și terasă. - Încălzire în pardoseală asigurată de centrala de imobil și climatizare prin ventiloconvectoare. Preț 2.000.000 EUR + TVA ( sau 2.420.000 EUR TVA inclus ). Opțional, 3 locuri de parcare subterane sunt disponibile pentru achiziție. Acces rapid la transportul public: 2 minute până la statiile STB, 13 minute până la metrou Aurel Vlaicu. Localizare: la doar câțiva pași de Parcul Herastrau, Promenada Mall și Sky Tower, cu acces rapid la Aeroportul Internațional Henri Coandă, restaurante, cluburi exclusive, școli internaționale și grădinițe. Contactează-ne pentru detalii suplimentare și programarea unei vizionări private. Cod proprietate P8798.
Citește mai mult Citește mai puțin
Confort lux Decomandat Nemobilat 3 Balcoane / Terase / Logii Ventiloconvectoare Centrală imobil Încălzire prin pardoseală 3 Parcări Bine întreținut (Bună)

Detalii apartament

ID anunț: XG9L0000J Copiat! 275386550 Copiat!
Actualizat în: 01 Aprilie 2026
Suprafață construită: 381.5 mp
Nr. bucătării: 1
Nr. băi: 3
Structură rezistență: Beton
Tip imobil: Bloc de apartamente
Regim înălțime: P+12E
Nr. terase: 1

Utilități

Pereți
Vopsea lavabilă Faianță
Podele
Parchet Gresie
Ușă intrare
Metal
Uși interior
Lemn
Izolații termice
Exterior Interior
Ferestre cu geam termopan
Aluminiu
Contorizare
Apometre Contor gaz
Diverse
Telecomandă poartă acces auto
Alte spații utile
Terasă WC Serviciu
Facilități imobil
Videointerfon Lift Spații agrement
Utilități
Curent Apă Canalizare Gaze CATV
Internet
Fibră optică
Servicii imobil
Supraveghere video
Amenajare străzi
Asfaltate Iluminat stradal Mijloace de transport în comun
Comision
Standard

Certificat energetic:

Clasa energetică: A

Puncte de interes

Mijloace transport
bus-station
Pasaj Baneasa statie 605, 5
Stații autobuz aprox. 258 m
tram-station
Maguricea
Stații tramvai aprox. 485 m
metro-station
Metrorex. Stația Aurel Vlaicu (M2)(1987)
Stații metrou aprox. 1120 m
airport
Aeroportul Internațional Băneasa (Aurel Vlaicu) - LRBS (BBU)
Aeroporturi aprox. 1901 m
Școală
school
Scoala primara si gimnaziala MEA
Școli aprox. 348 m
kindergarten
Grădinița Mary Poppins
Gradinițe aprox. 414 m
school
Grupul Scolar "Viaceslav Harnaj"
Școli aprox. 614 m
university
Școala Superioară de Aviație Civilă - S.S.Av.C.
Universități aprox. 1173 m
Recreere
supermarket
Mega Image
Supermarket aprox. 113 m
park
Parc
Parcuri aprox. 224 m
restaurant
Le Club
Restaurant aprox. 401 m
sports-ground
Teren sportiv
Terenuri sport aprox. 851 m

Detalii despre preț și costuri

Prețul pe piață

Preț cerut: 1.999.989 €

Preț min. zonă 169.000 €
Preț max. zonă 779.990 €

i

Proprietate cu prețul cerut în afara intervalului mai multe...

Posibile explicații pentru faptul că prețul proprietății este peste cel maxim: imobil nou cu suprafață mare, are dotări și finisaje de lux.
Bine de știut: prețul unei proprietăți este influențat și de alte caracteristici, cum ar fi: vechime, localizare, vecinătăți, suprafață, compartimentare, amenajări, dotări, etc.

Proprietăți similare

Penthouse cu 4 camere semidecomandat în Herăstrău
1.800.000 € + TVA
București, Herăstrău
4 camere
210 mp
Etaj 10
Penthouse cu 4 camere decomandat în Herăstrău
1.999.990 € + TVA
București, Herăstrău
4 camere
301,21 mp
Etaj 11
Penthouse cu 5 camere decomandat, mobilat în Herăstrău
1.999.000 € + TVA
București, Herăstrău
5 camere
274,89 mp
Etaj 11 / 12

Detalii de contact

Posh Estate

Emanuel Lapadatu

Posh Estate

Abonează-te la newsletter să fii primul care primește cele mai noi recomandări de proprietăți și sfaturi de la experți.

CONTACT

Creează alertă

Salvează căutarea ca să primești pe email ultimele anunțuri publicate

Penthouses noi cu 4+ camere de vânzare în zona Herăstrău, Sector 1